EasyManua.ls Logo

JLG X20JPLUS - 15 Hydraulic System

JLG X20JPLUS
206 pages
Print Icon
To Next Page IconTo Next Page
To Next Page IconTo Next Page
To Previous Page IconTo Previous Page
To Previous Page IconTo Previous Page
Loading...
194
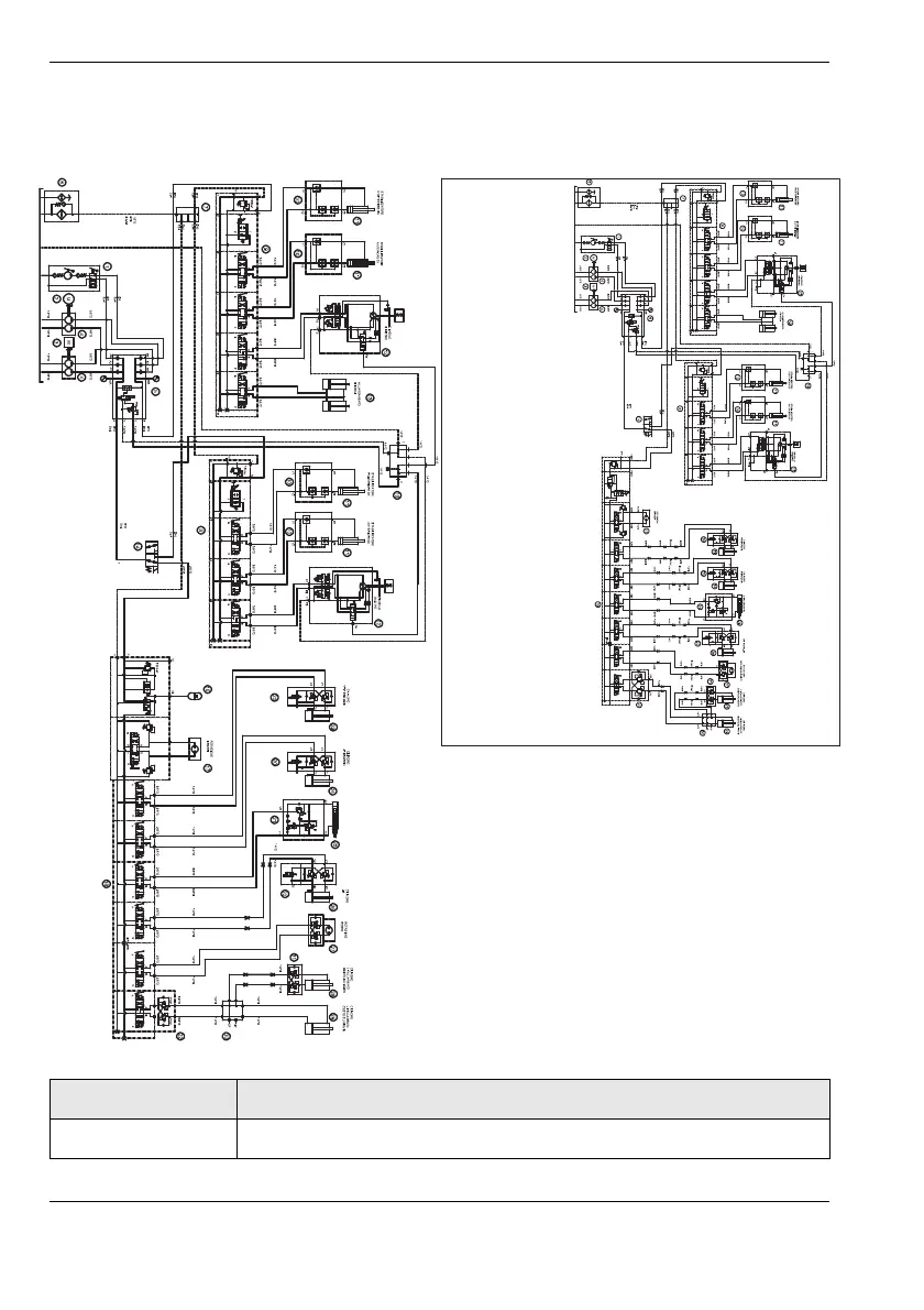
BoomLiftModels X20JPLUS
HYDRAULICSYSTEM
MUX20JP021602
15.HYDRAULICSYSTEM
Riferimento Descrizione
1 Handpump

Table of Contents

Related product manuals