EasyManua.ls Logo

Kyocera FS-1030D - High Voltage Unit

Kyocera FS-1030D
140 pages
Print Icon
To Next Page IconTo Next Page
To Next Page IconTo Next Page
To Previous Page IconTo Previous Page
To Previous Page IconTo Previous Page
Loading...
2G6
2-3-11
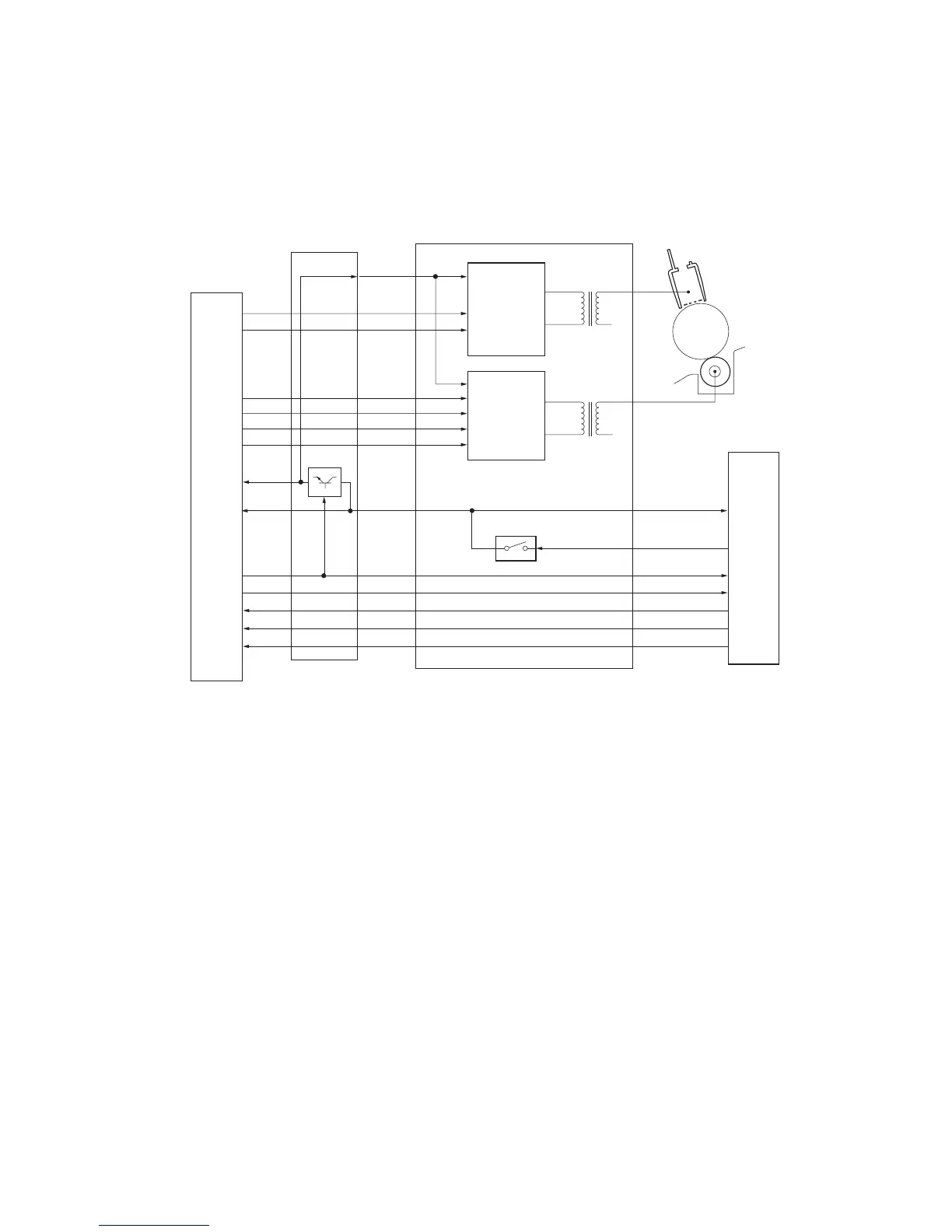
2-3-5 High voltage unit
The High voltage unit contains the high voltage output circuit, interlock switch circuit as well as providing a liaison
connection with the Power supply unit, bias PWB, and the engine PWB.
Figure 2-3-8 High voltage unit circuit block diagram
MHVDR1
MHVDR2
THVDR
RTHVDR
+24V2
+24V2+24V2
+24V3
+24V3
+24V1
+5V
THERM, EXITN
ZCROSS
Interlock switch
High voltage unit
Bias PWB
Power
supply
unit
Engine PWB
FAN, HEATN
SLEEP
Main high
voltage
control
circuit
(IC1)
PSEL1
HVSEL
Main high
voltage
control
circuit
(IC51)
Main
charger
Transfer
roller

Table of Contents

Other manuals for Kyocera FS-1030D

Related product manuals