EasyManua.ls Logo

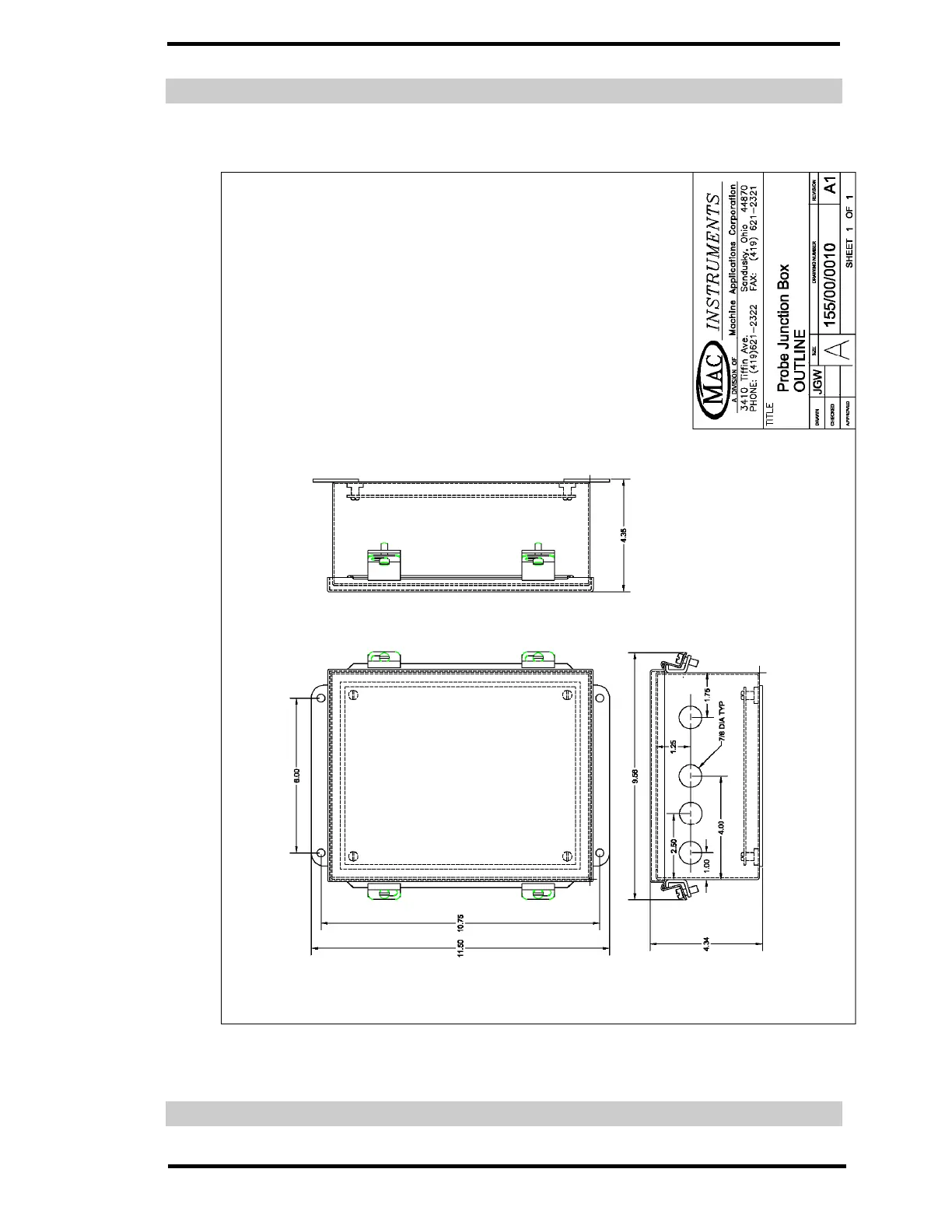
MAC MAC155L - Probe Junction Box Outline Drawing

Default Icon
143 pages
Print Icon
To Next Page IconTo Next Page
To Next Page IconTo Next Page
To Previous Page IconTo Previous Page
To Previous Page IconTo Previous Page
Loading...
©Copyright MAC Instruments 2005. All Rights Reserved. MAC155 Probe
MAC155 Rev. 8 Pg 125
Probe Junction Box Outline Drawing

Table of Contents