EasyManua.ls Logo

Rockwell Automation Allen-Bradley 1756-L61S

Rockwell Automation Allen-Bradley 1756-L61S
200 pages
To Next Page IconTo Next Page
To Next Page IconTo Next Page
To Previous Page IconTo Previous Page
To Previous Page IconTo Previous Page
Loading...
Rockwell Automation Publication IASIMP-QS005H-EN-P - April 2016 65
GuardLogix® Controllers Logic Integration Chapter 3
15. Review the imported rung comments to understand the general operation and configuration details.
Refer to the GuardLogix Instruction Set Reference Manual, publication 1756-RM095
, for additional information
and configuration of the instructions required for your application.
***************************** Safety_Contactors_CAT4 Safety Logic *****************************
This Safety Logic Example should only be used and applied in accordance with the Safety Concepts and Requirements covered in the GuardLogix Controller Systems
Safety Reference Manual (Publication 1756-RM095).
GENERAL OPERATION
This sample code demonstrates how to control the redundant safety contactors. The CROUT instruction provides SIL 3 level diagnostics for redundant safety contactors
with auxiliary feedback (EDM). The CROUT controls dual outputs and monitors up to two (2) feedback channels in either negative or positive feedback mode. This
Safety_Contactors_CAT4 Safety Logic would typically work in conjunction with Safety_Input_CAT3_CAT4 Logic.
CONFIGURATION DETAILS
The CROUT instruction is the primary safety instruction within this routine. The ZoneName_DeviceName CROUT instruction tag name will identify this instruction with
the unique device within a specic zone. All other tags within this routine are also CONTROLLER scoped, and if you wish to copy and paste them into another routine,
you will need to provide a unique name on every new copy. This Safety Logic Example is set to NEGATIVE Feedback; meaning the feedback must be opposite of the
output state. Note that the Safety Output Reset functionality resides in this routine. This manual action is required to reset the output after it has been de-energized
due to a fault or normal demand on the safety function. This routine assumes that the auxiliary feedback channels are wired in series to a single input. This is why the
same input tag "ModuleName:I.Pt00Data" has been assigned to both Feedback 1 and 2. The Fault Reset is assigned to a tag named "Cmd_ZoneName_FaultReset"
representing a command triggered by an HMI or hardwired input. This same Fault Reset tag, "Cmd_ZoneName_FaultReset", will typically be used on all of the safety
input and output instructions within its safety zone.
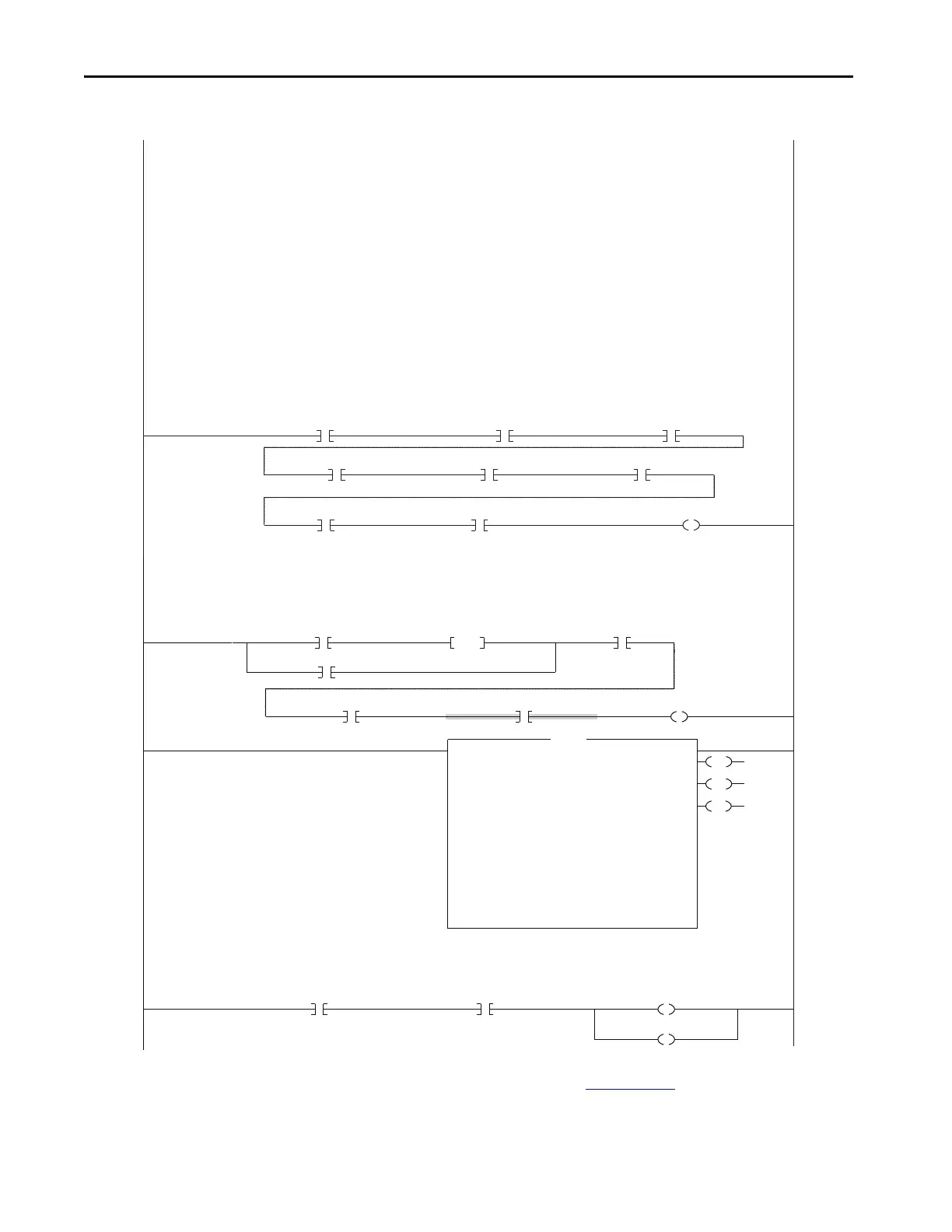
Safety Input Interlock Rung
This rung includes (8) safety device input interlocks, with tag names Sts_ZoneName_DeviceName1_InputOK through Sts_ZoneName_DeviceName8_InputOK, that
energize the Sts_ZoneName_InputsOK OTE instruction. These interlocks can be driven by the individual safety device input logic routines provided in this toolkit. The
Sts_ZoneName_InputsOK tag is then included in the Output Enable Rung which drives the ROUT instruction.
4
Sts_Zone1_LOCKINGSW1_InputOK Sts_Zone1_LOCKINGSW2_InputOK Sts_Zone1_ESTOP1_InputOK
Sts_Zone1_ESTOP2_InputOK Sts_Zone1_ESTOP3_InputOK Sts_Zone1_ESTOP4_InputOK
Sts_Zone1_LC1_InputOK Sts_Zone1_DeviceName8_InputOK Sts_Zone1_InputsOK
This rung provides the operator action required to reset or enable the safety zone output. The operator action is a LO to HI of 'Safety Reset'. It latches the output enable
until either a demand is placed on a safety input, there is a input channel or output channel fault, or a feedback fault on the output circuit. The 'Inputs OK' will go LO in
the even of a demand on any safety input(s) or fault on any safety input channel(s) within the zone. The 'CombinedOutputStatus' will go LO if any output channel on the
Zone Module faults. The .FP feedback fault present drops out the ouput enable in the event of a feedback fault, so that reset or enable cannot occur without operator action.
5
Cmd_Zone1_SafetyReset
ONS
Wrk_Zone1_SafetyReset_ONS
Cmd_Zone1_OutputEnable
Sts_Zone1_InputsOK
CellGuard2:I.CombinedOutputStatus
/
Zone1_ROBOTCONTACTOR.FP
Cmd_Zone1_OutputEnable
6
O1
O2
FP
Congurable Redundant Output
CROUT
Zone1_ROBOTCONTACTOR
Feedback Type
NEGATIVE
Feedback Reaction Time (Msec)
500
A
ctuate Cmd_Zone1_OutputEnable
0
Feedback 1
CellGuard2:I.Pt00Data
0
Feedback 2
CellGuard2:I.Pt00Data
0
Input Status
CellGuard2:I.CombinedInputStatus
0
Output Status
CellGuard2:I.CombinedOutputStatus
0
Reset
Cmd_Zone1_FaultReset
0
CROUT
Safety Output Rung
This Safety Output Logic Example controls dual outputs on a Guard I/O module Named "ModuleName". The ROUT instruction Outputs O1 and O2 are used to drive
safety outputs 00 and 01 (Tags: ModuleName:O.Pt00Data and ModuleName:O.Pt01Data) which are wired to dual safety contactors. Reassignment of EDM and output
channels will need to be made to match your unique safety wiring conguration.
7
Zone1_ROBOTCONTACTOR.O1 Zone1_ROBOTCONTACTOR.O2 CellGuard2:O.Pt00Data
CellGuard2:O.Pt01Data

Table of Contents