EasyManua.ls Logo

Rotex RKHBH008BB3V3 - Composants Principaux du Coffret Électrique

Rotex RKHBH008BB3V3
Print Icon
To Next Page IconTo Next Page
To Next Page IconTo Next Page
To Previous Page IconTo Previous Page
To Previous Page IconTo Previous Page
Loading...
RKHBH/X008BB
Unité intérieure pour système de pompe à chaleur air à eau
4PW62574-2 – 10.2010
Manuel d'installation
11
1. Purgeur
L'air subsistant dans le circuit d'eau sera automatiquement
expulsé par le purgeur.
2. Chauffage d'appoint
Le chauffage d'appoint consiste en un élément de chauffage
électrique dans le vase du chauffage d'appoint qui fournira une
capacité de chauffage supplémentaire au circuit d'eau si la
capacité de chauffage de l'unité extérieure est insuffisante en
raison de basses températures extérieures.
3. Capteurs de température
Quatre capteurs de température déterminent la température de
l'eau et du réfrigérant en différents points dans le circuit d'eau.
4. Coffret électrique
Le coffret électrique contient les composants électroniques et
électriques principaux de l'unité intérieure.
5. Échangeur thermique
6. Vase d'expansion (10 l)
7. Interface utilisateur
L'interface utilisateur permet à l'installateur et à l'utilisateur de
paramétrer, d'utiliser et d'entretenir l'unité.
8. Connexion de liquide réfrigérant
9. Connexion de gaz réfrigérant
10. Vannes d'arrêt (accessoire)
Les vannes d'arrêt de la connexion d'entrée d'eau et de la
connexion de sortie d'eau permettent une isolation du côté
circuit d'eau de l'unité intérieure par rapport au côté circuit d'eau
résidentiel. Cela facilite la vidange et le remplacement du filtre
de l'unité intérieure.
11. Connexion d'arrivée d'eau
12. Connexion de sortie d'eau
13. Vannes de vidange et de remplissage
14. Filtre à eau
Le filtre à eau retire la saleté de l'eau pour empêcher des dégâts
à la pompe ou une obstruction de l'évaporateur. Le filtre à eau
doit être nettoyé de façon régulière. Reportez-vous à la section
"10. Maintenance et entretien" à la page 45.
15. Manomètre
Le manomètre permet de lire la pression d'eau dans le circuit
d'eau.
16. Contacteur de débit
Le contacteur de débit vérifie le flux dans le circuit d'eau et
protège l'échangeur de chaleur contre le gel et la pompe contre
les dégâts.
17. Pompe
La pompe fait circuler l'eau dans le circuit d'eau.
18. Protection thermique du chauffage d'appoint
Le chauffage d'appoint est équipé d'un protecteur thermique. Le
disjoncteur thermique se déclenche lorsque la température
dépasse une valeur donnée.
19. Fusible thermique du chauffage d'appoint
Le chauffage d'appoint est équipé d'un fusible thermique. Le
fusible thermique saute quand la température est trop élevée
(supérieure à la température de la protection thermique du
chauffage d'appoint).
20. Soupape de décharge de pression
La soupape de décharge de pression empêche une pression
d'eau excessive dans le circuit d'eau en s'ouvrant à 3 bar et en
déchargeant un peu d'eau.
21. Flexible de la soupape de décharge de pression
La sortie réelle de la soupape de décharge de pression. Veillez
à prévoir une purge adéquate.
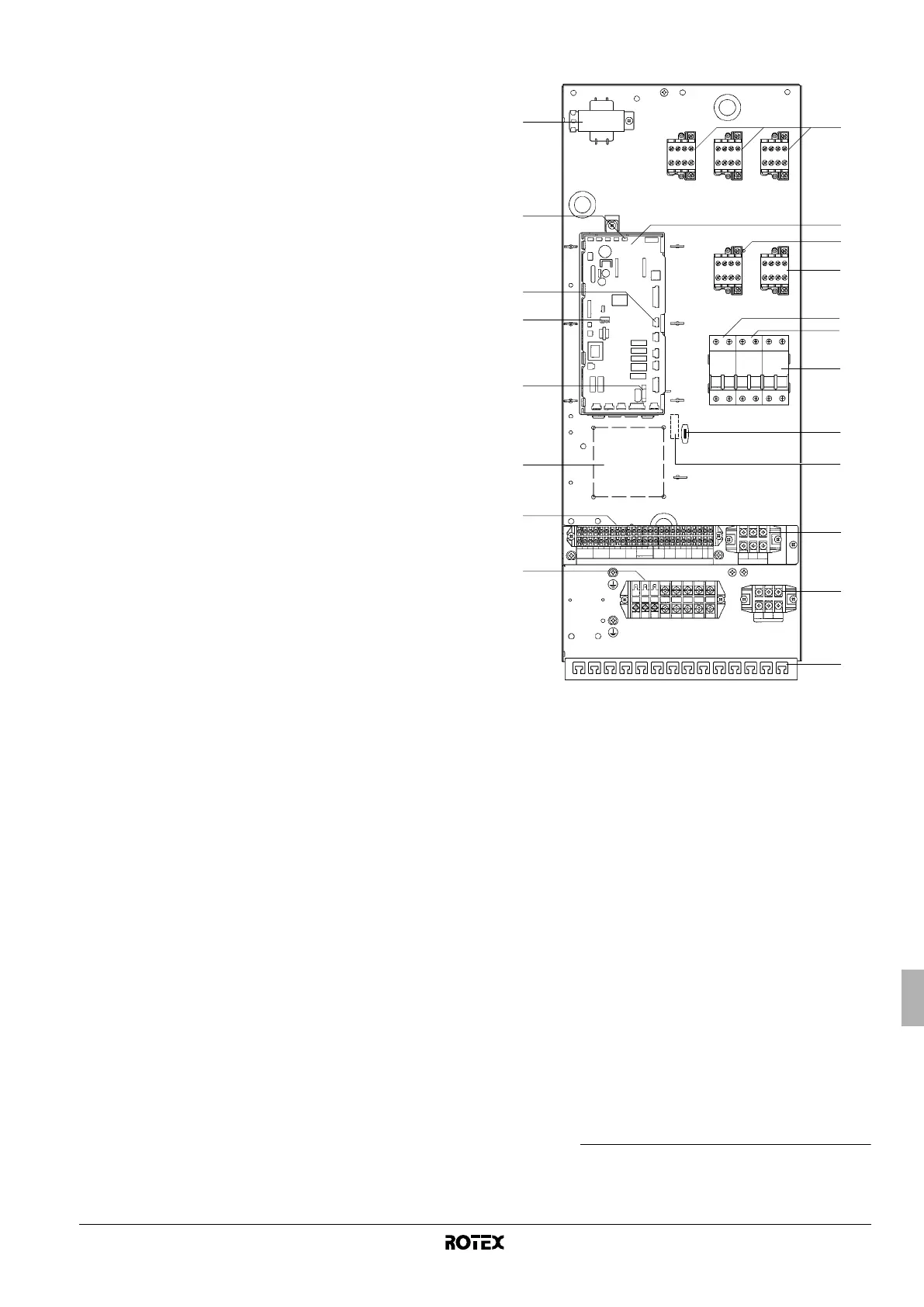
5.3. Composants principaux du coffret électrique
1. Contacteurs du chauffage d'appoint K1M, K2M, K5M et K6M.
2. Carte de circuits imprimés principale
La carte de circuits imprimés principale (PCB) contrôle le
fonctionnement de l'unité.
3. Contacteur de surchauffage K3M (uniquement pour installations
avec ballon d'eau chaude domestique)
(1)
4. Disjoncteur de surchauffage F2B (uniquement pour installations
avec le ballon d'eau chaude domestique)
(2)
Le disjoncteur protège le surchauffage dans le ballon d'eau
chaude domestique contre toute surcharge ou court-circuit.
5. Disjoncteur du chauffage d'appoint F1B, F3B
Le disjoncteur protège le circuit électrique du chauffage
d'appoint par rapport à une surcharge ou un court-circuit.
6. Borniers
Les borniers permettent une connexion aisée des câbles sur place.
7. Fixations des attache-câbles
Les attache-câbles permettent de fixer le câblage local avec les
attaches au coffret électrique pour garantir la réduction des
contraintes.
8. Borniers X3M, X4M (uniquement sur les installations avec
ballon d'eau chaude domestique)
(3)
9. Fusible PCB FU1
(1) Uniquement pour les ballons avec dispositif de surchauffage intégré
(RKHW*)
(2) Uniquement pour les ballons avec dispositif de surchauffage intégré
(RKHW*)
(3) Uniquement pour les ballons avec dispositif de surchauffage intégré
(RKHW*)
TR1
K1M K2M
K5M
K3M K6M
F2B F3B F1B
X1M
X3M
X2M X4M
A1P
A4P
14
12
11
10
9
15
6
6
1
2
3
1
5
13
8
7
8
X9A
X13A
SS2
FU2
FU1
4
5
16

Table of Contents

Related product manuals