EasyManua.ls Logo

Siemens 6RA7086-6KS22

Siemens 6RA7086-6KS22
734 pages
To Next Page IconTo Next Page
To Next Page IconTo Next Page
To Previous Page IconTo Previous Page
To Previous Page IconTo Previous Page
Loading...
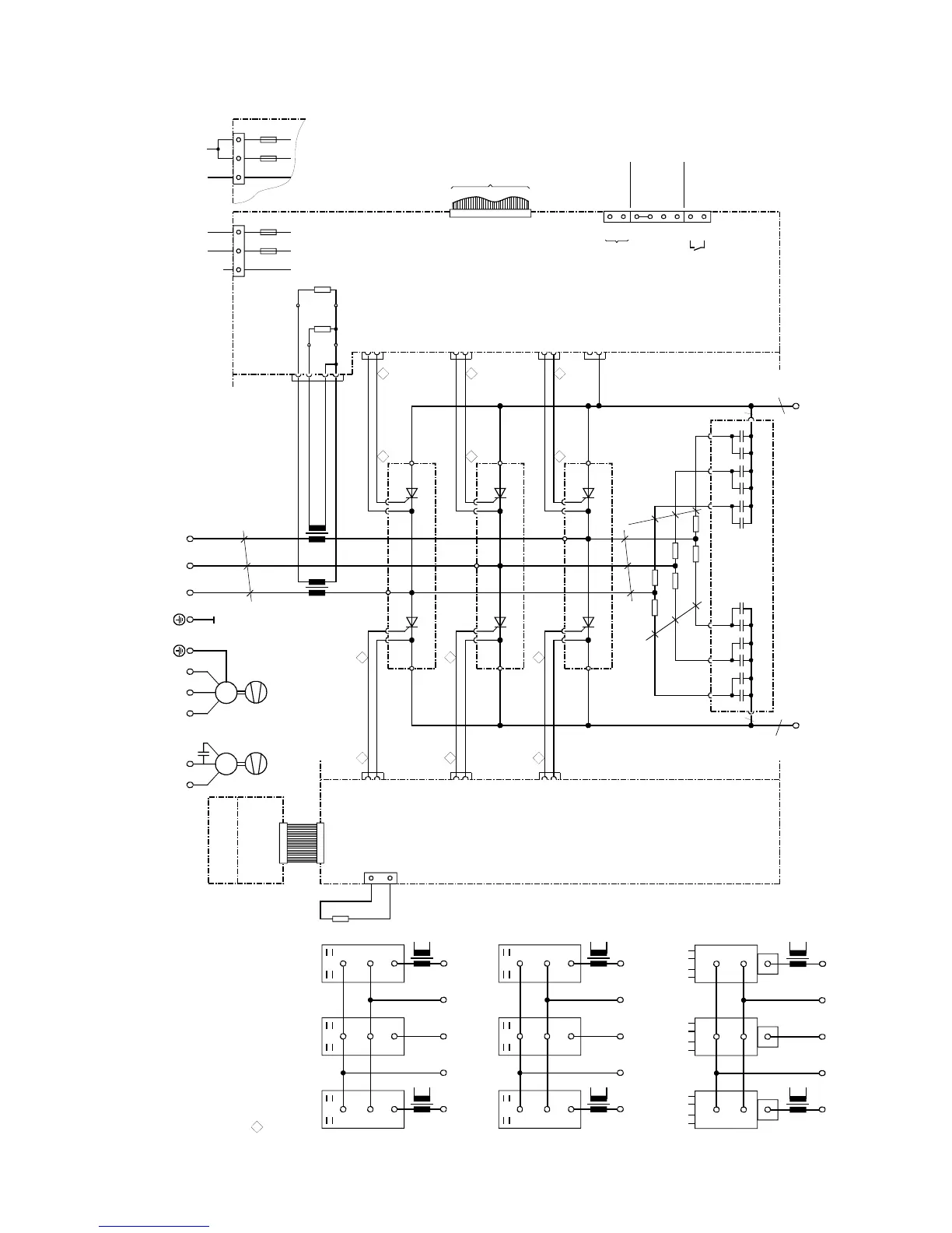
05.05 Connections
Siemens AG 6RX1700-0AD76 6-29
SIMOREG DC Master Operating Instructions
6.4.4 Converters: 400A to 600A, 1Q
C98043-A7002
X101
1U1 1V1 1W1
k
l
K
L
K
L
l
k
T2
T3
a
1C1 1D1
X7
X6
C98043-A7002
ϑ
R100
1W1
1V11U1
1D1 1C1
AK
K
A
V1 + V4
K2 G2 G1 K1
b
b
C98043-A7015
X102
X14 X11
T3
T2
X3-3
X3-2
X3-1
X3-4
R76
R75
B600
B601B602
B603
103
104
105
106
107
108
109
110
XT
XR
XS
4U1 4V1 4W1
M
3~
c
C98043-A7011
D
C
95
c
C
R11R10
R13R12
R15R14
96 97 92 93 94
91 90
U1 V1 W1 U2 V2 W2
AK
K
A
V3 + V6
K2 G2 G1 K1
X16 X13
AK
K
A
V5 + V2
K2 G2 G1 K1
X12 X15
C
C98043-A7014
F2
M1A
5U15W1
XP
F1
M1A
5N1
3
21
NC
XP
321
F2
M1A
5U15W1
F1
M1A
5N1
15 1
V5 + V2
K
AK
X15-2
X15-1
12
X12-2
X12-1
2
A
13 1
V3 + V6
K
AK
X13-2
X13-1
16
X16-2
X16-1
2
A
11 1
V1 + V4
K
AK
X11-2
X11-1
14
X14-2
X14-1
2
A
G1K1 G2K2
G1
K1
G1K1
G2
K2
G2K2
X25-1
X25-2
T2
1W1
1V11U1
1D1
1C1
AK
K
A
V1 + V4
G2
K2
X14
X11
T3
G1
K1
AK
K
A
V5 + V2
G2
K2
X12
X15
G1
K1
AK
K
A
V3 + V6
G2
K2
X16
X13
G1
K1
T2
1W1
1V11U1
1D1 1C1
AK
K
A
V1 + V4
K2
G2
X14 X11
T3
K1
G1
AK
K
A
V5 + V2
K2
G2
X12 X15
K1
G1
AK
K
A
V3 + V6
K2
G2
X16 X13
K1
G1
4U1 4N1
M
1~
to A7009 - X101
Arrangement of thyristor modules
Cables are designated as specified at ends
G (Gate) leads
yellow
K (cathode) leads red
a = copper busbar 30 x 5
b = copper busbar 35 x 5
c = Raychem 44A0311-20-9
All cables are Betatherm 145 1mm
2
unless otherwise designated
Tacho
±
270V
Tacho ground
ES/S
P24/ES
ES/P
ES/P_Reset
NS
NS
Tacho
E301
Fan
AC 190 to 230V
AC 380 to 460V
or
Converters: 400V / 400A
Converters: 575V / 400A
Converters: 460V / 450A
400V to 575V / 600A
or
Converters: 460V

Table of Contents

Related product manuals