EasyManua.ls Logo

Siemens 6RA7086-6KS22

Siemens 6RA7086-6KS22
734 pages
To Next Page IconTo Next Page
To Next Page IconTo Next Page
To Previous Page IconTo Previous Page
To Previous Page IconTo Previous Page
Loading...
01.04 Installation
Siemens AG 6RX1700-0AD76 5-11
SIMOREG DC Master Operating Instructions
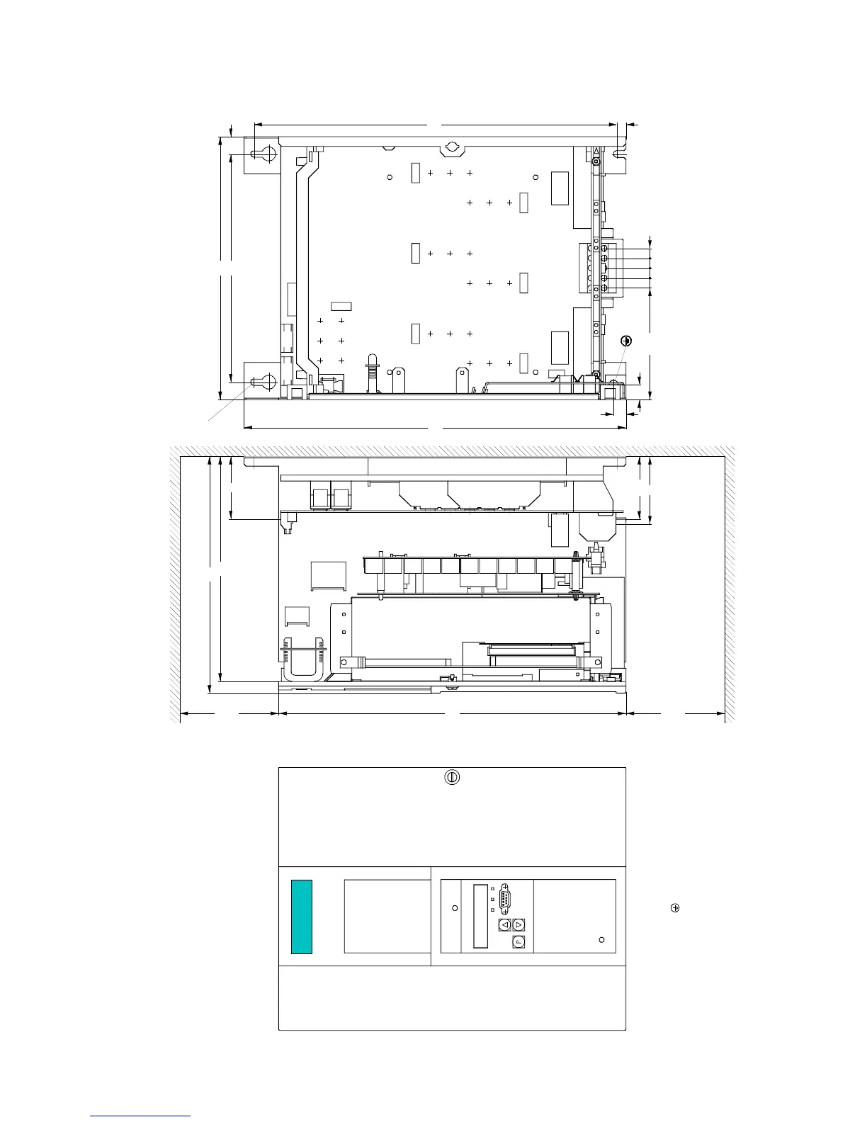
5.1.9 Converters: 3AC 400V and 460V, 15A to 30A, 4Q
10
10101010
s
1W11V1
1U1
1D1
(1C1)
1C1
(1D1)
15
385
350
366
70
239
227
60
265
230
V8
V7
V1
V2
V3 V5
V4 V6
T2 T3
X300
XF1 XF2
100
1)
100
1)
17.5
112.5
12.5
63.5
for M6
1) Minimum clearance for air circulation
An adequate cooling air supply must be provided
Tightening torque for customer connections:
1U1, 1V1, 1W1, 1C1, 1D1 = 1,5 Nm
= 25 Nm

Table of Contents

Related product manuals