EasyManua.ls Logo

Siemens 6RA7086-6KS22

Siemens 6RA7086-6KS22
734 pages
To Next Page IconTo Next Page
To Next Page IconTo Next Page
To Previous Page IconTo Previous Page
To Previous Page IconTo Previous Page
Loading...
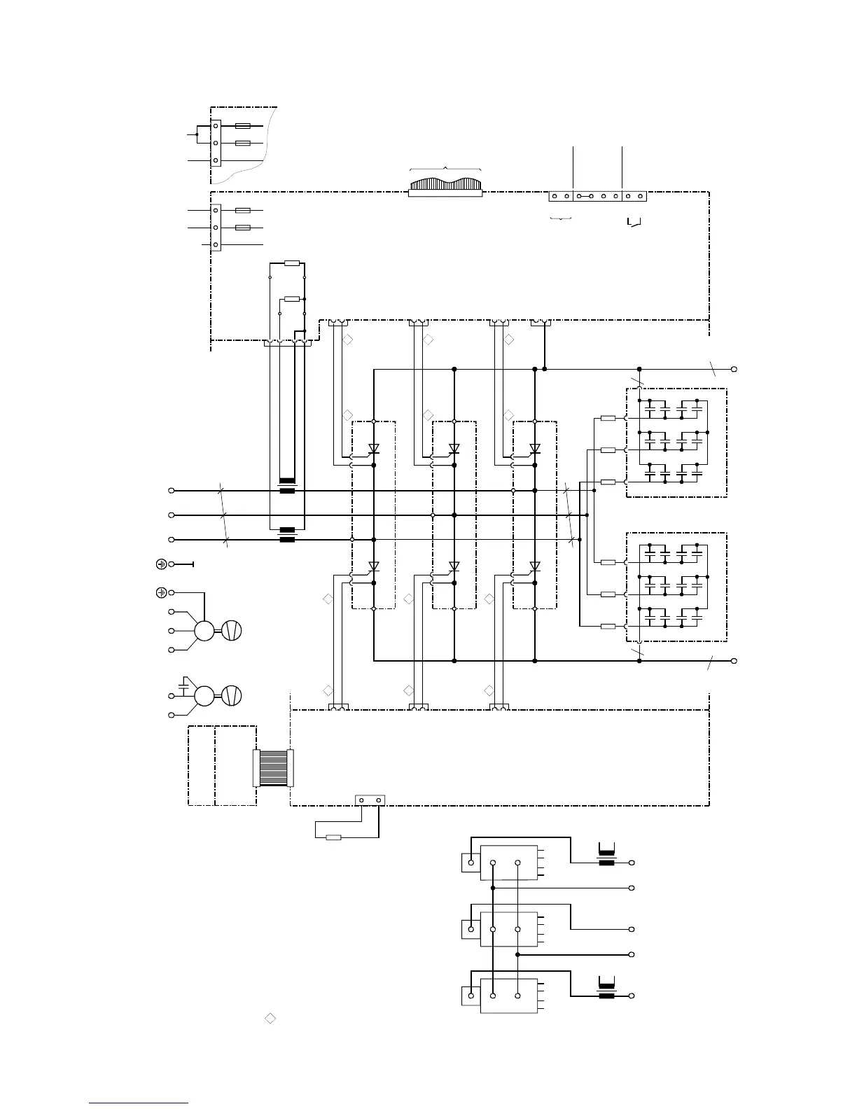
05.05 Connections
Siemens AG 6RX1700-0AD76 6-31
SIMOREG DC Master Operating Instructions
6.4.6 Converters: 800 to 850A, 1Q
C98043-A7002
X101
1U1 1V1 1W1
k
l
K
L
K
L
l
k
T3
a
X7
X6
C98043-A7002
ϑ
R100
C98043-A7015
X102
T2
X3-3
X3-2
X3-1
X3-4
R76
R75
B600
B601
B602
B603
103
104
105
106
107
108
109
110
XT
XR
XS
b
C98043-A7014
1C1 1D1
a
a
C98043-A7011
92
R10
93 94
90
UVW
R12 R14
b
C98043-A7011
92
R11
93 94
90
UVW
R13 R15
b
F2
M1A
5U15W1
XP
F1
M1A
5N1
3
21
NC
XP
321
F2
M1A
5U15W1
F1
M1A
5N1
T2
1W1
1V11U1
1D1 1C1
AK
K
A
V1 + V4
K1 G1 G2 K2
X14X11
T3
AK
K
A
V3 + V6
K1 G1 G2 K2
X16X13
AK
K
A
V5 + V2
K1 G1 G2 K2
X12X15
15 1
V5 + V2
K
AK
X15-2
X15-1
12
X12-2
X12-1
2
A
13 1
V3 + V6
K
AK
X13-2
X13-1
16
X16-2
X16-1
2
A
11 1
V1 + V4
K
AK
X11-2
X11-1
14
X14-2
X14-1
2
A
G1K1 G2K2
G1K1
G1K1
G2K2
G2K2
X25-1
X25-2
4U1 4V1 4W1
M
3~
4U1 4N1
M
1~
to A7009 - X101
Cables are sesignated as specified at ends
G (Gate) leads yellow
K (Kathoden) leads red
a = copper bar 60 x 5
b = Raychem 44A0311-20-9
All cables are Betatherm 145 1mm
2
unless otherwise designated
Tacho
±
270V
Tacho ground
ES/S
P24/ES
ES/P
ES/P_Reset
NS
NS
Tacho
AC 190 to 230V
AC 380 to 460V or
Arrangement of thyristor modules
E301
Fan
Converters: 460V
or

Table of Contents

Related product manuals