EasyManua.ls Logo

Siemens 6RA7086-6KS22

Siemens 6RA7086-6KS22
734 pages
To Next Page IconTo Next Page
To Next Page IconTo Next Page
To Previous Page IconTo Previous Page
To Previous Page IconTo Previous Page
Loading...
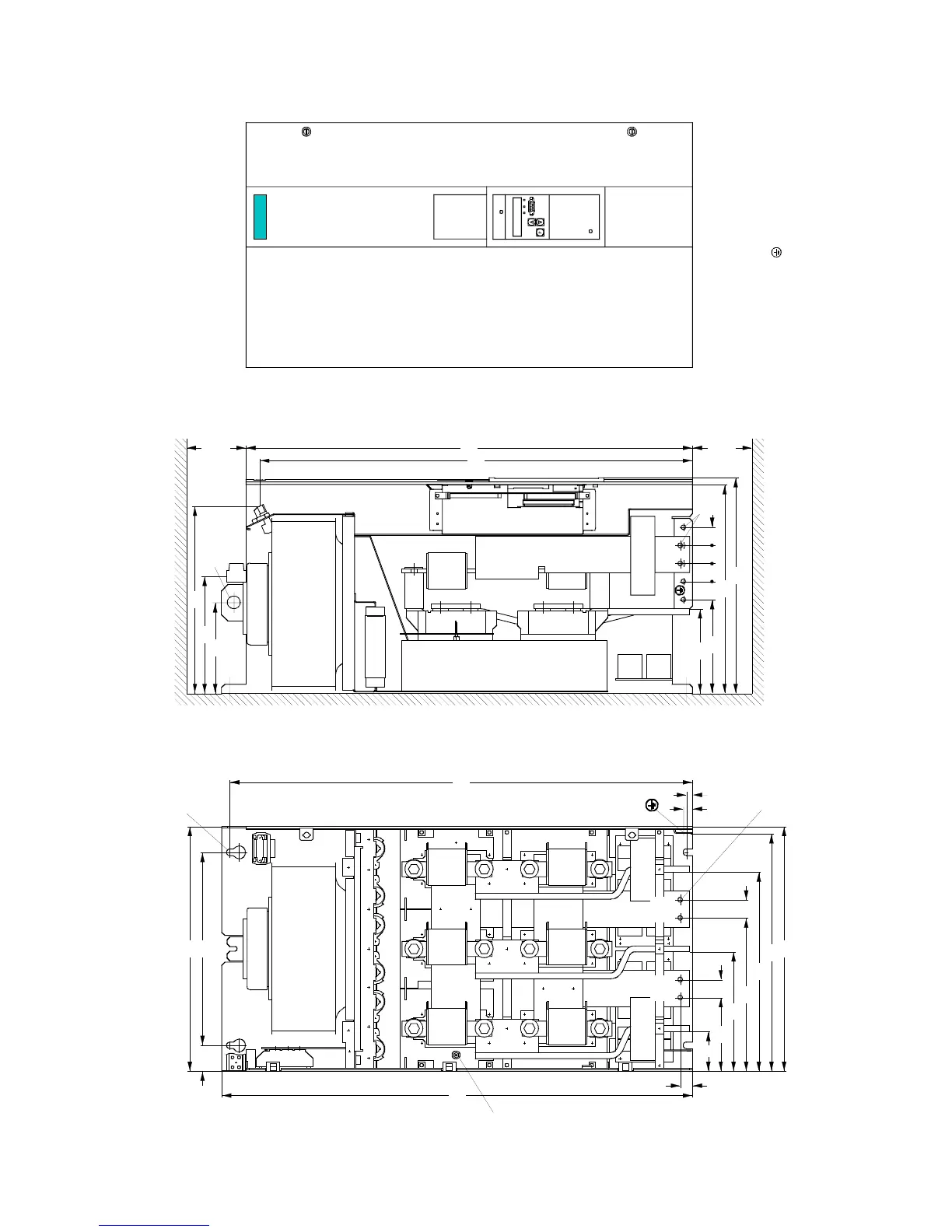
01.04 Installation
Siemens AG 6RX1700-0AD76 5-15
SIMOREG DC Master Operating Instructions
5.1.13 Converters: 3AC 400V, 460V, 575V, 690V, and 830V, 950A to 1200A, 4Q
20
10
V1 V3 V5
4U1
4V1
4W1
XF1
XF2
30
66
122
198
254
330
406
394
30
140
310
150
194
410
32045
780
767
717
740
1U1 1V1 1W1
1D1
(1C1)
1C1
(1D1)
F4 F6 F2
R100
R100
V4 V6
V2
T2 T3
V7
V8
F1 F3 F5
362
350
100
1)
100
1)
15
155 30 30 30 30
1U1
s
X300
for M10
Lifting lug Ø20
for M12
for M12
1) Minimum clearance for air circulation
An adequate cooling air supply must be provided
1U1, 1V1, 1W1, 1C1, 1D1 = 44 Nm
= 60 Nm
Tightening torque for customer connections:
max. conductor size for cables with
cable eye
in accordance with DIN 46234: 4 x 150 mm
2

Table of Contents

Related product manuals