EasyManua.ls Logo

Siemens 6RA7086-6KS22

Siemens 6RA7086-6KS22
734 pages
To Next Page IconTo Next Page
To Next Page IconTo Next Page
To Previous Page IconTo Previous Page
To Previous Page IconTo Previous Page
Loading...
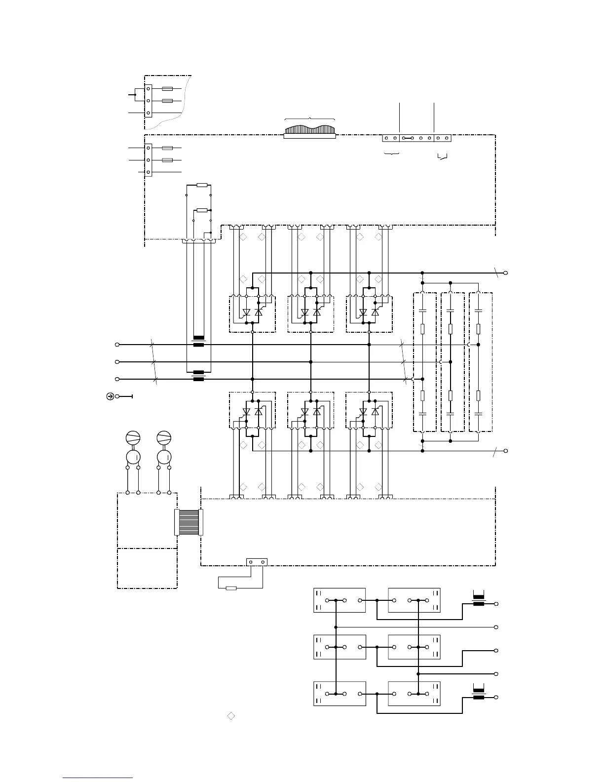
05.05 Connections
Siemens AG 6RX1700-0AD76 6-41
SIMOREG DC Master Operating Instructions
6.4.14 Converters: 280A, 4Q
C98043-A7002
X101
1U1 1V1 1W1
k
l
K
L
K
L
l
k
T2
T3
a
1C1
(1D1)
1D1
(1C1)
X7
X6
C98043-A7002
ϑ
R100
1W1
1V11U1
1D1
(1C1)
1C1
(1D1)
AKAKAK
KKK
AAA
V5V3V1
AKAKAK
KKK
AAA
V2
V6
V4
11 1
V1
G1
K
A
AK
X11-1
X11-2
K1
24 2
K2
X24-2
X24-1
G2
211
V4
G1
K
A
AK
X21-1
X21-2
K1
142
K2
X14-2
X14-1
G2
13 1
V3
G1
K
A
AK
X13-1
X13-2
K1
26 2
K2
X26-2
X26-1
G2
231
V6
G1
K
A
AK
X23-1
X23-2
K1
162
K2
X16-2
X16-1
G2
15 1
V5
G1
K
A
AK
X15-1
X15-2
K1
22 2
K2
X22-2
X22-1
G2
251
V2
G1
K
A
AK
X25-1
X25-2
K1
12
2
K2
X12-2
X12-1
G2
b
b
c
D (L-)
C (L+)
C98043-A7007
D (L-)
C (L+)
C98043-A7007
D (L-)
C (L+)
C98043-A7007
X_AC
X_AC
X_AC
c
M
X75-1
X75-2
X91-1
X91-2
E301
C98043-
A7015
X102
T3
T2
C
X3-3
X3-2
X3-1
X3-4
R76
R75
B600
B601
B602
B603
103
104
105
106
107
108
109
110
XT
XR
XS
M
X75-3
X75-4
X92-1
X92-2
E302
C98043-
A7014
F2
M1A
5U15W1
XP
F1
M1A
5N1
3
21
NC
XP
321
F2
M1A
5U15W1
F1
M1A
5N1
K2
G2
X12X25
K1
G1
K2
G2
X14X21
K1
G1
K2
G2
X16X23
K1
G1
G2
K2
X24 X11
G1
K1
G2
K2
X22 X15
G1
K1
G2
K2
X26 X13
G1
K1
to A7009 - X101
Arrangement of thyrister modules
Cables are designated as specified at ends
G (Gate) leads
yellow
K (cathode) leads
red
Top-mounted FanD... / 210 only
a = copper busbar 20 x 3
b = copper busbar 20 x 5
c = Raychem 44A0311-20-9
All cables are Betatherm 145 1mm
2
unless otherwise designated
Tacho
±
270V
Tacho ground
ES/S
P24/ES
ES/P
ES/P_Reset
NS
NS
Tacho
AC 190 to 230VAC 380 to 460V or

Table of Contents

Related product manuals