EasyManua.ls Logo

Siemens 6RA7086-6KS22

Siemens 6RA7086-6KS22
734 pages
To Next Page IconTo Next Page
To Next Page IconTo Next Page
To Previous Page IconTo Previous Page
To Previous Page IconTo Previous Page
Loading...
Installation 01.04
5-8 Siemens AG 6RX1700-0AD76
SIMOREG DC Master Operating Instructions
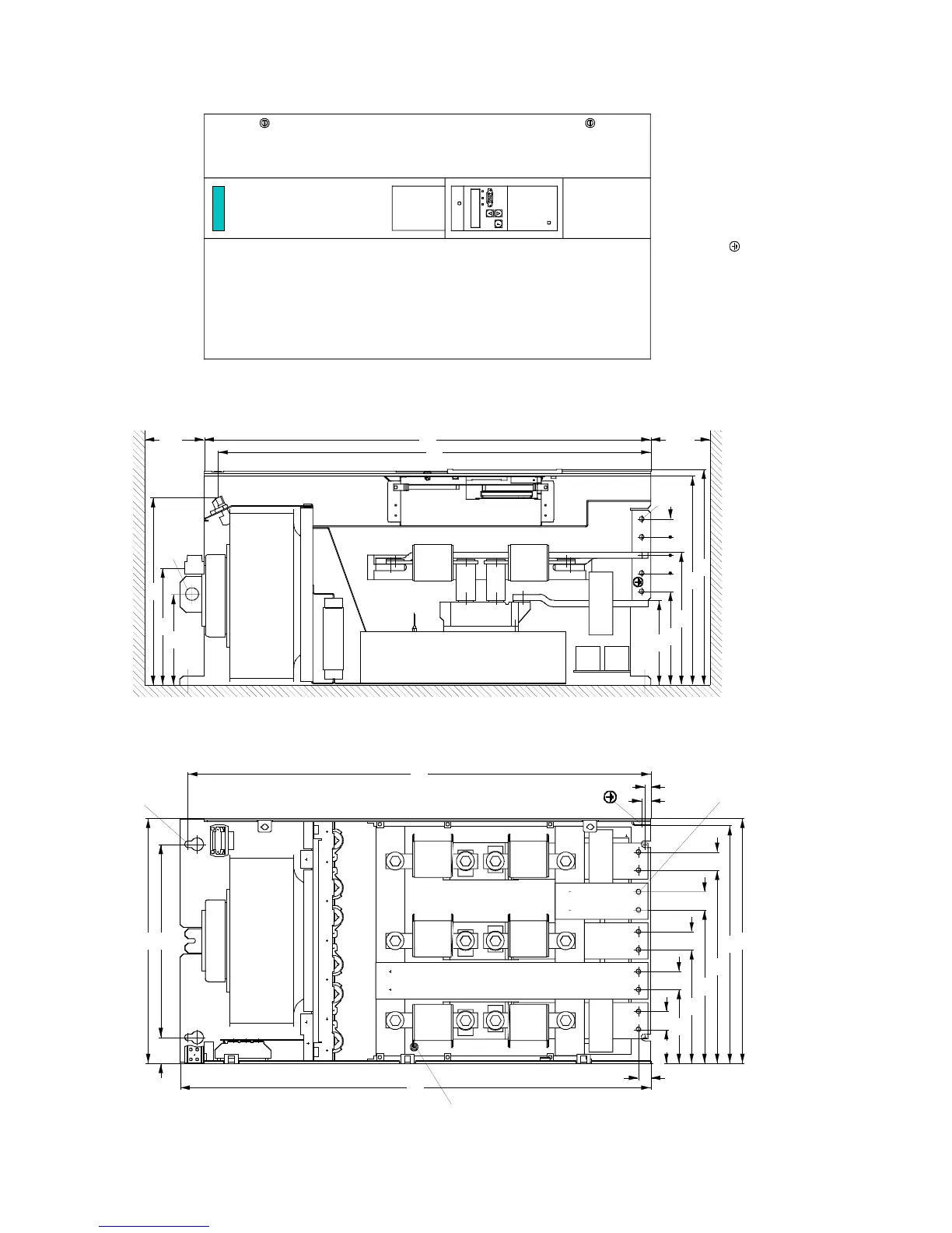
5.1.6 Converters: 3AC 400V, 460V, 575V, 690V, and 830V, 900A to 1200A, 1Q
10
15
4U1
4V1
4W1
XF1
XF2
30
56
122
188
254
320
406
394
30
140
310
150
194
410
32045
20
780
765
717
740
R100
R100
V4
V7
V8
s
362
350
X300
100
1)
100
1)
220
T2 T3
1W11U1 1V1 1C1
30
30
30
1D1
F4 F6 F2
F1 F3 F5
V1
+
V4
V3
+
V6
V5
+
V2
155 30 30 30 30
for M10
Lifting lug Ø20
for M12
for M12
1) Minimum clearance for circulation
An adequate cooling air supply must be provided
1U1, 1V1, 1W1, 1C1, 1D1 = 44 Nm
= 60 Nm
Tightening torque for customer connections:
Max. conductor size for cables with cable eye
in accordance with DIN 46234: 4 x 150 mm
2

Table of Contents

Related product manuals