EasyManua.ls Logo

Siemens 6RA7086-6KS22

Siemens 6RA7086-6KS22
734 pages
To Next Page IconTo Next Page
To Next Page IconTo Next Page
To Previous Page IconTo Previous Page
To Previous Page IconTo Previous Page
Loading...
Connections 05.05
6-30 Siemens AG 6RX1700-0AD76
SIMOREG DC Master Operating Instructions
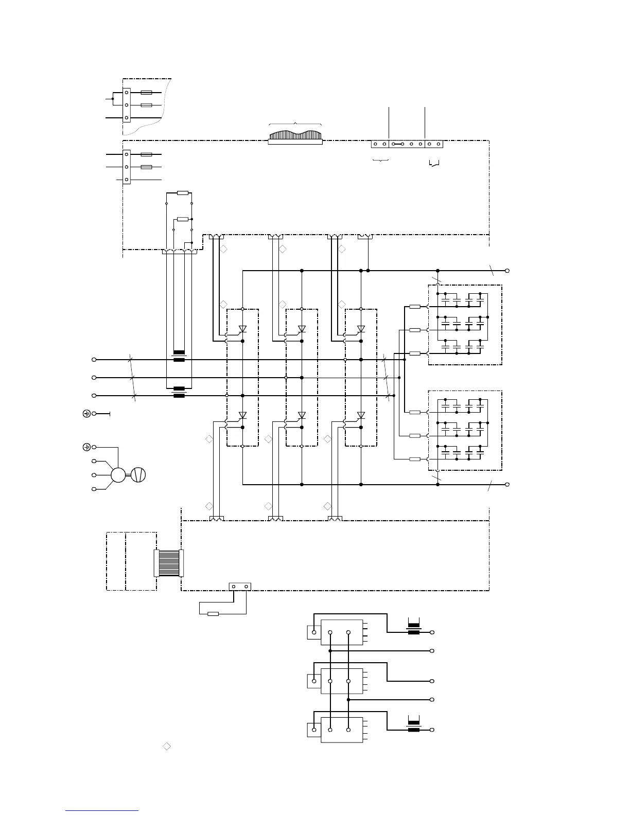
6.4.5 Converters: 720A, 1Q
C98043-A7003
X101
1U1 1V1 1W1
k
l
K
L
K
L
l
k
T3
a
X7
X6
C98043-A7003
ϑ
R100
C98043-A7015
X102
T2
X3-3
X3-2
X3-1
X3-4
R76
R75
B600
B601
B602
B603
103
104
105
106
107
108
109
110
XT
XR
XS
4U1 4V1 4W1
M
3~
b
C98043-A7014
1C1 1D1
a
a
C98043-A7011
91
R10
99 98
90
UVW
R12 R14
b
C98043-A7011
91
R11
99 98
90
UVW
R13 R15
b
F2
M1A
5U15W1
XP
F1
M1A
5N1
32
1
NC
XP
3
21
F2
M1A
5U15W1
F1
M1A
5N1
T2
1W1
1V11U1 1D1 1C1
AK
K
A
V1 + V4
K1 G1 G2 K2
X14X11
T3
AK
K
A
V3 + V6
K1 G1 G2 K2
X16X13
AK
K
A
V5 + V2
K1 G1 G2 K2
X12X15
15 1
V5 + V2
K
AK
X15-2
X15-1
12
X12-2
X12-1
2
A
13 1
V3 + V6
K
AK
X13-2
X13-1
16
X16-2
X16-1
2
A
11
1
V1 + V4
K
AK
X11-2
X11-1
14
X14-2
X14-1
2
A
G1K1 G2K2
G1K1
G1
K1
G2K2
G2
K2
X25-1
X25-2
to A7009 - X101
Cables are designated as specified at ends
G (Gate) leads yellow
K (Kathoden) leads
red
a = copper busbar 60 x 5
b = Raychem 44A0311-20-9
All cables are Bettherm 145 1mm
2
unless otherwise designated
Tacho
±
270V
Tacho ground
ES/S
P24/ES
ES/P
ES/P_Reset
NS
NS
Tacho
E301
Fan
AC 190 to 230VAC 380 to 460V or
Arrangement of thyristor modules

Table of Contents

Related product manuals