EasyManua.ls Logo

Siemens 6RA7086-6KS22

Siemens 6RA7086-6KS22
734 pages
To Next Page IconTo Next Page
To Next Page IconTo Next Page
To Previous Page IconTo Previous Page
To Previous Page IconTo Previous Page
Loading...
Installation 01.04
5-24 Siemens AG 6RX1700-0AD76
SIMOREG DC Master Operating Instructions
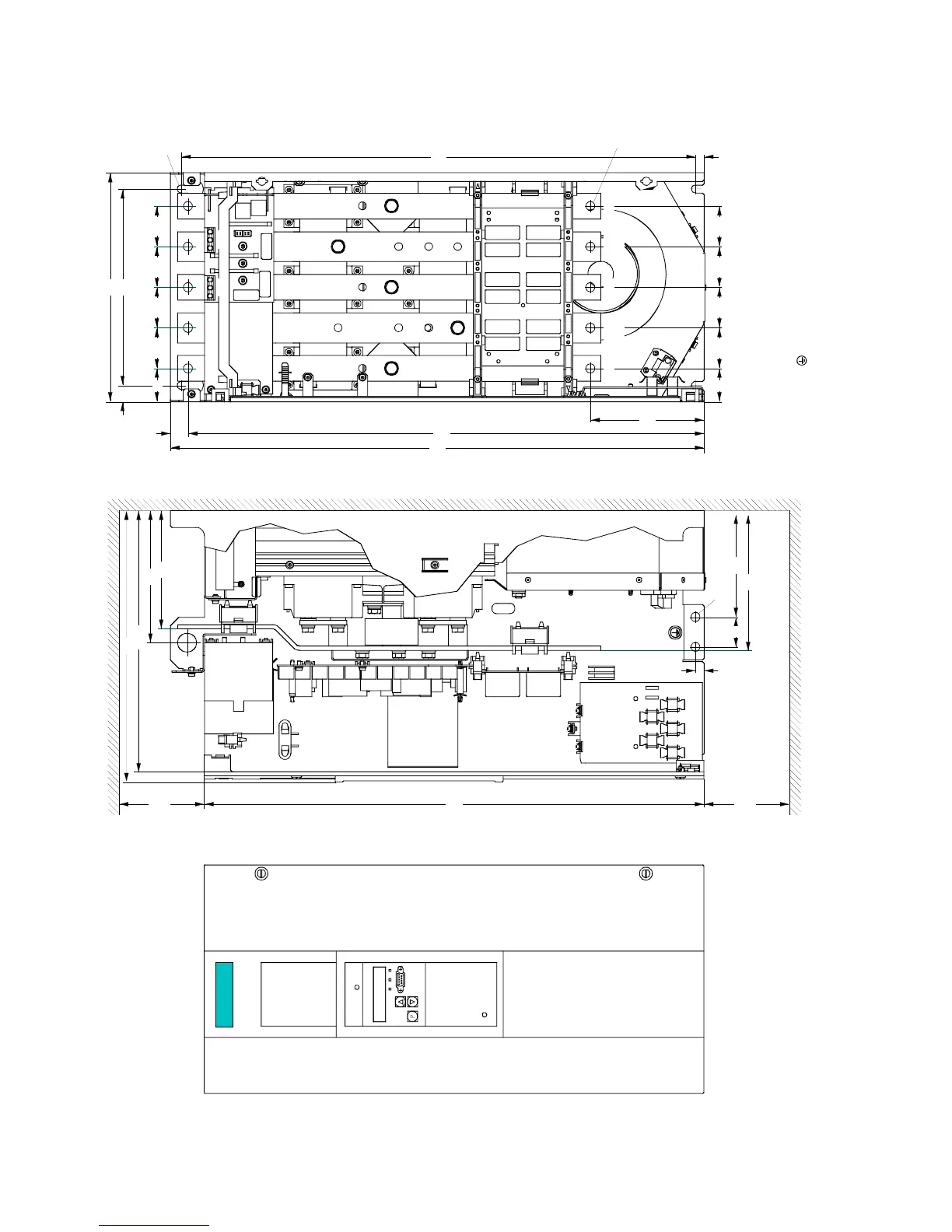
5.2.7 Converters: 3AC 460V, 450A to 600A, 4Q
318
585
100
1)
100
1)
10
604
602
268
230
133
19
39
47,5 47,5 47,5 47,5
47,5 47,5 47,5 47,5
39
1U1 1V11D1
(1C1)
1C1
(1D1)
1W1
1U1 1V11D1
(1C1)
1C1
(1D1)
1W1
XF1 XF2
625
21
10
125
164
35
306,5
155
139
s
X300
for M8
for M10
for M10
1) Minimum clearance for air circulation
An adequate cooling air supply must be provided
1U1, 1V1, 1W1, 1C1, 1D1 = 25 Nm
= 50 Nm
Tightening torque for customer connections:
Max. conductor size for cables with cable eye in accordance with DIN 46234:
1U1, 1V1, 1W1 = 2 x 150 mm
2
1C1, 1D1 = 2 x 185 mm
2

Table of Contents

Related product manuals