EasyManua.ls Logo

Siemens 6RA7086-6KS22

Siemens 6RA7086-6KS22
734 pages
To Next Page IconTo Next Page
To Next Page IconTo Next Page
To Previous Page IconTo Previous Page
To Previous Page IconTo Previous Page
Loading...
05.05 Connections
Siemens AG 6RX1700-0AD76 6-39
SIMOREG DC Master Operating Instructions
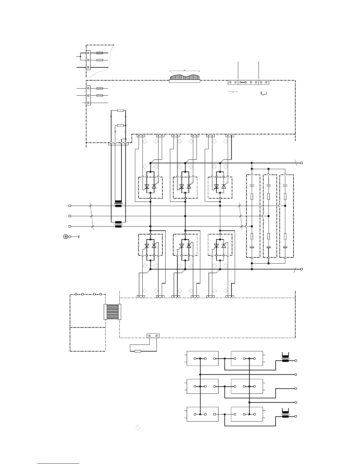
6.4.12 Converters: 60A, 4Q
C98043-A7002
X101
F2
M1A
5U15W1
XP
1U1 1V1 1W1
k
l
K
L
K
L
l
k
T2
T3
a
1C1
(1D1)
1D1
(1C1)
F1
M1A
5N1
3
21
NC
XP
321
X7
X6
C98043-A7002
ϑ
F2
M1A
5U15W1
F1
M1A
5N1
R100
1W1
1V11U1
1D1
(1C1)
1C1
(1D1)
AKAKAK
KKK
AAA
V5V3V1
G2
AKAKAK
KKK
AAA
V2
V6
V4
11 1
V1
G1
K
A
AK
X11-1
X11-2
24 2
X24-2
X24-1
G2
21
X21-1
X21-2
14
X14-2
X14-1
13
X13-1
X13-2
26
X26-2
X26-1
23
X23-1
X23-2
16
X16-2
X16-1
15
X15-1
X15-2
22
X22-2
X22-1
25
X25-1
X25-2
12
X12-2
X12-1
b
b
c
D (L-)
C (L+)
C98043-A7007
D (L-)
C (L+)
C98043-A7007
D (L-)
C (L+)
C98043-A7007
X_AC
X_AC
X_AC
c
X75-1
X75-2
C98043-
A7015
X102
X21 X14 X23 X16 X25 X12
X24 X11 X26 X13 X22 X15
T3
T2
C
X3-3
X3-2
X3-1
X3-4
R76
R75
B600
B601
B602
B603
103
104
105
106
107
108
109
110
XT
XR
XS
X75-3
X75-4
C98043-
A7014
G1 G2 G1 G2 G1
G1
G2 G1 G2 G1 G2
1
V3
G1
K
A
AK
2
G2
1
V5
G1
K
A
AK
2
G2
2
V4
G2
A
K
AK
1
G1
2
V6
G2
A
K
1
G1
2
V2
G2
A
K
1
G1
AK
AK
AC 190 to 230V
to A7009 - X101
AC 380 to 460V or
Arrangement of thyristor modules
Cables are designated as specified at ends
G (Gate) leads
yellow
K (cathode) leads
red
a = copper busbar 20 x 3
b = copper busbar 20 x 5
c = Raychem 44A0311-20-9
All cables are Betatherm 145 1mm
2
unless otherwise designated
Tacho
±
270V
Tacho ground
ES/S
P24/ES
ES/P
ES/P_Reset
NS
NS
Tacho

Table of Contents

Related product manuals