EasyManua.ls Logo

Siemens 6RA7086-6KS22

Siemens 6RA7086-6KS22
734 pages
To Next Page IconTo Next Page
To Next Page IconTo Next Page
To Previous Page IconTo Previous Page
To Previous Page IconTo Previous Page
Loading...
01.04 Installation
Siemens AG 6RX1700-0AD76 5-5
SIMOREG DC Master Operating Instructions
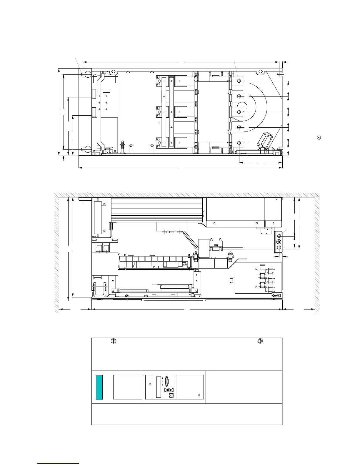
5.1.3 Converters: 3AC 400V and 575V, 400A, 1Q
10
10
s
XF1 XF2
V7
V8
625
602
318
268
230
120
160
35
133
4U1
4V1
4W1
39
1U1 1V11D1 1C1 1W1
T2
19
X300
T3
R100
585
100
1)
100
1)
V1+V4 V3+V6 V5+V2
for M8
for M10
306.5
179.7
123.7
47.5 47.5 47.5 47.5
for M10
1) Minimum clearance for air circulation
An adequate cooling air supply must be provided
1U1, 1V1, 1W1, 1C1, 1D1 = 25 Nm
= 50 Nm
Tightening torque for customer connections:
1U1, 1V1, 1W1 = 2 x 150 mm
2
1C1, 1D1 = 2 x 185 mm
2
Max. conductor size for cables with cable eye in accordance with DIN 46234:

Table of Contents

Related product manuals