EasyManua.ls Logo

Siemens 6RA7086-6KS22

Siemens 6RA7086-6KS22
734 pages
To Next Page IconTo Next Page
To Next Page IconTo Next Page
To Previous Page IconTo Previous Page
To Previous Page IconTo Previous Page
Loading...
01.04 Installation
Siemens AG 6RX1700-0AD76 5-21
SIMOREG DC Master Operating Instructions
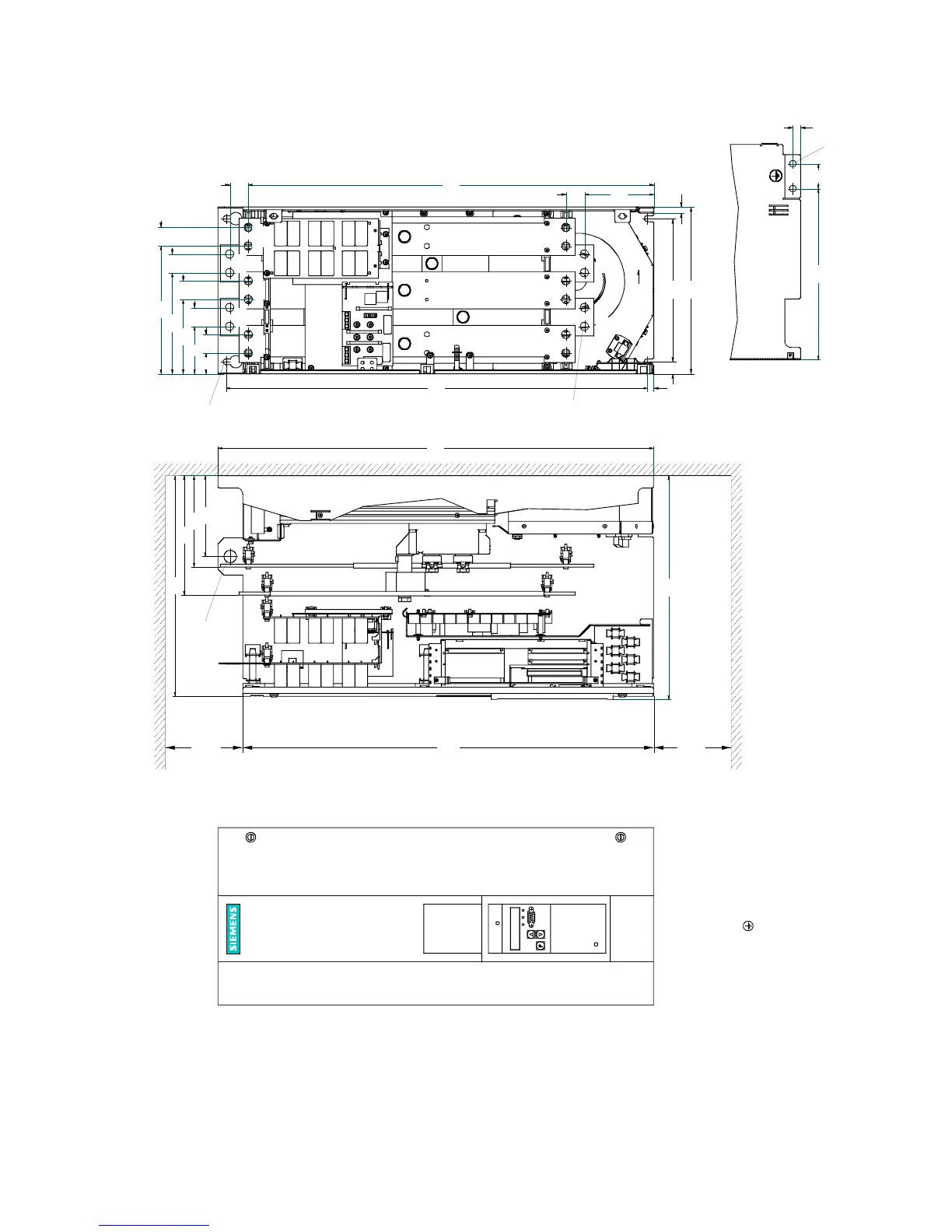
5.2.4 Converters: 3AC 460V, 850A, 1Q
10
12
130
147
192
355
700
360
33 30
76 30
119 30
162 30
205 30
30 651
11130
275 40
A
677
12
230
19
268
X300
100
1)
100
1)
1U1
1V1 1W1
1D1 1C1
1U1 1V1
1W1
1D1 1C1
660
Lifting lug Ø20
for M8
1) Minimum clearance for air circulation
An adequate cooling air supply must be provided
View A
for M12
for M10
1U1, 1V1, 1W1, 1C1, 1D1 = 44 Nm
= 50 Nm
Tightening torque for customer connections:
Max. conductor size for cables with cable eye
in accordance with DIN 46234: 4 x 150 mm
2

Table of Contents

Related product manuals