EasyManua.ls Logo

Siemens 6RA7086-6KS22

Siemens 6RA7086-6KS22
734 pages
To Next Page IconTo Next Page
To Next Page IconTo Next Page
To Previous Page IconTo Previous Page
To Previous Page IconTo Previous Page
Loading...
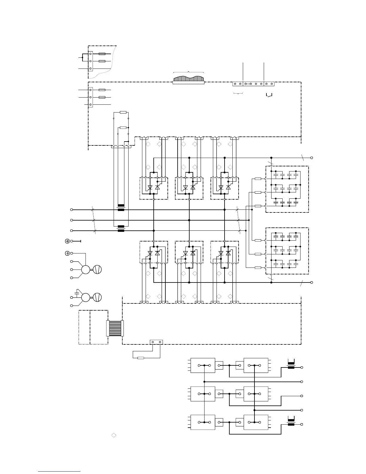
05.05 Connections
Siemens AG 6RX1700-0AD76 6-45
SIMOREG DC Master Operating Instructions
6.4.18 Converters: 850A, 4Q
C98043-A7002
X101
1U1 1V1 1W1
k
l
K
L
K
L
l
k
T2
T3
a
X7
X6
C98043-A7002
ϑ
R100
1W1
1V11U1
1D1
(1C1)
1C1
(1D1)
AK
K
A
V1
K2 G2 G1 K1
AK
K
A
V4
K1 G1 G2 K2
11 1
V1
G1
K
A
AK
X11-1
X11-2
K1
24 2
K2
X24-2
X24-1
G2
211
V4
G1
K
A
AK
X21-1
X21-2
K1
142
K2
X14-2
X14-1
G2
13
1
V3
G1
K
A
AK
X13-1
X13-2
K1
26 2
K2
X26-2
X26-1
G2
231
V6
G1
K
A
AK
X23-1
X23-2
K1
162
K2
X16-2
X16-1
G2
15 1
V5
G1
K
A
AK
X15-1
X15-2
K1
22 2
K2
X22-2
X22-1
G2
251
V2
G1
K
A
AK
X25-1
X25-2
K1
122
K2
X12-2
X12-1
G2
C98043-A7015
X102
X21 X14
X24 X11
T3
T2
X3-3
X3-2
X3-1
X3-4
R76
R75
B600
B601
B602
B603
103
104
105
106
107
108
109
110
XT
XR
XS
b
AK
K
A
V3
K2 G2 G1 K1
X26 X13
AK
K
A
V5
K2 G2 G1 K1
X22 X15
AK
K
A
V6
K1 G1 G2 K2
X23 X16
AK
K
A
V2
K1 G1 G2 K2
X25 X12
C98043-A7014
1C1
(1D1)
1D1
(1C1)
a
a
C98043-A7011
92
R10
93 94
90
UVW
R12 R14
b
C98043-A7011
92
R11
93 94
90
UVW
R13 R15
b
F2
M1A
5U15W1
XP
F1
M1A
5N1
32
1
NC
XP
3
21
F2
M1A
5U15W1
F1
M1A
5N1
4U1 4V1 4W1
M
3~
4U1 4N1
M
1~
to A7009 - X101
Arrangement of thyristor modules
Cables are designated as specified at ends
G (Gate) leads yellow
K (cathode) leads
red
a = copper busbar 60 x 5
b = Raychem 44A0311-20-9
All cables are Betatherm 145 1mm
2
unless otherwise designated
Tacho
±
270V
Tacho ground
ES/S
P24/ES
ES/P
ES/P_Reset
NS
NS
Tacho
AC 190 to 230VAC 380 to 460V or
E301
Fan
Converters: 460V
or

Table of Contents

Related product manuals