EasyManua.ls Logo

Siemens 6RA7086-6KS22

Siemens 6RA7086-6KS22
734 pages
To Next Page IconTo Next Page
To Next Page IconTo Next Page
To Previous Page IconTo Previous Page
To Previous Page IconTo Previous Page
Loading...
Installation 01.04
5-4 Siemens AG 6RX1700-0AD76
SIMOREG DC Master Operating Instructions
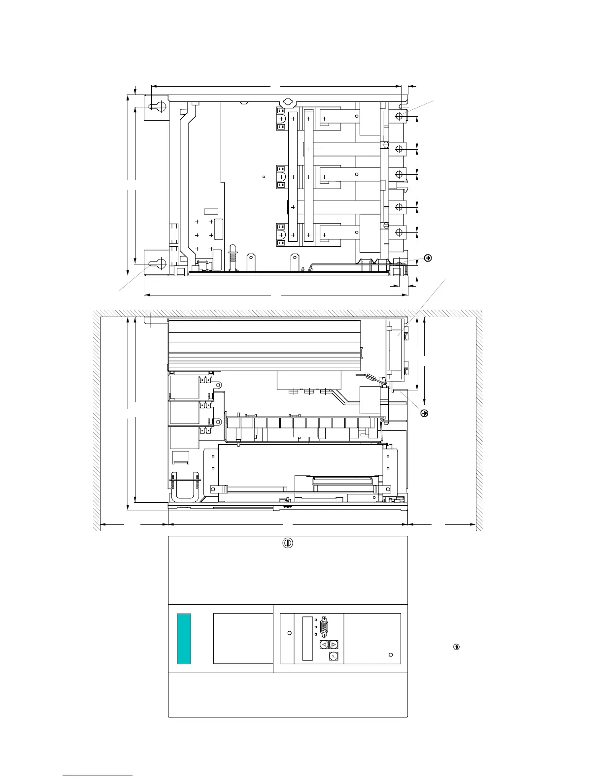
5.1.2 Converters: 3AC 400V and 575V, 60A to 280A, 1Q
s
350
283 265
230
15
385
3737108
129
1U1
V8
V7
V1+V4
T2 T3
R100
366
10
1D1 1V1 1C1 1W1
X300
XF1 XF2
100
1)
100
1)
V3+V6 V5+V2
for M8
for M6
17.5
271.5
12.5
48.548.5 48.5
1) Minimum clearance for air circulation
An adequate cooling air supply must be provided
Fan in devices
210A only
1U1, 1V1, 1W1, 1C1, 1D1 = 13 Nm
= 25 Nm
Tightening torque for customer connections:
Max. conductor size for cables with cable eye
in accordance with DIN 46234: 2 x 95 mm
2

Table of Contents

Related product manuals