EasyManua.ls Logo

Siemens 6RA7086-6KS22

Siemens 6RA7086-6KS22
734 pages
To Next Page IconTo Next Page
To Next Page IconTo Next Page
To Previous Page IconTo Previous Page
To Previous Page IconTo Previous Page
Loading...
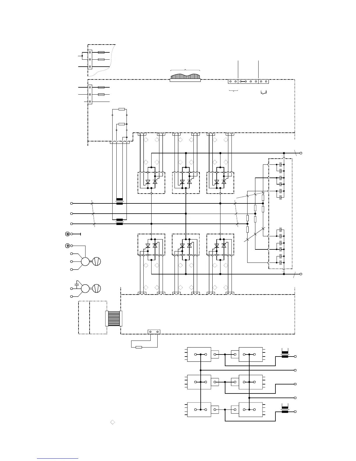
05.05 Connections
Siemens AG 6RX1700-0AD76 6-43
SIMOREG DC Master Operating Instructions
6.4.16 Converters: 450A to 600A, 4Q
C98043-A7002
X101
1U1 1V1 1W1
k
l
K
L
K
L
l
k
T2
T3
a
1C1
(1D1)
1D1
(1C1)
X7
X6
C98043-A7002
ϑ
R100
1W1
1V11U1 1D1
(1C1)
1C1
(1D1)
AK
K
A
V1
K2 G2 G1 K1
AK
K
A
V4
K1 G1 G2 K2
11 1
V1
G1
K
A
AK
X11-1
X11-2
K1
24 2
K2
X24-2
X24-1
G2
211
V4
G1
K
A
AK
X21-1
X21-2
K1
142
K2
X14-2
X14-1
G2
13 1
V3
G1
K
A
AK
X13-1
X13-2
K1
26 2
K2
X26-2
X26-1
G2
23
1
V6
G1
K
A
AK
X23-1
X23-2
K1
162
K2
X16-2
X16-1
G2
15 1
V5
G1
K
A
AK
X15-1
X15-2
K1
22 2
K2
X22-2
X22-1
G2
251
V2
G1
K
A
AK
X25-1
X25-2
K1
122
K2
X12-2
X12-1
G2
b
b
C98043-A7015
X102
X21 X14
X24 X11
T3
T2
X3-3
X3-2
X3-1
X3-4
R76
R75
B600
B601B602
B603
103
104
105
106
107
108
109
110
XT
XR
XS
c
C98043-A7011
D
C
95
c
C
R11R10
R13R12
R15R14
96 97 92 93 94
91 90
U1 V1 W1 U2 V2 W2
AK
K
A
V3
K2 G2 G1 K1
X26 X13
AK
K
A
V5
K2 G2 G1 K1
X22 X15
AK
K
A
V6
K1 G1 G2 K2
X23 X16
AK
K
A
V2
K1 G1 G2 K2
X25 X12
C
C98043-A7014
F2
M1A
5U15W1
XP
F1
M1A
5N1
321
NC
XP
321
F2
M1A
5U15W1
F1
M1A
5N1
4U1 4V1 4W1
M
3~
4U1 4N1
M
1~
to A7009 - X101
Arrangement of thyristor modules
Cables are designated like specified at ends
G (Gate)leads yellow
K (cathode) leads red
a = copper busbar 30 x 5
b = copper busbar 35 x 5
c = Raychem 44A0311-20-9
All cables are Betatherm 145 1mm
2
unless otherwise designated
Tacho
±
270V
Tachoground
ES/S
P24/ES
ES/P
ES/P_Reset
NS
NS
Tacho
AC 190 to 230VAC 380 to 460V or
or
E301
Fan
Converters: 460V

Table of Contents

Related product manuals