EasyManua.ls Logo

Siemens 6RA7086-6KS22

Siemens 6RA7086-6KS22
734 pages
To Next Page IconTo Next Page
To Next Page IconTo Next Page
To Previous Page IconTo Previous Page
To Previous Page IconTo Previous Page
Loading...
Installation 01.04
5-14 Siemens AG 6RX1700-0AD76
SIMOREG DC Master Operating Instructions
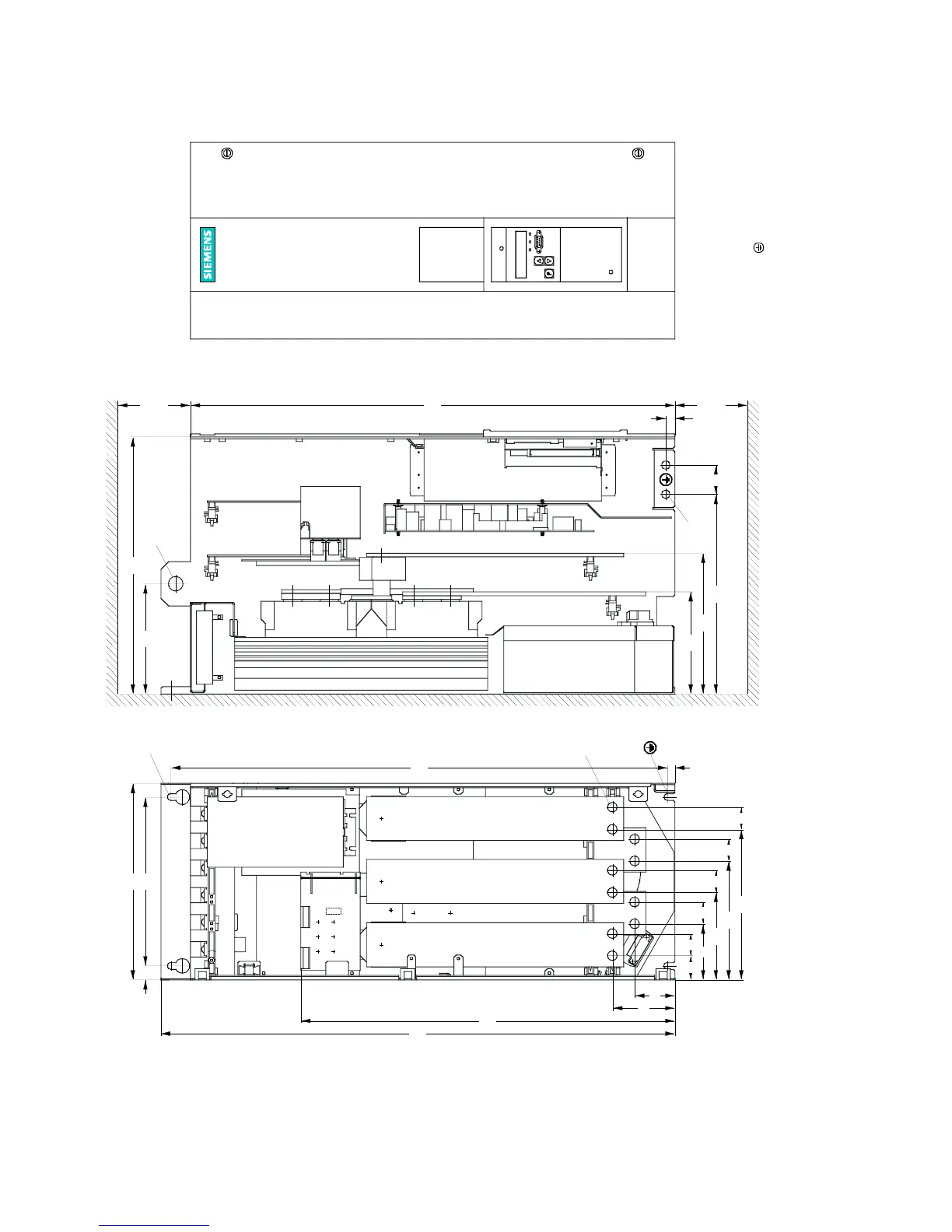
5.1.12 Converters: 3AC 400V, 575V, and 690V, 760A to 850A, 4Q
XF1 XF2
1U1 1V1 1W1
30
33
30
30
30
30205
162
119
76
139
510
55
85
700
268
23019 150
350
85
677
10
192
1C1
(1D1)
T2
T3
V1
V3
V5
V8
V4
V6
V2
V7
X300
1D1
(1C1)
12
275 40
660
100
1)
100
1)
for M12
Lifting lug Ø20
for M8
for M10
1) Minimum clearance for air circulation
An adequate cooling air supply must be provided
1U1, 1V1, 1W1, 1C1, 1D1 = 44 Nm
= 50 Nm
Tightening torque for customer connections:
Max. conductor size for cables with cable eye
in accordance with DIN 46234: 4 x 150 mm
2

Table of Contents

Related product manuals