EasyManua.ls Logo

Siemens 6RA7086-6KS22

Siemens 6RA7086-6KS22
734 pages
To Next Page IconTo Next Page
To Next Page IconTo Next Page
To Previous Page IconTo Previous Page
To Previous Page IconTo Previous Page
Loading...
Installation 01.04
5-22 Siemens AG 6RX1700-0AD76
SIMOREG DC Master Operating Instructions
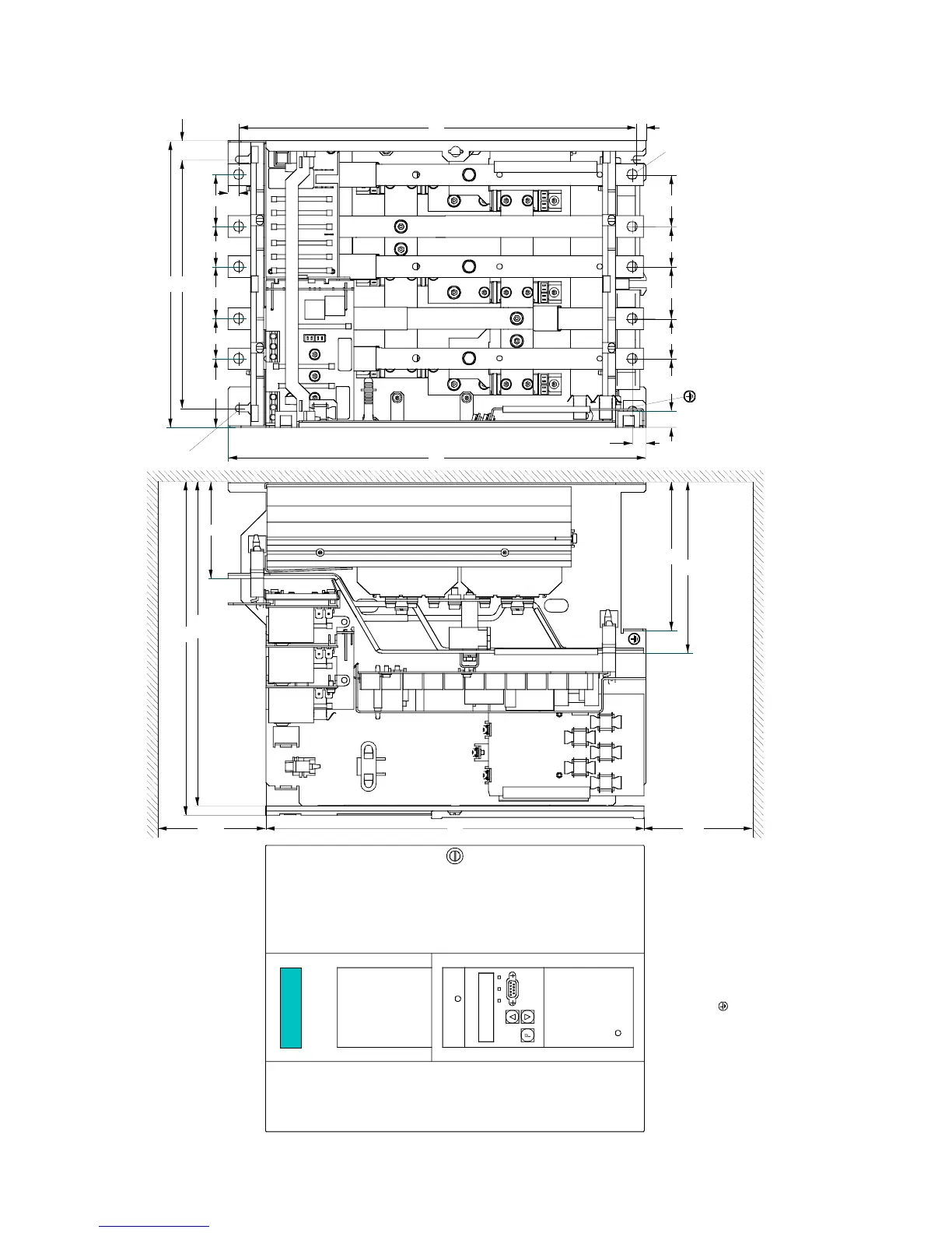
5.2.5 Converters: 3AC 460V, 60A to 125A, 4Q
s
X300
37
1U1
10
1D1
(1C1)
1V1 1C1
(1D1)
1W1
1U1 1D1
(1C1)
1V1 1C1
(1D1)
1W1
48,5
3748 48
3763,5 3748 48
265
230
17,5
385
12,5
15
159
138
366
90
10
350
313
100
1)
100
1)
301,5
XF1
XF2
for M8
for M6
1) Minimum clearance for air circulation
An adequate cooling air supply must be provided
1U1, 1V1, 1W1, 1C1, 1D1 = 13 Nm
= 25 Nm
Tightening torque for customer connections:
Max. conductor size for cables with cable eye
in accordance with DIN 46234: 2 x 95 mm
2

Table of Contents

Related product manuals