EasyManua.ls Logo

Sony CCD-TR317 - Lcd Block Diagram (Trv Model)

Sony CCD-TR317
228 pages
Print Icon
To Next Page IconTo Next Page
To Next Page IconTo Next Page
To Previous Page IconTo Previous Page
To Previous Page IconTo Previous Page
Loading...
CCD-TR317/TR517/TRV17/TRV37/TRV47/
TRV57/TRV57P/TRV67/TRV87/TRV87P
3-23 3-24
( ) : Page No. shown in ( ) indicates the page to refer on the schematic diagram.
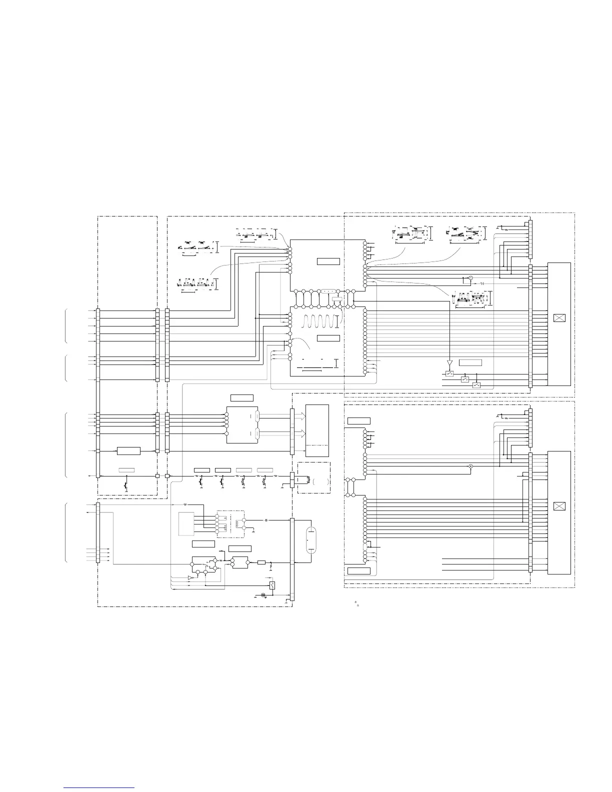
3-11.LCD BLOCK DIAGRAM (TRV MODEL)
TRV MODEL : CCD-TRV17/TRV37/TRV47/TRV57/TRV57P/TRV67/TRV87/TRV87P
IC5501 rk
0.5Vp-p
H
IC5501 rj
0.5Vp-p
H
IC5501 rh
0.5Vp-p
H
IC5501 w;
2H
3.0Vp-p
2H
IC5501 ws
3.0Vp-p
2H
IC5501 wf
3.0Vp-p
2.8Vp-p
IC5502 1
H
3.0Vp-p
IC5502 wh
6 MHz
S003
1k
C5528
1.5k
15
20
39
46
29
22
33
16
42
41
48
24
25
47
40
26
30
27
37
32
35
R
G
B
XSCK
SI
XCS
COM FRP
VCC1
VCC2
VSH
VCC3
VCC4
VR
VG
VB
COM OUT
FRP
BLK
EXT DA2
10
6
14
7
9
11
8
32
15
COM1
COM4
SEG1
SEG18
CS
C/XD
SO
SCK
VDD
LCD DRIVE
LCD DRIVER
4
18
24
23
4
3
22
5
1
5
6
26
2
S5703 S5704S5701 S5702
BRIGHT +
2
1
3
7
11
10
9
5
1
2
3
4
5
6
12
CN5702
CN5704
CN5702
CF-67 BOARD
BACK LIGHT
DRIVE
Q002,003
27
26
17
18
15
11
34
5
1
2
3
4
5
6
12
LCD
INDICATOR
BACK
LIGHT
LCD BLOCK ASSY
5
6
7
8
3BL REG
PANEL -15.3V
PANEL 13.3V
PANEL 4.75V
PANEL 2.8V
CN5701
POWER
(DD-134)
1
5
2
T5601
INVERTER
DRIVE
L5601
BL REG
Q5602
10
C5607
PANEL 4.75V
Q5603,
5604
3
2
1
BL LOW
BL HIGH
ND901
(BACK LIGHT)
LCD
PANEL
LCD901
CN004
CN004
CN005
DISP LCD VDD
KEY AD6
LCD LED ON
EVER 3V
XOSD SCK
XOSD SO
LCD COM/XDATA
XCS LCD DRIVER
MODE CONTROL(2)
(VC-234)
CN5703
CN5705
CN5604
16
PANEL
REVERSE
FP-152
20
32
31
14
45
42
39
28
CN001
XCS LCD DA
XVC SCK
VC SO
PANEL HOLD
PANEL R
PANEL G
PANEL B
PANEL XVD
CAMERA/VIDEO
(VC-234)
VTR/CAMERA
CONTROL
(VC-234)
(SEE PAGE
3-12)
(SEE PAGE
3-9)
PANEL HOLD
PANEL XVD
PD-117 BOARD
IC5701
IC5501
IC5601
IC5602
10
3
4
6
D5602
DISP LCD VDD
ND902
30 6 6
9
10
11
PANEL SYNC
C SYNC
1
2
7
3
PROGRAM AE BRIGHT - VOLUME -VOLUME +
2
BGP
EXT DA1
11 45 38
PD
29 27 263740
41
39
VCO
VCO
25 28
XP.SAVE
XC.SAVE
PANEL 2.8V
PANEL 4.75V
PANEL 13.3V
42
HDI
W/H
SI
45
1
46
3
48
SO
44
XSCK
XVD
XCS
47
2
17
PSS1
13
23
14
PSS2
15
20
22
EX2
CLD
24
SPS
EX1
CTR
PSG
18
MODE2
21
16
RES
12
30
9
5
8
MODE1
CLS
VDD
PWM
LED
BL DET
TIMING GENERATOR
IC5502
19
20
21
11
4BL CONT
1
6
7
25
INH
5
4
3
BL
DET
PANEL 2.8V
RECT
D5601
Q5601
PWM
EXT DA1
LED
BL DET
18
17
16
15
14
10
9
8
7
6
5
12
PANEL 2.8V
4
23PANEL 2.8V
8
7
5
4
3
2
1
CN5501
SYNC
XVD OUT
XHD OUT
SYNC
XVD OUT
XHD OUT
VR
PANEL COM
VG
VB
2
4
IC5503
24
3
1
Q5504,5506
Q5502
Q5503,5505
PANEL 4.75V
PANEL -15.3V
PANEL 13.3V
VR
VG
VB
V COM
VGLAC
VSH 3V
SPD
CLD
CTR
PSS2
PSS1
PSG
EX2
MO2
MO1
EX1
SPS
CLS
VSH 5V
VGL
VGH
CN5502
FOR CHECK
10
9
6
GND
N.C.
(TYPE S)
RES
13
19
78910
(STARTER)
(SEE PAGE
3-17)
(SEE PAGE
3-29)
HCNT
11
4
RESET
CN5502
FOR CHECK
PANEL 4.75V
VB
5
43
8
MCLK
3
MCLK
PANEL 13.3V
24
24
8
VDD
7
CLR
2
24
25
3
GPCK
STBYB
6
OE
1
CP
1
CPMODE
LCD
5
SRT
CN5501
GRES
PANEL 4.75V
VDD
PANEL
12
VCC1
17
RESET
CLR
26
PANEL -15.3V
PWM
LCD901
PANEL 2.8V
VCC2
SRT
GSRT
IC5501
STBYB
PANEL 13.3V
LED
4
VSH
13
GPCK
18
VB
18
27
VR
BL DET
EXT DA1
23
VCC3
23
GRES
C SYNC
GSRT
COM OUT
17
37
VG
13
VCC4
14
N.C.
22
25
XVD OUT
21
16
VB
IC5502
20
PANEL 2.8V
VR
OE
VBC
28
XHD OUT
16
15
35
V COM
19
45
8
VG
15
VSH
16
XP.SAVE
VR
HCNT
EXT DA2
14
VDD
20
38
7
20
VGL
42
XC.SAVE
PANEL COM
15
12
10
STBYB
21
5
22
VGH
VG
PANEL 2.8V
9
19
9
6
N.C.
9
10
GND
(TYPE C)
[LCD TYPE CHECK]
By measuring the resistor value between Pin
6
of CN5502 and Pin
0
of
CN5502,the type of LCD can be discriminated.
1k :TYPE S
1.5k :TYPE C
SPD
(4-77)
(4-77)
(4-78)
(4-75)
(4-75)
(4-76)

Table of Contents

Related product manuals