EasyManua.ls Logo

Sony CCD-TR317 - Color Evf Block Diagram

Sony CCD-TR317
228 pages
Print Icon
To Next Page IconTo Next Page
To Next Page IconTo Next Page
To Previous Page IconTo Previous Page
To Previous Page IconTo Previous Page
Loading...
CCD-TR317/TR517/TRV17/TRV37/TRV47/
TRV57/TRV57P/TRV67/TRV87/TRV87P
3-27 3-28
( ) : Page No. shown in ( ) indicates the page to refer on the schematic diagram.
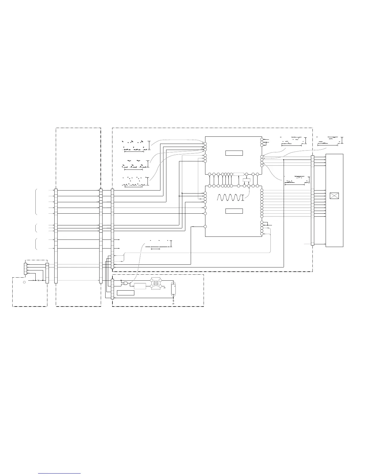
3-13.COLOR EVF BLOCK DIAGRAM
IC4601 4
4.6Vp-p
H
IC4501 w;
7.2Vp-p
2H
IC4501 ws
2H
7.2Vp-p
IC4501 wf
7.2Vp-p
2H
IC4501 rh
0.5Vp-p
2H
IC4501 rj
0.43Vp-p
2H
0.50Vp-p
IC4501 rk
2H
10.86 MHz
1.3Vp-p
IC4502 wh
T4601
210
64
R4601
20
39
46
22
33
15
42
41
48
24
25
47
40
30
12
32
R
G
B
XSCK
SI
XCS
VCC1
VCC2
VCC3
VR
VG
VB
COM DC
FRP
BLK
LCD DRIVER
11
12
13
3
4
5
8
CN4501
CF-66 BOARD
11
LCD
PANEL
LCD902
CN006
19
32
31
44
41
38
28
CN001
XCS EVF DA
XVC SCK
VC SO
EVF R
EVF G
EVF B
PANEL XVD
CAMERA/VIDEO
(VC-234)
VTR/CAMERA
CONTROL
(VC-234)
(SEE PAGE 3-12)
(SEE PAGE 3-9)
EVF XVD
VF-141 BOARD
IC4601
IC4501
29 7 12
14
15
16
PANEL XHD
7
8
6
BGP
2114538
SHR
35 27 263740 39
VCO
VCO
25 28
XP.SAVE
XC.SAVE
EVF 2.8V
EVF 13.3V
42
HDI
SI
45
1
46
48
SO
44
XSCK
XVD
XCS
2
17
RGT
23
14
HST
15
20
22
DWN/CLR
HCK1
24
VST
HCK2
EN
18
STB
21
16
BLK
19
43
9
10
8
VCK
VDD
VDD
PWM
LED
-IN
TIMING GENERATOR
IC4502
14
15
13
16
12
11
10
9
8
7
6
5
4
3
EVF 2.8VXHD OUT
1
VR
VG
VB
COM
BLK
HCK1
HCK2
HST
RGT
EN
DCG/OLR
STB
VCK2
VST
VDD
CN4502
5145
EVF XHD
EVF 13.3V EVF 13.3V
9
10
2
1
EVF 2.8V
18
17
EVF 2.8V
POWER
(VC-234)
34
SHG
3
33
45
32 29
PD
SHB
SHA
EVF 13.3V
2
115
6
45
4415
16
13
14
42
43 3
4
17
18
13
4
1
3
2
VC-234
BOARD
EVF BL 4.75V
EVF BL 4.75V
R990,991
(CN981
1
)
CN982
FOR CHECK
VCO
EVF VG
EVF BL
6
2
INVERTER
DRIVE
4
2
PWM
Q4601
5
BACK LIGHT
4
DET
CN4601
LB-62
BOARD
ND902
COLOR EVF MODEL : CCD-TR517
16
PWM
DET
VCO
EVF VG
CN975
••
1
91078
(4-86)
(4-88)
(4-86)

Table of Contents

Related product manuals