EasyManua.ls Logo

Sony CCD-TR317 - Hi Control

Sony CCD-TR317
228 pages
Print Icon
To Next Page IconTo Next Page
To Next Page IconTo Next Page
To Previous Page IconTo Previous Page
To Previous Page IconTo Previous Page
Loading...
CCD-TR317/TR517/TRV17/TRV37/TRV47/
TRV57/TRV57P/TRV67/TRV87/TRV87P
4-29 4-30
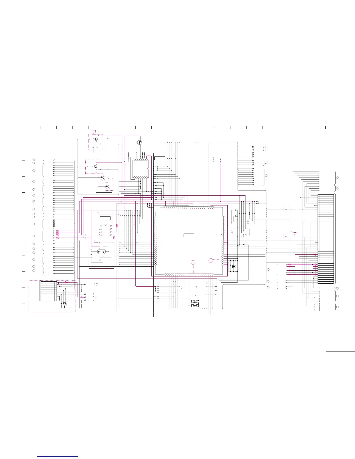
HI CONTROL
VC-234 (11/13)
For Schematic Diagram
• Refer to page 4-35 for printed wiring board.
• Refer to page 4-95 for waveforms.
NO MARK:REC/PB MODE
R :REC MODE
P :PB MODE
(TR MODEL)
(TRV MODEL)
TR MODEL : CCD-TR317/TR517
TRV MODEL : CCD-TRV17/TRV37/TRV47/TRV57/TRV57P/TRV67/TRV87/TRV87P
VIDEO LIGHT MODEL : CCD-TRV17/TRV37/TRV57/TRV57P/TRV67/TRV87/TRV87P
LASER LINK MODEL : CCD-TRV87/TRV87P
B/W EVF MODEL : CCD-TRV17/TRV37/TRV47/TRV57/TRV57P/TRV67/TRV87/TRV87P/TR317
(TRV MODEL)
VIDEO LIGHT MODEL
2.8
0
0
3.0
0
3.0
0
0
2.8
0
0
0
0
0
0
R0/
P8.2
R0/
P2.8
0
2.6
0
0
2.9
3.0
3.0
3.0
R7.3/
P7.5
3.0
3.0
3.0
2.7
0.3
2.5
0.3
2.8
2.8
2.8
2.3
2.8
2.8
2.8
2.8
3.0
2.6
2.5
3.0
3.0
3.0
3.0
2.7
2.7
2.6
2.7
0
3.0
3.0
3.0
2.8
0
2.8
0
R0/P-0.1
2.7
2.4
1.4
3.0
2.9
2.9
0
0
R3.0/P0
1.1
1.5
3.0
0.3
0
R2.9/P0
2.9
2.6
2.8
2.8
2.7
2.8
2.7
0
0
3.0
0.3
1.7
1.4
3.0
0
2.7
2.7
2.8
2.7
2.8
2.8
R0/P2.8
3.0
R2.8/P0
2.8
2.8
2.9
2.8
0
3.0
0
0
3.0
2.8
R0/P2.8
0.7
R0/P1.7
2.8
53
52
TR MODEL
TRV MODEL
LASER LINK
MODEL
LASER
LINK
MODEL
B/W EVF
MODEL
TRV
MODEL
TR
MODEL
FB801
0uH
B
C810
0.01u
1k
R874
1k
R875
47k
R865
1k
R877
MA111-(K8).S0
D803
1k
R867
D802
MA111-(K8).S0
B
C811
0.01u
1k
R849
100k
R820
100k
R847
D801
MA111-(K8).S0
0.1u
F
C803
BC813
0.01u
100k
R811
470k
R817
1k
R825
Q806
RN2102F(TPL3)
470kR868
REG_GND
CH
C821
22p
CH
C822
15p
XPHOTO_FREEZE
F
C826
0.1u
HN1L02FU(TE85R)
Q804
F
C823
0.1u
F
0.1u
C825
0.1u
F
C824
1k
R888
100kR891
HOTSHOE_ID2
XEJECT_SW
470k
R818
KEY_AD1
3300
R805
XSIRCS_SIG
KEY_AD0
XX
R812
DC_PACK_SW
D_2.8V
X802
32.768kHz
BATT/XEXT_SW
EVER_3.0V
B
6800pC820
BATT_SIG
VTR_UNREG
XX
D805
LANC_SIG
BATT_UNREG
560k
R866
HOTSHOE_ID1
XCS_VSC
SHOE_ON
LANC_DC
FAST_CHARGE
XLANC_JACK_IN
SIRCS_PWM
LANC_SIG
IR_ON
1k
R843
HI_SI
1k
R844
1u
F
C801
HI_SO
1k
R845
XHI_SCK
CAM_DD_ON
1k
R848
VTR_DD_ON
XOSD_SCK
4700
R802
XCS_OSD
1k
R806
470k
R887
OSD_SO
2200
R807
100k
R872
XSYS_RST
1k
R810
100k
R873
0.1u
F
C818
1M
R832
220k
R833
100k
R837
INIT_CHARGE_ON
470k
R835
100kR838
BEEP
1M
R871
100k
R839
EXT_MIC_DET
470kR869
XWIND_ON
B
C814
0.01u
HP_JACK_IN
470kR870
1k
R840
JACK_MONO
XF_TALLY_LED
0.1u
F
C817
XS_JACK_IN
XIR_LED_ON
B
C815
0.01u
V_JACK_IN
100kR890
XCS_LCD_DRIVER
470k
R879
DEW_AD
470k
R819
TL1596CPWR IC802
1
UNREG
2
NC
3
C
4
POWER
5
NC
6
GND
7
NC
8
VCC
9
WAKE
10
DATA
11
LANC_SIG
12
DATA
13
NC
14
LANC_DC
XCC_DOWN
RN1104F(TPL3)
Q805
FK_LED_ON
100kR831
VC_RF_SWP
RN1104F(TPL3)
Q803
470kR815
XCS_VC
2SC4738F
Q801
XHI_SCK
10k
R823
XVTR_MODE_SW
2SC4738F-Y/GR(TPL3)
Q802
HI_SO
IC803
LANC_IN
1
LANC_OUT
2
XWIND_ON/XCS_VC(N8)
3
XSIRCS_IN
4
SW_LED_ON
5
XF_TALLY_LED
6
XIR_LED_ON
7
N.C
8
XSYS_RST
9
N.C
10
N.C
11
XLANC_ON
12
GND
13
XVTR_MODE_SW
14
XCAM+STBY_SW
15
XS/S_SW
16
XEJECT_SW
17
XCC_DOWN
18
XPHOTO_FREEZE
19
XPHOTO_STBY_SW
20
XLANC_POWER_ON
21
XCS_VC
22
RXD
23
LCD_COM_XDATA
24
INIT_CHARGE_ON
25
NC
26
NC
27
CAM_DD_ON
28
VTR_DD_ON
29
XLANC_JACK_IN
30
HP_SENS
31
XLI_PRE_END
32
HI_SI
33
HI_SO
34
xHI_SCK
35
MELODY/SIRCS_CARRIER
36
OPEN
37
XRESET
38
GND
39
20MHZ_OUT
40
20MHZ_IN
41
VDD
42
IR_ON
43
XCS_OSD
44
OSD_SO
45
XOSD_SCK
46
CHARGE_INH
47
IB_SI
48
IB_SO
49
FAST_CHARGE
50
VDD
51
32KHZ_IN
52
32KHZ_OUT
53
GND
54
TALLY_LED
55
MELODY_ENV
56
N.C
57
N.C
58
SIRCS_ENV
59
XCS_LCD_DRIVER
60
BATT_IN
61
TEST_PORT(N8)
62
SWP
63
SYS_V
64
DS_BUSY
65
BATT/XEXT
66
DIAL A
67
DIAL B
68
232C_JACK
69
GND
70
DEW
71
HOTSHOE_ID1
72
HOTSHOE_ID2
73
GND
74
AVREF_0
75
AVREF_1
76
AVDD
77
LCD_LED_ON
78
N.C
79
XCS_VSC
80
SHOE_ON
81
EXT_MIC_DET
82
JACK_MONO(RCH)
83
V_JACK_IN
84
XS_JACK_IN
85
VDD
86
VDD
87
GND
88
XDRY_BATT
89
BATT_SENSE
90
ACV_SENSE
91
NC
92
KEY_AD0
93
KEY_AD1
94
KEY_AD2
95
KEY_AD3
96
KEY_AD4
97
KEY_AD5
98
KEY_AD6
99
KEY_AD7
100
XCAM+STBY_SW
1k
R809
0.022u
B
C819
47k
R801
XS/S_SW
100k
R878
470kR821
0.1u
F
C807
2700
R824
100k
R803
470k
R814
220k
R834
470kR881
470k
R880
470k
R816
S-8423YFS-T2
IC801
VSS
1
PREEND
2
VBAT
3
CS
4
RESET
5
VOUT
6
VIN
7
VRO
8
TA
C806
33u
4V
A
MA111-(K8).S0
D804
470k
R808
0.1u
F
C804
470kR836
47k
R822
470k
R813
0.1u
F
C802
B
C809
0.01u
470
R882
1k
R889
10MR876
10kR892
470k
R886
3216
1u
F
C805
XLANC_JACK_IN
XSYS_RST
SYS_V
XHI_SCK
HI_SO
HI_SI
XSYS_RST
CAM_DD_ON
CN975 45P
1
2
3
4
5
6
7
8
9
10
11
12
13
14
15
16
17
18
19
20
21
22
23
24
25
26
27
28
29
30
31
32
33
34
35
36
37
38
39
40
41
42
43
44
45
R992 0
R977
0
PANEL_R
PANEL_G
EVF_G/BW_Y
PANEL_B
EVF_R
PANEL_SYNC
PANEL_XHD
PANEL_XVD
PANEL_HOLD
EVF_B
EVF_2.8V
EVER_3.0V
VTR_UNREG
EVF_BL_GND
EVF_13.3V
VCO
EVF_VG
SP+
SP- EVF_BL/BW_EVF_4.75V
FOCUS_A_AD
VC_SO
FOCUS_B_AD
XCS_EVF_DA
BL_BL
XSC_LCD_DA
XVC_SCK
BW_VCO
BW_CONTRAST
R998
XX
R997
XX
R995
XX
R979
0
BL_BRIGHT
R993
XX
XXR972
10P
CN973
1
2
3
4
5
6
7
8
9
10
MA8082-(K8).S0
D971
SHOE_UNREG
0
R971
SHOE_MIC_L
D972
01ZA8.2(TPL3)
SHOE_GND
V_LIGHT_PWM
1
A
XVTR_MODE_SW
R978
0
C973
0.1u
C974
0.1u
X801
20MHz
LANC_SIG
LANC_DC
LI_3V
XLI_PRE_END
SIRCS_PWM
MELODY
SIRCS_ENV
SYS_V
RF__SWP
SIRCS_ENV
FAST_CHARGE
XCS_OSD
IR_ON
CAM_DD_ON
VTR_DD_ON
XLI_PRE_END
HI_SI
HI_SO
XHI_SCK
MELODY
XCC_DOWN
XLANC_PWR_ON
XCS__VC
LCD_COM/XDATA
INIT_CHARGE_ON
XWIND__ON
EXT_MIC_DET
SHOE_ON
XCS__VSC
HI_SO
XHI_SCK
FK_LED_ON
IR_ON
SIRCS_PWM
SIRCS_SIG
DC_PACK_SW
FAST_CHARGE
BATT/XEXT_SW
BATT_SIG
LANC_SIG
HOTSHOE_ID1
SHOE_ON
LANC_DC
LANC_SIG
KEY_AD5
KEY_AD4
KEY_AD6
KEY_AD2
DIAL_B
DIAL_A
HP__SENS
XVTR_MODE_SW
XLANC_PWR_ON
XLANC_ON
DC_PACK_SW
XCS_LCD_DRIVER
MELODY_ENV
TALLY_LED
XPHOTO_FREEZE
XLANC_JACK_IN
XLANC_JACK_IN
HOTSHOE_ID2
LCD_LED_ON
XOSD_SCK
OSD_SO
XSYS_RST
SIRCS_SIG
XF_TALLY_LED
XCC_DOWN
DEW_AD
V_JACK_IN
XS_JACK_IN
JACK_MONO
VTR_DD_ON
XOSD_SCK
XCS_OSD
OSD_SO
XSYS_RST
INIT_CHARGE_ON
BEEP
EXT_MIC_DET
HI_SO
XHI_SCK
XCS__VSC
RF__SWP
HP__SENS
XSC_VC
HI_SI
MELODY_ENV
DEW_AD
FK_LED_ON
BATT_SIG
HOTSHOE_ID2
JACK_MONO
XS_JACK_IN
V_JACK_IN
KEY_AD1
XPHOTO_FREEZE
KEY_AD0
XCAM+STBY_SW
XS/S_SW
XEJECT_SW
XIR_LED_ON
XLANC_JACK_IN
XSYS_RST
SYS_V
XHI_SCK
HI_SO
HI_SI
XSYS_RST
XWIND__ON
CAM_DD_ON
CAM_DD_ON
XVTR_MODE_SW
XCS_LCD_DRIVER
XIR_LED_ON
KEY_AD1
XS/S_SW
XF_TALLY_LED
XCAM+STBY_SW
KEY_AD0
XEJECT_SW
HOTSHOE_ID1
BATT/XEXT_SW
KEY_AD5
KEY_AD6
KEY_AD4
KEY_AD2
XCS_LCD_DRIVER
LCD_COM/XDATA
LCD_LED_ON
DIAL_A
DIAL_B
LI_3V
XOSD_SCK
XOSD_SO
BEEP
TALLY_LED
LANC_SIG
HOTSHOE_ID2
HOTSHOE_ID1
XLANC_ON
BEEP
XVTR_MODE_SW
4
5
1
2
36
-REF.NO.:10000 SERIES-
IC801
16
XX MARK:NO MOUNT
HI CONTROL(HI BLOCK)
VC-234 BOARD(11/13)
INITAL RESET
BACK UP VCC
IC803
IC802
LANC IN/OUT
LANC ON SWITCH
71
TO(12/13)
TO(5/13)
29
TO(12/13)
72
24
TO(3/13)
74
TO(1/13)
TO(13/13)
64
TO(12/13)
71
57
TO(10/13)
58
TO(10/13)
TO(9/13)
51
TO(13/13)
90
TO(12/13)
83
TO(7/13)
43
70
TO(12/13)
64
TO(13/13)
TO(5/13)
81
79
TO(12/13)
69
TO(12/13)
78
TO(12/13)
TO(13/13)
62
TO(13/13)
63
VCO
KEY_AD5
DIAL_B
EVF_2.8V
REG_GND
PANEL_SYNC
BATT_LI_3V
EVF_BL
KEY_AD4
DIAL_A
EVF_2.8V
KEY_AD2
PANEL_XHD
EVF_BL
EVF_G/BW_Y
SP_-
LCD_LED_ON
REG_GND
VC_SO
XOSD_SO
XOSD_SCK
EVF_13.3V
EVF_R
SP_+/BEEP_SIG
FOCUS_A_AD
PANEL_R
REG_GND
XCS_EVF_DA
VTR_UNREG
PANEL_B
LCD_COM/XDATA
FOCUS_B_AD
XVC_SCK
XCS_LCD_DA
EVF_BL_GND
EVF_B/TALLY
XCS_LCD_DRIVER
PANEL_HOLD
EVF_VG
KEY_AD6
REG_GND
EVF_BL_GND
PANEL_G
PANEL_XVD
EVER_3.0V
TO(2/13)
46
45
TO(2/13)
TO(13/13)
90
75
TO(5/13)
60
TO(12/13)
65
TO(5/13,13/13)
TO(9/13)
48
44
TO(8/13)
TO
CF-66 BOARD
(SEE PAGE
4-47)
CN001
TO
CF-67 BOARD
CN001
(SEE PAGE
4-49)
SHOE_UNREG
SHOE_UNREG_GND
SHOE_UNREG_GND
SHOE_UNREG_GND
SHOE_MIC_L
SHOE_UNREG
SHOE_MIC_GND
SHOE_ID1
LANC_SIG/LIGHT_PWM
SHOE_ID2
VL-29 BOARD
CN151
(SEE PAGE
4-64)
52
TO(9/13)
61
TO(13/13)
47
G
9
C
I
16
E
K
8
J
B
13
D
146
F
1910 20113 181512 17
L
25
H
89
TO(9/13)
Q804
BATT SIGNAL
IN/OUT
MODE CONTROL

Table of Contents

Related product manuals