EasyManua.ls Logo

Sony DNW-A75 - 1-5. Installation Space

Sony DNW-A75
246 pages
Print Icon
To Next Page IconTo Next Page
To Next Page IconTo Next Page
To Previous Page IconTo Previous Page
To Previous Page IconTo Previous Page
Loading...
1-3
DNW-A75/A75P
481
465
364
427
31.5
36.7
220
148.2
19
158
104
15.9 12.7
123.8
263.5
457.5
45447.1
18.3
107
(70.6)
1.2
415.9
218
512.8
(454)
(47.1)
45.5
520
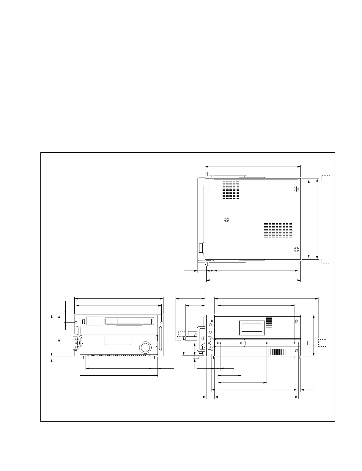
Mass
: 28.5 kg
577(Maximum traveling distance)
416(Rail-installed width)
427(Unit width)
Unit : mm
n Remove the feet when rack mounting.
1-5. Installation Space
When the unit is mounted in the rack, leave a space on the
top or bottom of this unit by 1U.
Moreover, an air flow that is effective in cooling the unit is
essential. If the ventilation is not enough, the unit may be
damaged because of an increase of the internal tempera-
ture.
n
This unit is air-cooled by the three fans. The operation with
the upper lid is removed affects the air cooling by the fans.
Complete the work in a short time as far as possible when
operating the unit for inspection with the upper lid re-
moved. If it takes a long time, blow to the unit by an
electric fan to cool the unit.
1-5. Installation Space
When installing, the installation space must be secured in
consideration of the ventilation and service operation.
. Do not block the ventilation slots (at the upper lid, right
side panel, and bottom plate), and vents of the fans.
. Leave a space around the unit for ventilation.
. Leave more than 40 centimeters of space in the rear of
the unit to secure the operation area.
When the unit is installed on the desk or the like, leave at
least four centimeters of space in the upper and right sides.
Living 40 centimeters or more of space above the unit is
recommended for the service operation.
Dimensions when Rack-Mounting

Table of Contents

Related product manuals