EasyManua.ls Logo

Sony DNW-A75 - Board

Sony DNW-A75
246 pages
Print Icon
To Next Page IconTo Next Page
To Next Page IconTo Next Page
To Previous Page IconTo Previous Page
To Previous Page IconTo Previous Page
Loading...
1-22
DNW-A75/A75P
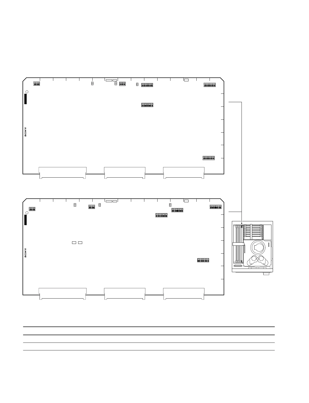
1-10-5. SS-83 Board
m
. Never change the settings of the factory use switches/shorting plugs.
. This figure is for DNW-A75.
SS-83 Board (Suffix -13 and higher, Side A)
SS-83 Board (Suffix -11, -12, Side A)
Shorting plugs
Ref. No. Name Description Factory setting
COR 100
*1
————— Factory use OPEN
COR 101
*1
————— Factory use OPEN
*1: Board No. suffix -11, -12
1-10. Switch and Shorting Plug Settings on PC Boards
< Top View >
n
Refer to 2-13 for
removing/reattaching
the plug-in board.
1-670-580- MADE IN JAPAN
A
D
6
7
5
4
3
2
1
BAEF
C
J
G
HKL N PR
SS-83
S101
>EPGW<
S100
S1101
A No.
S No.LOT No.
ON
14
S2700
S1900
S2100
S1100
ON
S1102
S2701
ON
14
18
ON
18
ON
18
ON
18
1-670-580- MADE IN JAPAN
A
D
6
7
5
4
3
2
1
BAEF
C
J
G
HKL N PR
SS-83
S101
>EPGW<
S100
S1101
A No.
S No.LOT No.
ON
14
S2700
S1900
S2100
S1100
ON
S1102
S2701
ON
14
18
ON
18
ON
18
ON
18
COR100 COR101

Table of Contents

Related product manuals