EasyManua.ls Logo

YASKAWA SGM H Series - Mechanical Specifications of SGMAH, SGMPH, SGMGH, SGMSH, and SGMDH Servomotors; Precautions on Servomotor Installation

YASKAWA SGM H Series
615 pages
Print Icon
To Next Page IconTo Next Page
To Next Page IconTo Next Page
To Previous Page IconTo Previous Page
To Previous Page IconTo Previous Page
Loading...
3.8 Mechanical Specifications of SGMAH, SGMPH, SGMGH, SGMSH, and SGMDH Servomotors
3-45
3
3.8 Mechanical Specifications of SGMAH, SGMPH, SGMGH,
SGMSH, and SGMDH Servomotors
3.8.1 Precautions on Servomotor Installation
Servomotors can be installed either horizontally or vertically.
The service life of the servomotor will be shortened or unexpected problems will occur if the servomotor is
installed incorrectly or in an inappropriate location. Always observe the following installation instructions.
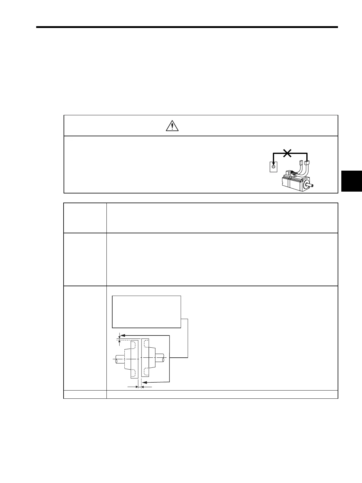
• Do not connect the servomotor directly to a commercial power line. This
will damage the servomotor.
The servomotor cannot operate without the proper SERVOPACK.
CAUTION
Do not connect
Storage
Temperature
and Humidity
Store the servomotor within the following temperature range if it is stored with the power cable discon-
nected.
Ambient temperature during storage: -20 to 60°C (-4 to 140°F)
Ambient humidity during storage: 80%RH or less (with no condensation)
Installation Site
Servomotors are designed for indoor use. Install the servomotor in environments that satisfy the follow-
ing conditions.
• Free of corrosive or explosive gases.
• Well-ventilated and free of dust and moisture.
• Ambient temperature of 0 to 40°C (32 to 104° F)
• Relative humidity of 20 to 80% with no condensation.
• Facilitates inspection and cleaning
Alignment
Align the shaft of the servomotor with the shaft of the equip-
ment, and then couple the shafts. Install the servomotor so
that alignment accuracy falls within the range described on
the left.
Vibration may occur and damage the bearings and encoders if
the shafts are not correctly aligned.
Orientation Servomotors can be installed either horizontally or vertically.
Measure this distance at four
different positions on the
circumference. The difference
between the maximum and
minimum measurements must be
0.03 mm (0.0012 in) or less.
(Turn together with coupling.)
Alignment Accuracy
Artisan Technology Group - Quality Instrumentation ... Guaranteed | (888) 88-SOURCE | www.artisantg.com

Table of Contents

Related product manuals