EasyManua.ls Logo

YASKAWA SGM H Series - Dimensional Drawings of Duct-Ventilated SERVOPACK Model; Three-Phase 200 V: 6.0 Kw;7.5 Kw (60 ADA-P to 75 ADA-P)

YASKAWA SGM H Series
615 pages
Print Icon
To Next Page IconTo Next Page
To Next Page IconTo Next Page
To Previous Page IconTo Previous Page
To Previous Page IconTo Previous Page
Loading...
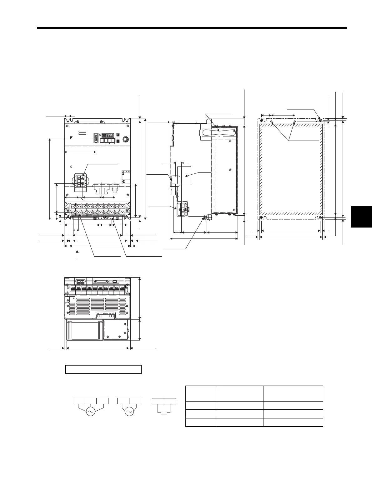
4.9 Dimensional Drawings of Duct-ventilated SERVOPACK Model
4-31
4
4.9 Dimensional Drawings of Duct-ventilated SERVOPACK Model
4.9.1 Three-phase 200 V: 6.0 kW/7.5 kW (60ADA-P to 75ADA-P)
7.9
(0.31)*
L1 L2 L3 B1 B2+-
UV W
125 (4.92)
27
(1.06)
87.5
(3.44)
90 (3.54)
5.5
(0.22)*
5.5
(0.22)*
L1C
!WARNING
MODE/SET DATA/
Ver.
POWER
BATTERY
CHARGE
L2C
CN2
CN1
CN3
CN5
CN8
SGDM-
171 (6.73)
Max.230 (9.06)
41
(1.61)
123.5
(4.86)
65.6*
(2.58)
19
(0.75)
51
(2.01)
66 (2.60)
12.5 (0.49)
46
(1.81)
205 (8.07)
25 (0.98)
30.5 (1.20)
9
(0.35)
100.5
(3.96)
282.6 (11.13)
7 (0.28)
12.5 (0.49)
28.3 (1.11)*
Max.
350 (13.78)
7.5
(0.30)
335 (13.19)
7.5 (0.30)
12.5 (0.49)
Cooling fan
107 (4.21)
10 (0.39)
21
(0.83)
21.9 (0.86)*
312.2 (12.29)
15.9 (0.63)*
Max.235 (9.25)
205 (8.07)
219 (8.62)
7 (0.28)
7
(0.28)
82 (3.23)
34
(1.34)
316 (12.44)
335 (13.19)
7.5 (0.30)
2.5 (0.10)*
7.5 (0.30)*
11.5 (0.45)*
7.5 (0.30)*
2
×
φ6 (φ0.24)
holes
Punched hole
145 (5.71)
217.3 (8.56)*
4.8 (0.19)*
110 (4.33)
YASKAWA
SERVOPACK 200V
Control circuit
terminal
M4
Main circuit
terminal M6
M8
Ground terminal
Ground
terminal
Main
circuit
terminal
Control
circuit
terminal
A
View A
* Reference length
Units: mm (in)
Approx. mass: 14 kg (30.86 lb)
Mounting Hole Diagram
4×M6 taps
Name-
plate
External Terminal Connector
SERVOPACK Connector
Connector
Symbol
SERVOPACK
Connector Model
Manufacturer
CN1 10250-52A2JL Sumitomo 3M Co., Ltd.
CN2 53460-0611 Molex Japan Co., Ltd.
CN3 10214-52A2JL Sumitomo 3M Co., Ltd.
L1C L2CL2 L3L1
External
regenerative
resistor
B1 B2
200 VAC
50/60 Hz
Three-phase
200 VAC
50/60 Hz
Single-phase
Main circuit
power supply
Control power
supply
Artisan Technology Group - Quality Instrumentation ... Guaranteed | (888) 88-SOURCE | www.artisantg.com

Table of Contents

Related product manuals