EasyManua.ls Logo

YASKAWA SGM H Series - Noise Filter

YASKAWA SGM H Series
615 pages
Print Icon
To Next Page IconTo Next Page
To Next Page IconTo Next Page
To Previous Page IconTo Previous Page
To Previous Page IconTo Previous Page
Loading...
5.8 Peripheral Devices
5-69
5
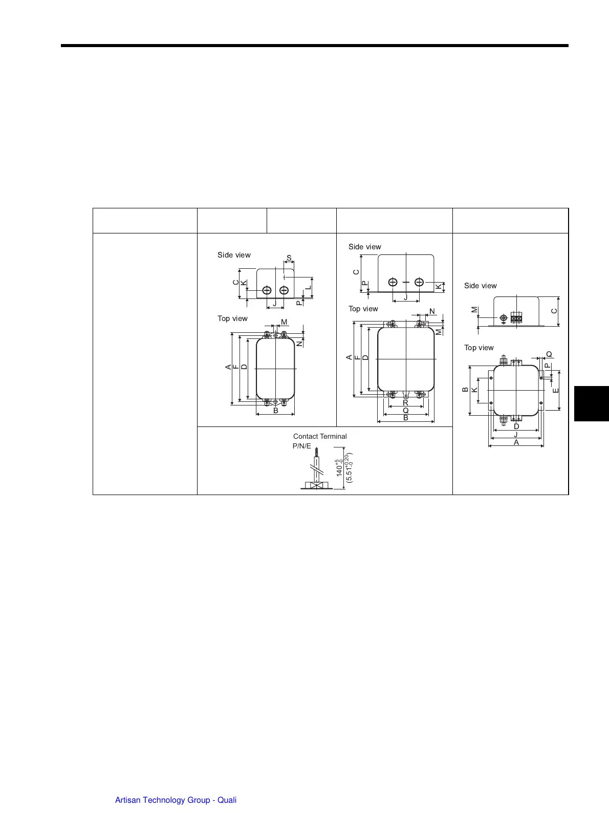
5.8.10 Noise Filter
The noise filters model FN and FS manufactured by Schaffner Electronic and FMAC manufacture by Timonta
AG are recommended. Contact Yaskawa Controls Co., Ltd.
Select one of the following noise filters according to SERVOPACK capacity. For more details, refer to 2.6.3
Noise Filters, Magnetic Contactors, Surge Suppressors and DC Reactors.
Refer to 6.1.3 Typical Main Circuit Wiring Examples for the connection method.
(1) Single-phase, 100/200 V
Model
FN2070
-6/07
FN2070
-10/07
FN2070-16/07 FN350-30/33
Dimensional
Drawings
S
Side view
Top view
J
L
P
C
K
M
B
N
A
D
F
Side view
Top view
J
K
C
P
N
R
Q
B
M
A
D
F
Side view
Top view
C
M
Q
D
J
A
E
P
B
K
Contact Terminal
P/N/E
140
-0
+5
(5.51 )
-0
+0.20
Artisan Technology Group - Quality Instrumentation ... Guaranteed | (888) 88-SOURCE | www.artisantg.com

Table of Contents

Related product manuals