EasyManua.ls Logo

YASKAWA SGM H Series - With Low-Backlash Gears

YASKAWA SGM H Series
615 pages
Print Icon
To Next Page IconTo Next Page
To Next Page IconTo Next Page
To Previous Page IconTo Previous Page
To Previous Page IconTo Previous Page
Loading...
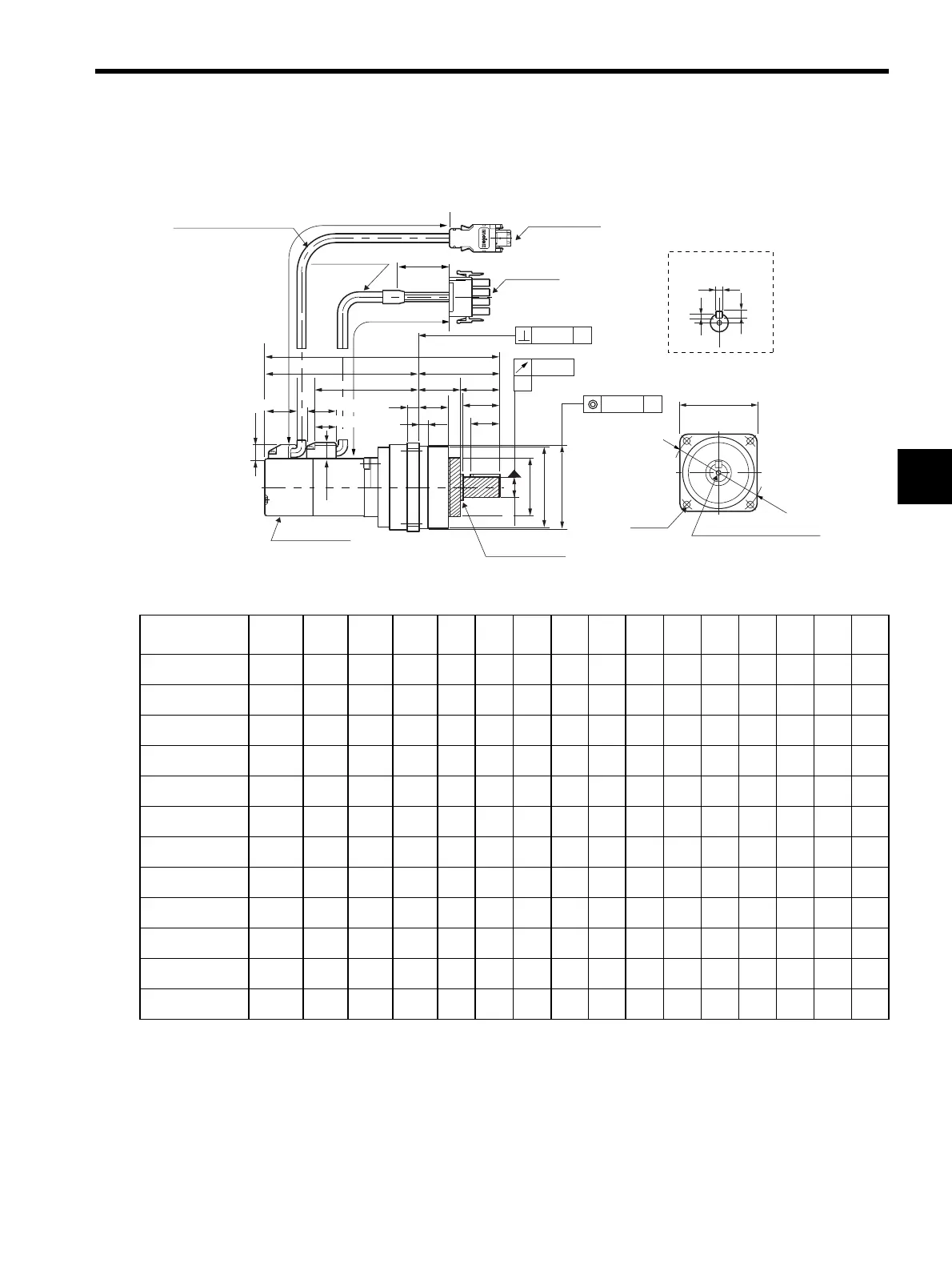
3.12 Dimensional Drawings of SGMAH Servomotors (3000 min
-1
)
3-71
3
3.12.5 SGMAH Servomotors (3000 min
-1
) With Low-backlash Gears
(1) 30 W, 50 W, 100 W
φB
φLD
φLBh7
Aφ0.05
(
φ
0.0020)
Encoder plug
Motor plug
300(11.81)±30(1.18)
300(11.81)±30(1.18)
(35) (1.38)
Motor cable
φ7(
φ
0.28)
Encoder cable φ6 (φ0.24)
UL20276
L
LL
LM
LR
L2
Q
L3LG
LE
QK
L1
A0.06
(0.0024)
9.5(0.37)
Serial encoder
A
0.04
(0.0016)
W
T
U
LC
φLA
Tap × Depth
(See the following table.)
Shaft End
4-φLZ
φSh7
Rotating section
(Hatching section)
22 (0.87)
15.2 (0.60)
20 (0.79)
11(0.43)
Units: mm (in)
Model
SGMAH-
Gear
Ratio
L LL LM LR LE LG B LD LB L1 L2 L3 Q QK S
A3AH11
1/5
152.5
(6.00)
97.5
(3.84)
64.5
(2.54)
55
(2.17)
6
(0.24)
8
(0.31)
40
(1.57)
55.5
(2.19)
56
(2.20)
28
(1.10)
27
(1.06)
20
(0.79)
25
(0.98)
20
(0.79)
14
(0.55)
A3AH21
1/9
152.5
(6.00)
97.5
(3.84)
64.5
(2.54)
55
(2.17)
6
(0.24)
8
(0.31)
40
(1.57)
55.5
(2.19)
56
(2.20)
28
(1.10)
27
(1.06)
20
(0.79)
25
(0.98)
20
(0.79)
14
(0.55)
A3AHC1
1/21
167.5
(6.59)
112.5
(4.43)
79.5
(3.13)
55
(2.17)
6
(0.24)
8
(0.31)
40
(1.57)
55.5
(2.19)
56
(2.20)
28
(1.10)
27
(1.06)
20
(0.79)
25
(0.98)
20
(0.79)
14
(0.55)
A3AH71
1/33
167.5
(6.59)
112.5
(4.43)
79.5
(3.13)
55
(2.17)
6
(0.24)
8
(0.31)
40
(1.57)
55.5
(2.19)
56
(2.20)
28
(1.10)
27
(1.06)
20
(0.79)
25
(0.98)
20
(0.79)
14
(0.55)
A5AH11
1/5
160
(6.30)
105
(4.13)
72.0
(2.83)
55
(2.17)
6
(0.24)
8
(0.31)
40
(1.57)
55.5
(2.19)
56
(2.20)
28
(1.10)
27
(1.06)
20
(0.79)
25
(0.98)
20
(0.79)
14
(0.55)
A5AH21
1/9
166
(6.54)
106
(4.17)
73.0
(2.87)
60
(2.36)
8
(0.31)
9
(0.35)
50
(1.97)
64.5
(2.54)
65
(2.56)
30
(1.18)
30
(1.18)
22
(0.87)
28
(1.10)
25
(0.98)
16
(0.63)
A5AHC1
1/21
183
(7.20)
123
(4.84)
90.0
(3.54)
60
(2.36)
8
(0.31)
9
(0.35)
40
(1.57)
64.5
(2.54)
65
(2.56)
30
(1.18)
30
(1.18)
22
(0.87)
28
(1.10)
25
(0.98)
16
(0.63)
A5AH71
1/33
183
(7.20)
123
(4.84)
90.0
(3.54)
60
(2.36)
8
(0.31)
9
(0.35)
40
(1.57)
64.5
(2.54)
65
(2.56)
30
(1.18)
30
(1.18)
22
(0.87)
28
(1.10)
25
(0.98)
16
(0.63)
01AH11
1/5
183.5
(7.22)
123.5
(4.86)
90.5
(3.56)
60
(2.36)
8
(0.31)
9
(0.35)
40
(1.57)
64.5
(2.54)
65
(2.56)
30
(1.18)
30
(1.18)
21
(0.83)
28
(1.10)
25
(0.98)
16
(0.63)
01AHB1
1/11
200.5
(7.89)
140.5
(5.53)
107.5
(4.23)
60
(2.36)
8
(0.31)
9
(0.35)
40
(1.57)
64.5
(2.54)
65
(2.56)
30
(1.18)
30
(1.18)
21
(0.83)
28
(1.10)
25
(0.98)
16
(0.63)
01AHC1
1/21
223.5
(8.80)
149.5
(5.89)
116.5
(4.59)
74
(2.91)
7.5
(0.30)
10
(0.39)
59
(2.32)
84
(3.31)
85
(3.35)
36
(1.42)
38
(1.50)
26
(1.02)
36
(1.42)
32
(1.26)
20
(0.79)
01AH71
1/33
223.5
(8.80)
149.5
(5.89)
116.5
(4.59)
74
(2.91)
7.5
(0.30)
10
(0.39)
59
(2.32)
84
(3.31)
85
(3.35)
36
(1.42)
38
(1.50)
26
(1.02)
36
(1.42)
32
(1.26)
20
(0.79)
Artisan Technology Group - Quality Instrumentation ... Guaranteed | (888) 88-SOURCE | www.artisantg.com

Table of Contents

Related product manuals