EasyManua.ls Logo

YASKAWA SGM H Series - Single-Phase 100 V: 200 W (02 BD, 02 BDA) Single-Phase 200 V: 400 W (04 AD, 04 ADA)

YASKAWA SGM H Series
615 pages
Print Icon
To Next Page IconTo Next Page
To Next Page IconTo Next Page
To Previous Page IconTo Previous Page
To Previous Page IconTo Previous Page
Loading...
4 SERVOPACK Specifications and Dimensional Drawings
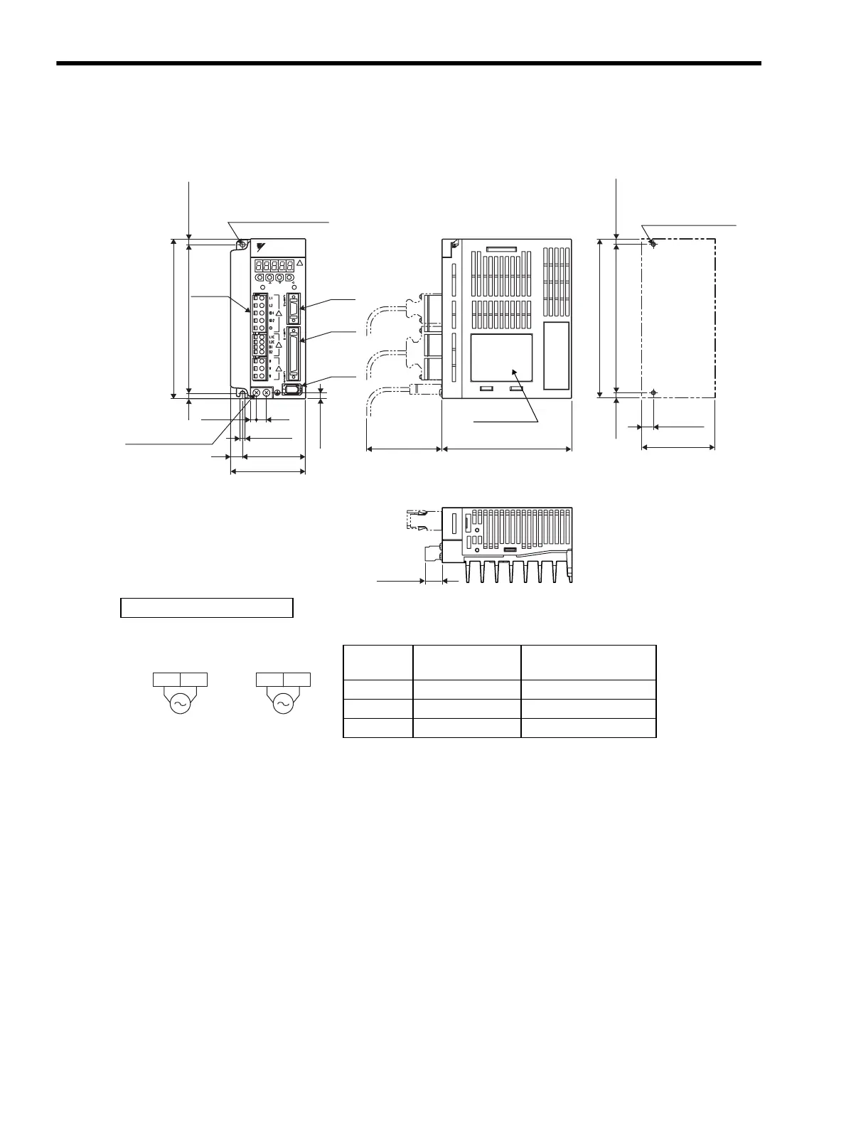
4.7.2 Single-phase 100 V: 200 W (02BD, 02BDA) Single-phase 200 V: 400 W (04AD, 04ADA)
4-18
4.7.2 Single-phase 100 V: 200 W (02BD, 02BDA)
Single-phase 200 V: 400 W (04AD, 04ADA)
External Terminal Connector
SERVOPACK Connector
Connector
Symbol
SERVOPACK
Connector Model
Manufacturer
CN1 10250-52A2JL Sumitomo 3M Co., Ltd.
CN2 53460-0611 Molex Japan Co., Ltd.
CN3 10214-52A2JL Sumitomo 3M Co., Ltd.
2×φ5 (φ0.20) holes
Ground terminal
2×M4 screws
Terminal
block
2×M4 screw holes
Mounting Hole Diagram
149.5±0.5 (5.89±0.02)
12 (0.47)
75 (2.95)
CN3
CN2
CN1
130 (5.12)
6 (0.24)
160 (6.30)
149.5 (5.89)
5.5 (0.22)
75 (2.95)*
17 (0.67)
5 *
(0.20)
75 (2.95)
12
(0.47)
63 (2.48) *
5 (0.20)
6
(0.24)
10 (0.39)
5.5 (0.22)
160 (6.30)
5
(0.20)*
YASKAWA
YASKAWA
SERVOPACK
SGDM-
(Mounting pitch)
MODE/SET
CHARGE POWER
DATA/
Nameplate
* Reference length
Units: mm (in)
Approx. mass: 1.1 kg (2.43 lb)
L1 L2
Main circuit
power supply
Control power
supply
Single-phase
100/200 VAC
50/60 Hz
L1C L2C
Single-phase
100/200 VAC
50/60 Hz
Artisan Technology Group - Quality Instrumentation ... Guaranteed | (888) 88-SOURCE | www.artisantg.com

Table of Contents

Related product manuals