EasyManua.ls Logo

YASKAWA SGM H Series - Servopacks

YASKAWA SGM H Series
615 pages
Print Icon
To Next Page IconTo Next Page
To Next Page IconTo Next Page
To Previous Page IconTo Previous Page
To Previous Page IconTo Previous Page
Loading...
1.2 Product Part Names
1-5
1
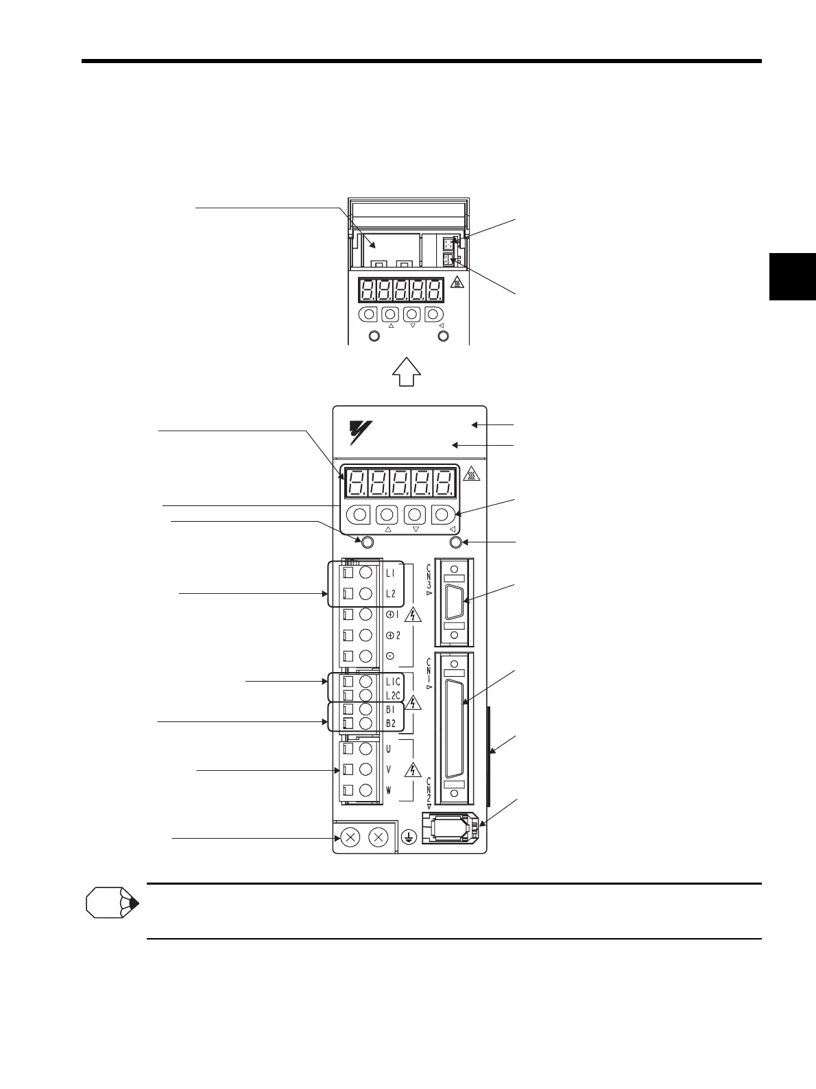
1.2.2 SERVOPACKs
(1) SGDM for 30 W to 5.0 kW
Connecting terminal of DC Reactor
For connecting a reactor, refer to 6.4.8 DC Reactor for Harmonic Suppression.
Refer to 2.1 SERVOPACK Model
Designations.
With the front cover open
SERVOPACK model
Battery holder
Used to house the backup battery
for an absolute encoder.
Refer to 5.8.8 Absolute Encoder Battery,
8.4.3 Handing Batteries, and 8.4.4 Battery
Replacement Procedure.
YASKAWA
YASKAWA
SERVOPACK
SGDM-
MODE/SET
CHARGE POWER
DATA/
MODE/SET DATA/
CHARGE POWER
Panel display
5-digit, 7-segment LED used to display
SERVOPACK status, alarm status, and other
values when parameters are input.
Refer to 7.1.2 Key Names and Functions.
Panel operator
Charge indicator
Lights when the main circuit power supply is
ON and stays lit as long as the main circuit power
supply capacitor remains charged. Therefore,
do not touch the SERVOPACK even after the power
supply is turned OFF if the indicator is lit.
Main circuit power
supply terminals
Used for main circuit power supply input.
Refer to 6.1 Wiring Main Circuit.
Used for control power supply input.
Refer to 6.1 Wiring Main Circuit.
Control power supply terminals
Used to connect external regenerative resistors.
Refer to 6.5 Connecting Regenerative Resistors.
Regenerative
resistor connecting terminals
Refer to 6.1 Wiring Main Circuit.
Ground terminal
Be sure to connect to protect against electrical shock.
Servomotor terminals
Connects to the servomotor power line.
Refer to 6.1 Wiring Main Circuit.
CN5 Analog monitor connector
Used to monitor motor speed, torque
reference, and other values through
a special cable.
Refer to 5.8.3 Cables for Analog Monitor or
9.5 Analog Monitor.
CN8 Battery connector
Used to connect to the backup battery
for an absolute encoder.
Refer to 5.8.8 Absolute Encoder Battery,
8.4.3 Handing Batteries, and 8.4.4 Battery
Replacement Procedure.
Front cover
Power ON indicator
Lights when the control power supply is ON.
Panel keys
Used to set parameters.
Refer to 7.1.2 Key Names and Functions.
Refer to 5.8.1 Cables for Connecting Personal
Computer and 5.8.2 Digital Operator.
CN3 Connector for personal computer monitoring
and digital operator
Used to communicate with a personal computer
or to connect a digital operator.
CN1 I/O signal connector
Used for reference input signals and
sequence I/O signals.
Refer to 6.3 Examples of I/O Signal Connections.
Nameplate (side view)
Indicates the SERVOPACK model and ratings.
Refer to 1.1.3 SERVOPACKs.
CN2 Encoder connector
Connects to the encoder in the servomotor.
Refer to 6.2 Wiring Encoders.
INFO
Artisan Technology Group - Quality Instrumentation ... Guaranteed | (888) 88-SOURCE | www.artisantg.com

Table of Contents

Related product manuals