EasyManua.ls Logo

YASKAWA SGM H Series - Single-Phase 100 V: 200 W (02 BD-R, 02 BDA-R); Single-Phase 200 V: 400 W (04 AD-R, 04 ADA-R)

YASKAWA SGM H Series
615 pages
Print Icon
To Next Page IconTo Next Page
To Next Page IconTo Next Page
To Previous Page IconTo Previous Page
To Previous Page IconTo Previous Page
Loading...
4 SERVOPACK Specifications and Dimensional Drawings
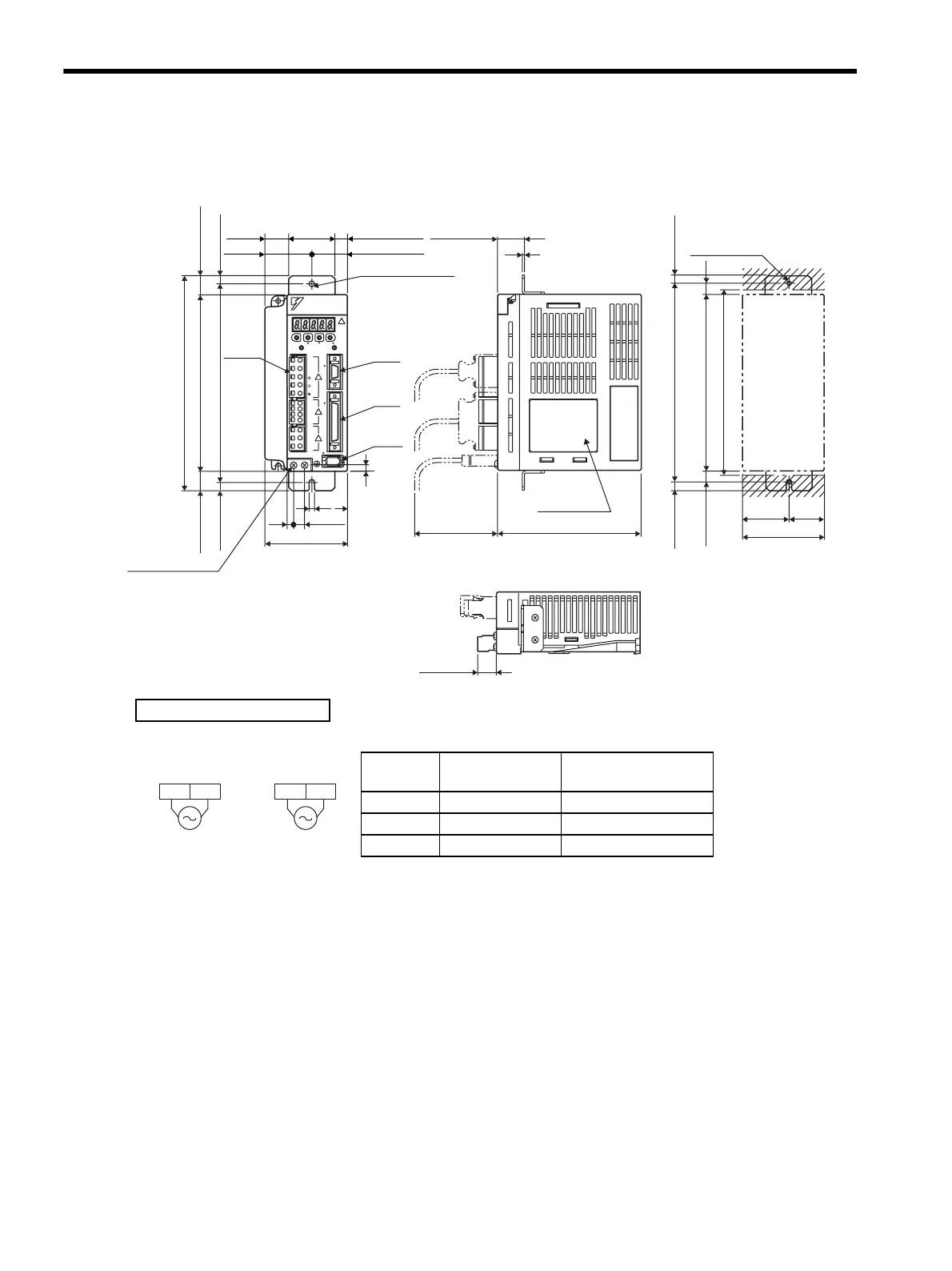
4.8.2 Single-phase 100 V: 200 W (02BD-R, 02BDA-R) Single-phase 200 V: 400 W (04AD-R, 04ADA-R)
4-26
4.8.2 Single-phase 100 V: 200 W (02BD-R, 02BDA-R)
Single-phase 200 V: 400 W (04AD-R, 04ADA-R)
CN3
CN2
CN1
YASKAWA
YASKAWA
SERVOPACK
SGDM-
75 (2.95)
6
(0.24)
180 (7.09)
160 (6.30) 17.5 (0.69)
7.5 (0.30)
7.5 (0.30)*
7.5 (0.30)
42.5
(1.67)
75 (2.95)
180±0.5 (7.09±0.02)
195 (7.68)
160 (6.30)
10 (0.39)*
10 (0.39)
6
(0.24)
5 (0.20)
7.5 (0.30)*
17.5 (0.69)
42 (1.65)
21.5
(0.85)
42.5
(1.67)
32.5 (1.28)*
φ5 (φ0.20) hole
Terminal
block
10
(0.39)
11.5 (0.45)*
Min.166 (6.54)
32.5*
(1.28)
CHANGE
MODE/SET
DATA/
L1
C
N
3
L2
L2C
B1
B2
U
V
W
L1C
POWER
+ 1
+ 2
C
N
1
C
N
2
130 (5.12)
Nameplate
2
(0.08)
17 (0.67)
24.5 (0.96)
75* (2.95)
Ground terminal
2×M4 screws
Mounting Hole Diagram
2×M4 screw
holes
(Mounting pitch)
* Reference length
Units: mm (in)
Approx. mass: 1.3 kg (2.87 lb)
External Terminal Connector
SERVOPACK Connector
Connector
Symbol
SERVOPACK
Connector Model
Manufacturer
CN1 10250-52A2JL Sumitomo 3M Co., Ltd.
CN2 53460-0611 Molex Japan Co., Ltd.
CN3 10214-52A2JL Sumitomo 3M Co., Ltd.
L1 L2
Main circuit
power supply
Control power
supply
Single-phase
100/200 VAC
50/60 Hz
L1C L2C
Single-phase
100/200 VAC
50/60 Hz
Artisan Technology Group - Quality Instrumentation ... Guaranteed | (888) 88-SOURCE | www.artisantg.com

Table of Contents

Related product manuals