EasyManua.ls Logo

YASKAWA SGM H Series - Connecting to SGMCS Servomotor

YASKAWA SGM H Series
615 pages
Print Icon
To Next Page IconTo Next Page
To Next Page IconTo Next Page
To Previous Page IconTo Previous Page
To Previous Page IconTo Previous Page
Loading...
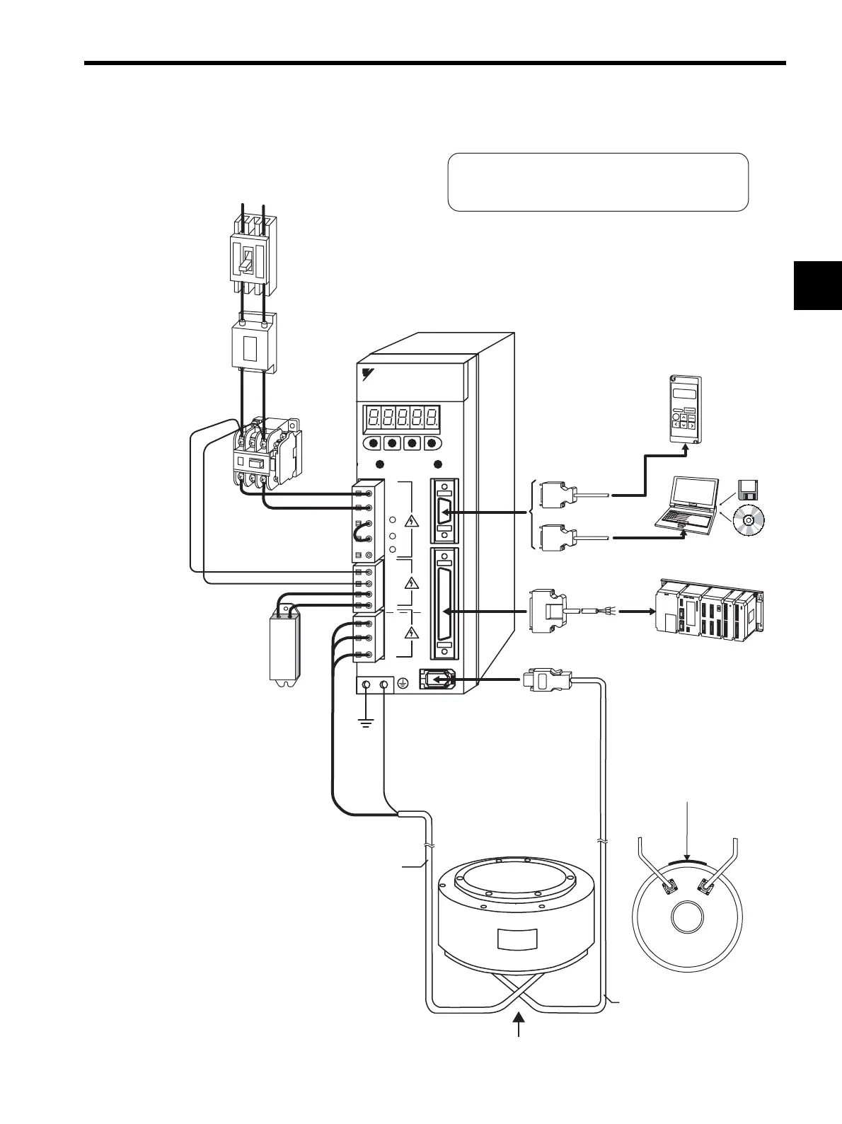
1.3 Examples of Servo System Configurations
1-9
1
1.3.3 Connecting to SGMCS Servomotor
A
View A
Servomotor
main circuit cable
Encoder
cable
SGDM-ADA
SERVOPACK
SGMCS Servomotor
R T
Nameplate
(Refer to 5.7.)
(Refer to 5.8.1.)
C
N
3
C
N
1
L1C
L2C
B1
B2
U
V
W
L1
L2
+ 1
MODE/SET
DATA /
CHARGE POWER
C
N
SGDM-
SERVOPACK
200V
YASKAWA
+ 2
-
Noise filter
Molded-case
circuit breaker
(MCCB)
Protects the power supply
line by shutting the
circuit OFF when
overcurrent is
detected.
(Refer to 5.8.9.)
Used to eliminate
external noise from the
power line.
(Refer to 5.8.10.)
Magnetic
contactor
Turns the
servo ON
and OFF.
Install a surge
suppressor.
(Refer to
5.8.11.)
Regenerative
resistor
Connect an external
regenerative resistor
to terminals B1 and B2
if the regenerative
capacity is insufficient.
(Refer to 5.8.6.)
Servomotor
main circuit cable
(Refer to 5.1, 5.2.)
Encoder cable
(Refer to 5.4, 5.5.)
For connecting a DC reactor, refer to 6.4.8 DC Reactor for
Harmonic Suppression.
Note:
Connection cable
for personal computer
Connection cable
for digital operator
Personal computer
(Refer to 5.8.2.)
Digital
operator
(Refer to 5.8.2.)
Host controller
I/O signal cable
Power supply
Single-phase or
Three-phase
100/200VAC
Artisan Technology Group - Quality Instrumentation ... Guaranteed | (888) 88-SOURCE | www.artisantg.com

Table of Contents

Related product manuals