EasyManua.ls Logo

YASKAWA SGM H Series - Mechanical Tolerance

YASKAWA SGM H Series
615 pages
Print Icon
To Next Page IconTo Next Page
To Next Page IconTo Next Page
To Previous Page IconTo Previous Page
To Previous Page IconTo Previous Page
Loading...
3.9 Mechanical Specifications of SGMCS Servomotors
3-49
3
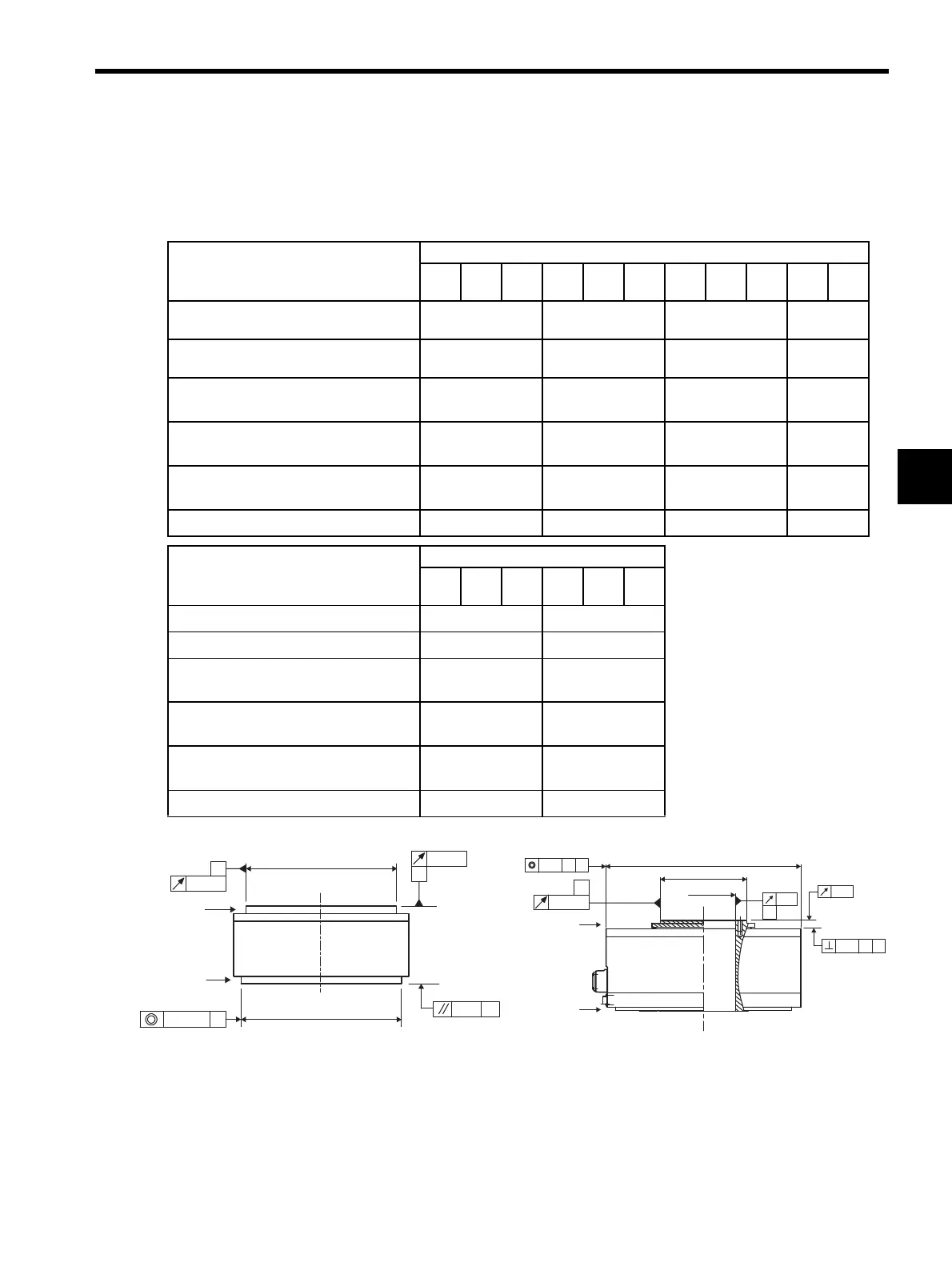
3.9.2 Mechanical Tolerance
The following table shows tolerances for the servomotors output shaft and installation area. See the dimensional
drawing of the individual servomotor for more details on tolerances.
Mechanical Tolerance
Tolerance T. I. R.
(Total Indicator Reading)
Units: mm (in)
Servomotor Model SGMCS-
02B 05B 07B 04C 10C 14C 08D 17D 25D 16E 35E
cRun-out of the surface of the shaft
0.02 (0.00079) 0.02 (0.00079) 0.02 (0.00079)
0.02
(0.00079)
dRun-out at the end of the shaft
0.04 (0.0016) 0.04 (0.0016) 0.04 (0.0016)
0.04
(0.0016)
ePerpendicularity between the
flange face and output shaft
0.07 (0.0028) 0.07 (0.0028) 0.08 (0.0031)
0.08
(0.0031)
fCoaxiality of output axis and
mounting socket joint
0.07 (0.0028) 0.07 (0.0028) 0.08 (0.0031)
0.08
(0.0031)
gRight angle between flange face
and output shaft
−−−
hReference figure
Fig.1 Fig.1 Fig.1 Fig.1
Tolerance T. I. R.
(Total Indicator Reading)
Units: mm (in)
Servomotor Model SGMCS-
45M 80M 1AM 80N 1EN 2ZN
cRun-out of the surface of the shaft
0.02 (0.00079) 0.02 (0.00079)
dRun-out at the end of the shaft
0.04 (0.0016) 0.04 (0.0016)
ePerpendicularity between the
flange face and output shaft
−−
fCoaxiality of output axis and
mounting socket joint
0.08 (0.0031) 0.08 (0.0031)
gRight angle between flange face
and output shaft
0.08 (0.0031) 0.08 (0.0031)
hReference figure
Fig.2 Fig.2
Fig.1 Fig.2
B
A
A
B
Drive end
φ
φ
φ
Opposite
drive end
φ
φ
φ
B
AB
AB
A
Drive end
Opposite
drive end
Artisan Technology Group - Quality Instrumentation ... Guaranteed | (888) 88-SOURCE | www.artisantg.com

Table of Contents

Related product manuals