EasyManua.ls Logo

YASKAWA SGM H Series - Three-Phase 200 V: 11.0 Kw;15.0 Kw (1 AADA to 1 EADA)

YASKAWA SGM H Series
615 pages
Print Icon
To Next Page IconTo Next Page
To Next Page IconTo Next Page
To Previous Page IconTo Previous Page
To Previous Page IconTo Previous Page
Loading...
4 SERVOPACK Specifications and Dimensional Drawings
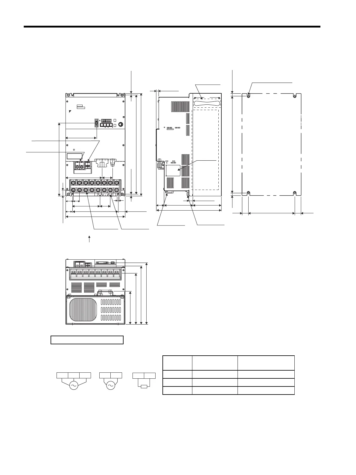
4.7.8 Three-phase 200 V: 11.0 kW/15.0 kW (1AADA to 1EADA)
4-24
4.7.8 Three-phase 200 V: 11.0 kW/15.0 kW (1AADA to 1EADA)
CN2CN1
SERVOPACK 200V
SGDM-
1AADA
Ver.
YASKAWA
MODE/SET
DATA/
CN3
POWER
CN8
BATTERY
CHARGE
B1 B2
L1C L2C
UVW-L1 L2 L3 +1
46 (1.81)
34
(1.34)
27 (1.06)
7.5 (0.30)
A
CN5
View A
320 (12.60)
26.5 (1.04)
140 (5.51)
160 (6.30)
Control circuit
terminal M4
Regenerative
resistor
terminal M6
151 (5.94)
45
(1.77)
7
(0.28)
30
(1.18)
200 (7.87)
260 (10.24)
30 (1.18)*
Main circuit
terminal M8
Ground
terminal M8
7.5* (0.30)
435 (17.13)
450 (17.72)
34
(1.34)
17 (0.67)
126 (4.96)
125 (4.92)
285 (11.22)
Main circuit
terminal M8
Ground
terminal M8
Nameplate
10 (0.39)
435 (17.13)
7.5 (0.30)
Cooling fan
Mounting Hole Diagram
4×M6 screw holes
7.5 (0.30)*
200 (7.87)
30
(1.18)
30
(1.18)*
145 (5.71)
224 (8.82)
257 (10.12)
271 (10.67)
* Reference length
Units: mm (in)
Approx. mass: 26 kg (57.32 lb)
External Terminal Connector
SERVOPACK Connector
Connector
Symbol
SERVOPACK
Connector Model
Manufacturer
CN1 10250-52A2JL Sumitomo 3M Co., Ltd.
CN2 53460-0611 Molex Japan Co., Ltd.
CN3 10214-52A2JL Sumitomo 3M Co., Ltd.
L1C L2CL2 L3L1
External
regenerative
resistor
B1 B2
200 VAC
50/60 Hz
Three-phase
200 VAC
50/60 Hz
Single-phase
Main circuit
power supply
Control power
supply
Artisan Technology Group - Quality Instrumentation ... Guaranteed | (888) 88-SOURCE | www.artisantg.com

Table of Contents

Related product manuals