EasyManua.ls Logo

YASKAWA SGM H Series - Three-Phase 200 V: 2.0 Kw;3.0 Kw (20 AD-R to 30 AD-R, 20 ADA-R to 30 ADA-R)

YASKAWA SGM H Series
615 pages
Print Icon
To Next Page IconTo Next Page
To Next Page IconTo Next Page
To Previous Page IconTo Previous Page
To Previous Page IconTo Previous Page
Loading...
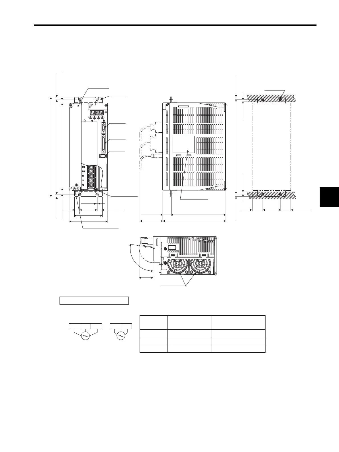
4.8 Dimensional Drawings of Rack-mounted SERVOPACK Model
4-29
4
4.8.5 Three-phase 200 V: 2.0 kW/3.0 kW
(20AD-R to 30AD-R, 20ADA-R to 30ADA-R)
Cooling fan
Y
Y
CN3
CN1
CN2
(100°)
Y
YASKAWA
YASKAWA
SERVOPACK
SGDM-
Nameplate
180 (7.09)
Heat sink
250 (9.84)
270 (10.63)
285 (11.22)
80 (3.15)
50 (1.97)
6 (0.24)
15 (0.59)*
15*
0.59
Flange
24.5 (0.96)
155.5 (6.12)
6 (0.24)
6 (.024)
7.5 (0.30)*
17.5 (0.69)*
17.5 (0.69)*
7.5 (0.30)*
110 (4.33)
75 (2.95)*
40
(1.57)*
30
(1.18)*
30 (1.18)*
270±0.5 (10.63±0.02)
50±0.5
(1.97±0.02)
7.5 (0.30)*
7.5 (0.30)*
14-pin terminal
M4 mounting screw
CHANGE
MODE/SET
DATA/
POWER
Mounting Hole Diagram
4×M5 tap
(Mounting pitch)
(Mounting pitch)
Ground terminal
2×M4 screws
* Reference length
Units: mm (in)
Approx. mass: 4.0 kg (8.82 lb)
External Terminal Connector
SERVOPACK Connector
Connector
Symbol
SERVOPACK
Connector Model
Manufacturer
CN1 10250-52A2JL Sumitomo 3M Co., Ltd.
CN2 53460-0611 Molex Japan Co., Ltd.
CN3 10214-52A2JL Sumitomo 3M Co., Ltd.
L1C L2CL2 L3L1
200 VAC
50/60 Hz
Three-phase
200 VAC
50/60 Hz
Single-phase
Main circuit
power supply
Control power
supply
Artisan Technology Group - Quality Instrumentation ... Guaranteed | (888) 88-SOURCE | www.artisantg.com

Table of Contents

Related product manuals