EasyManua.ls Logo

YASKAWA SGM H Series - SGMAH Servomotors

YASKAWA SGM H Series
615 pages
Print Icon
To Next Page IconTo Next Page
To Next Page IconTo Next Page
To Previous Page IconTo Previous Page
To Previous Page IconTo Previous Page
Loading...
3 Specifications and Dimensional Drawings
3.12.2 SGMAH Servomotors (3000 min
-1
) Without Gears and With Brakes
3-58
• Dimensional Tolerances
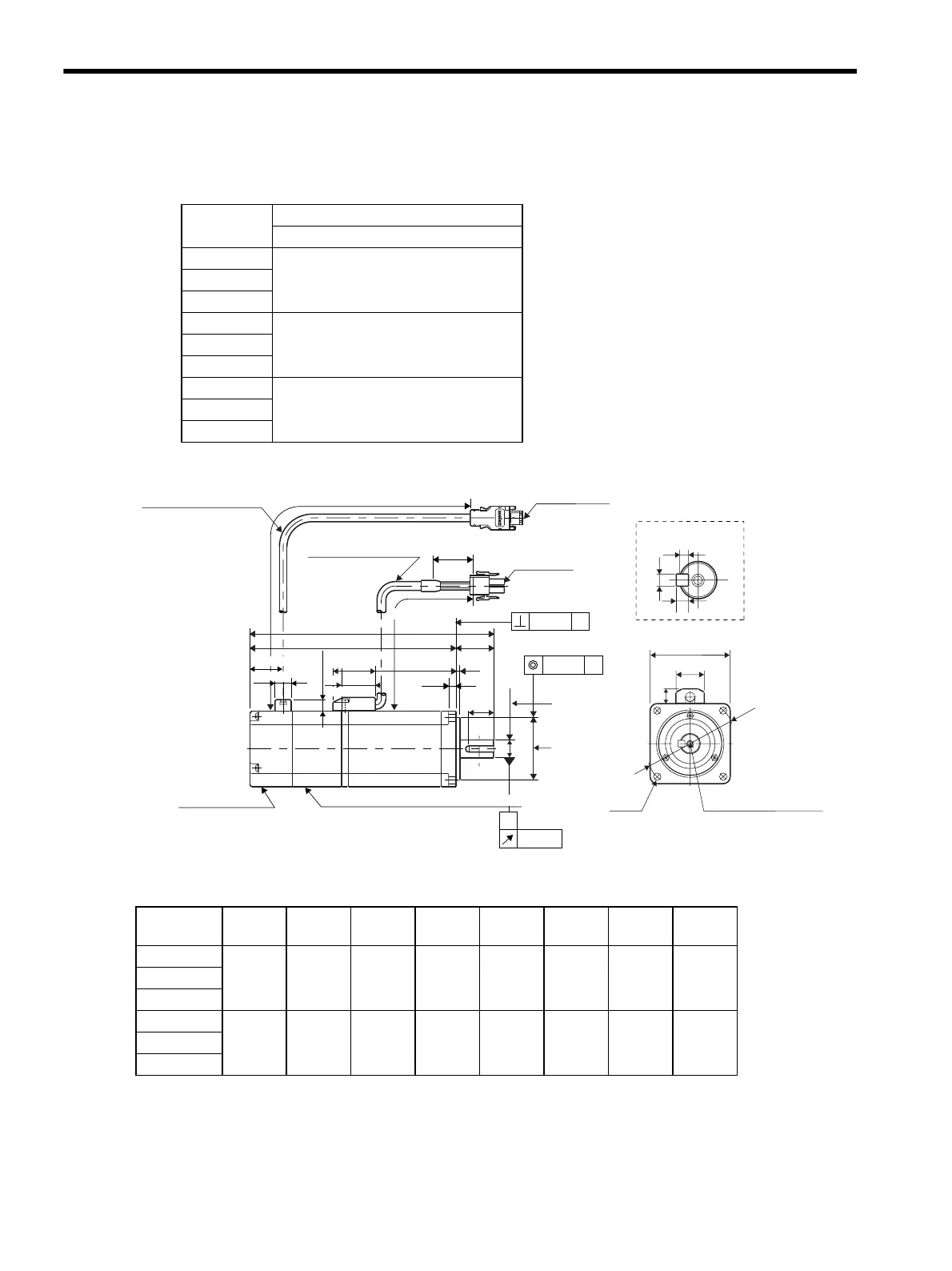
(2) 200 W, 400 W
Units: mm (in)
Model
SGMAH-
Shaft-end Dimensions mm (in)
S
A3A2
A3A4
A3A6
A5A2
A5A4
A5A6
01A2
01A4
01A6
6
0
0.008
0.236
0
0.0003


6
0
0.008
0.235
0
0.0003


8
0
0.009
0.315
0
0.0004


Units: mm (in)
Model
SGMAH-
LLLLMLRLGLCLALZ
02A2
166
(6.54)
136
(5.35)
62.5
(2.46)
30
(1.18)
6
(0.24)
60
(2.36)
70
(2.76)
5.5
(0.22)
02A4
02A6
04AA2
194
(7.64)
164
(6.46)
90.5
(3.56)
30
(1.18)
6
(0.24)
60
(2.36)
70
(2.76)
5.5
(0.22)
04AA4
04AA6
27
(1.06)
300 (11.81) ±30 (±1.18)
(35) (1.38)
Serial encoder
Power supply: 90 VDC or 24 VDC
φ50h7
QK
φ14h6
A
0.02
(0.0008)
Aφ0.04
(
φ0.0016)
A
(0.0016)
0.04
L
LL LR
LM
3
(0.12)
LG
9.5 (0.37)
26.5 (1.04)
φLA
Tap × Depth
(See the following table.)
4-φLZ
21.5 (0.85)
LC
Shaft End
T
U
W
11 (0.43)
Encoder cable φ6 (φ0.24)
UL20276
Motor cable φ7 (φ0.28)
Motor plug
Encoder plug
Y
Y
13 (0.51)
20
(0.79)
300 (11.81)±30 (1.18)
Holding brake (de-energizing operation)
φ50
0
-0.025
φ14
φ0.5512
( )
0
-0.011
0
-0.00043
φ1.9685
( )
0
-0.00098
Artisan Technology Group - Quality Instrumentation ... Guaranteed | (888) 88-SOURCE | www.artisantg.com

Table of Contents

Related product manuals