EasyManua.ls Logo

YASKAWA SGM H Series

YASKAWA SGM H Series
615 pages
To Next Page IconTo Next Page
To Next Page IconTo Next Page
To Previous Page IconTo Previous Page
To Previous Page IconTo Previous Page
Loading...
5.8 Peripheral Devices
5-73
5
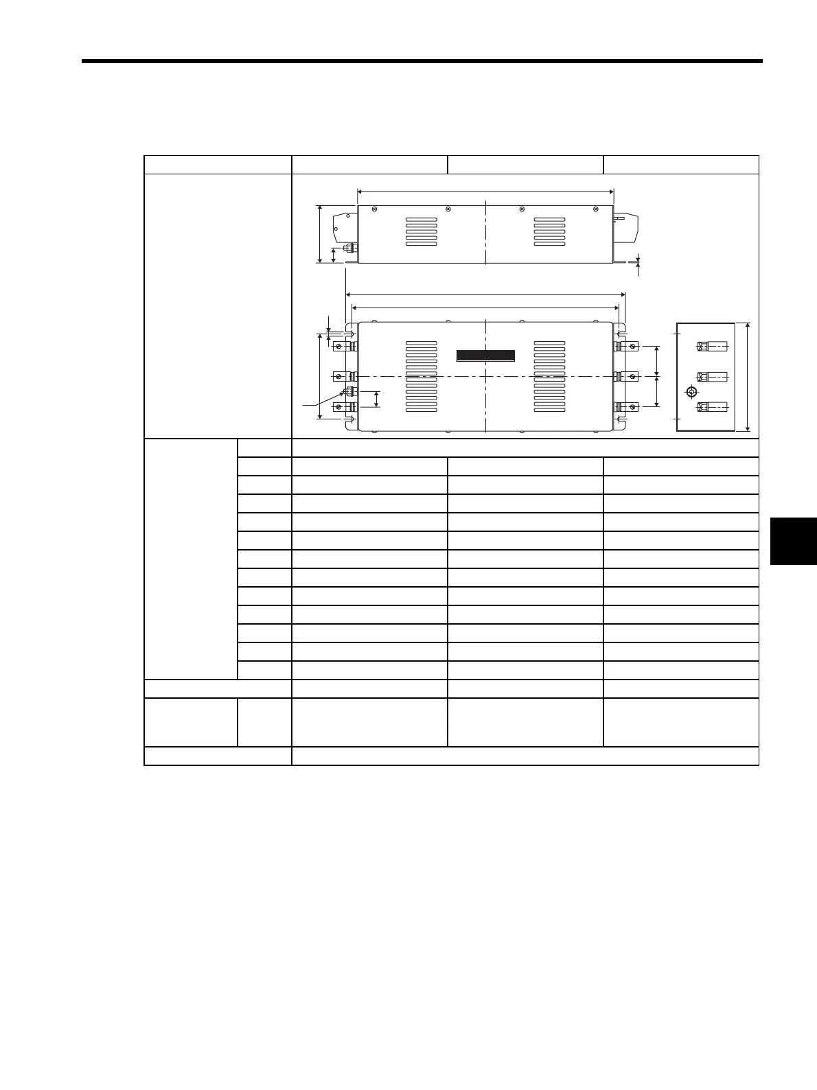
(c) FS Series
Model FS5559-35-33 FS5559-80-34 FS5559-150-35
Dimensional Drawings
External
Dimensions
in mm (in)
Symbol Dimensions
A
330 (12.99) 420 (16.54) 440 (17.32)
B
85 (3.35) 95 (3.74) 150 (5.91)
C
370 (14.57) 460 (18.11) 480 (18.90)
D
348 (13.70) 438 (17.24) 458 (18.03)
E
110 (4.33) 180 (7.09) 200 (7.87)
F
80 (3.15) 140 (5.51) 170 (6.69)
G
30 (1.18) 50 (1.97) 50 (1.97)
H
25 (0.98) 25 (0.98) 35 (1.38)
I
1.5 (0.06) 1.5 (0.06) 1.5 (0.06)
J
6.5 (0.26) 6.5 (0.26) 6.5 (0.26)
K
25 (0.98) 25 (0.98) 25 (0.98)
L
M6 M8 M10
Specifications
480 V, 35 A 480 V, 80 A 480 V, 150 A
Applicable
SERVOPACK
SGDM-
Three-
phase
200 V
−−
1AADA
1EADA
Manufacturer
Schaffner Electronic
H
B
J
F
L
K
GG
I
E
C
A
D
SCHAFFNER
Artisan Technology Group - Quality Instrumentation ... Guaranteed | (888) 88-SOURCE | www.artisantg.com

Table of Contents

Related product manuals