EasyManua.ls Logo

Amada LW500A - Section VII. Dimensions and Labels

Amada LW500A
184 pages
Print Icon
To Next Page IconTo Next Page
To Next Page IconTo Next Page
To Previous Page IconTo Previous Page
To Previous Page IconTo Previous Page
Loading...
APPENDIX A. TECHNICAL SPECIFICATIONS
LW500A/LW600A PULSED Nd:YAG LASER
A-10 990-539
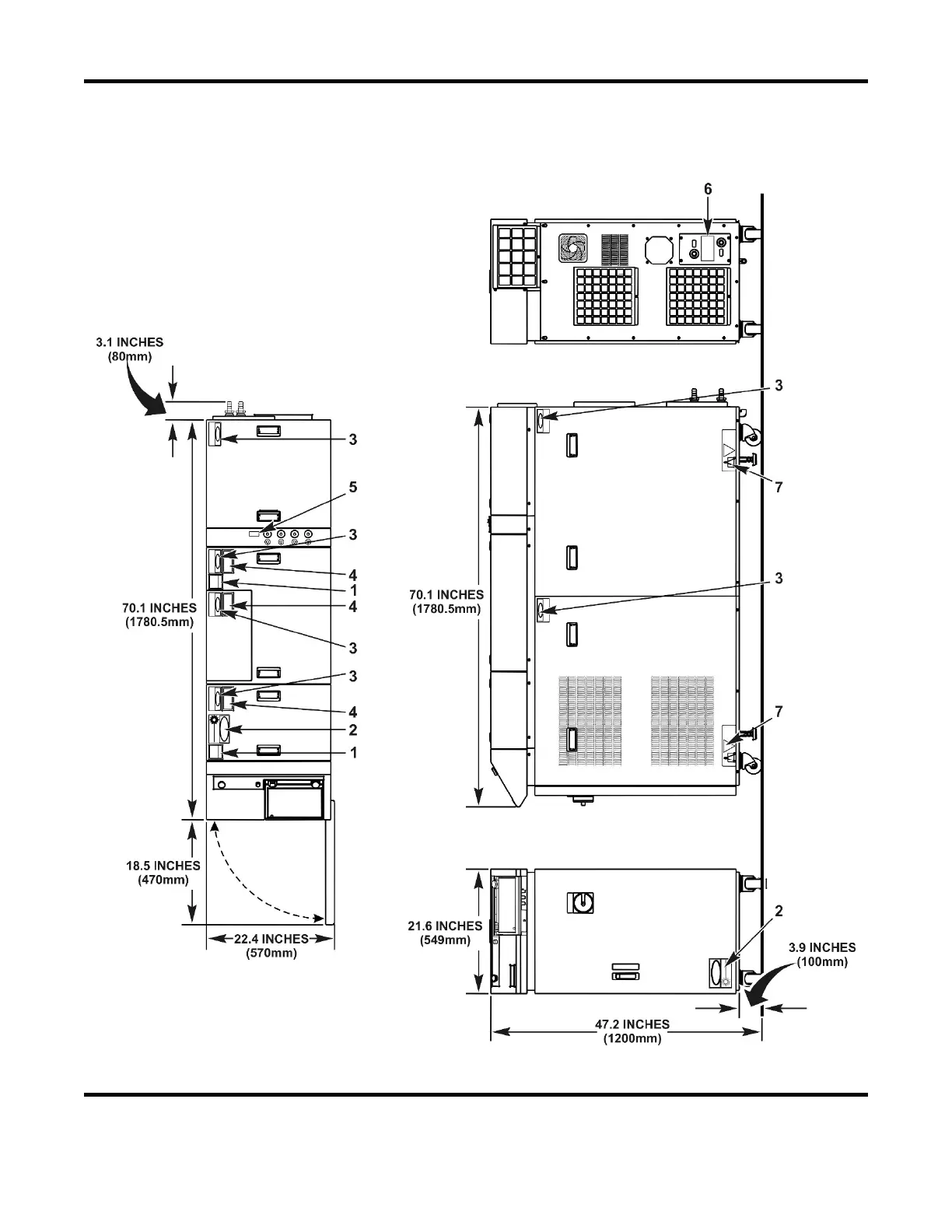
Section VII. Dimensions and Labels
Outline Dimensions and Warning Label Locations – LW500A/600A

Table of Contents