EasyManua.ls Logo

Ametek Sorensen XG - Utput C over

Ametek Sorensen XG
381 pages
To Next Page IconTo Next Page
To Next Page IconTo Next Page
To Previous Page IconTo Previous Page
To Previous Page IconTo Previous Page
Loading...
Specifications
C-16 M370430-01 Rev B
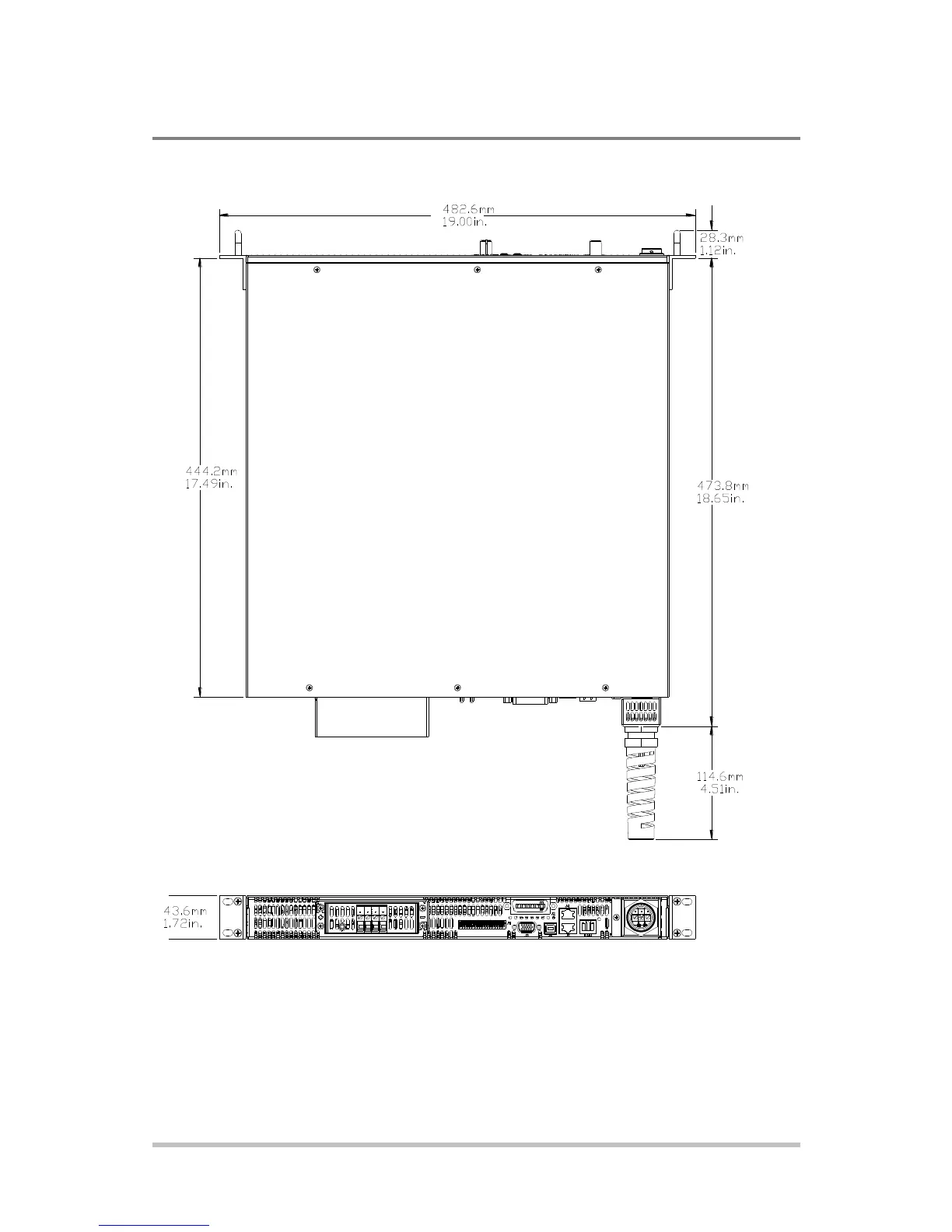
Figure C-6 XG/XTR in Full Rack Mechanical Dimensions: 60 V to 600 V Models w/DC Output
Cover

Table of Contents

Related product manuals