EasyManua.ls Logo

Brother S-710A - 10. Control Box Identification

Brother S-710A
153 pages
Print Icon
To Next Page IconTo Next Page
To Next Page IconTo Next Page
To Previous Page IconTo Previous Page
To Previous Page IconTo Previous Page
Loading...
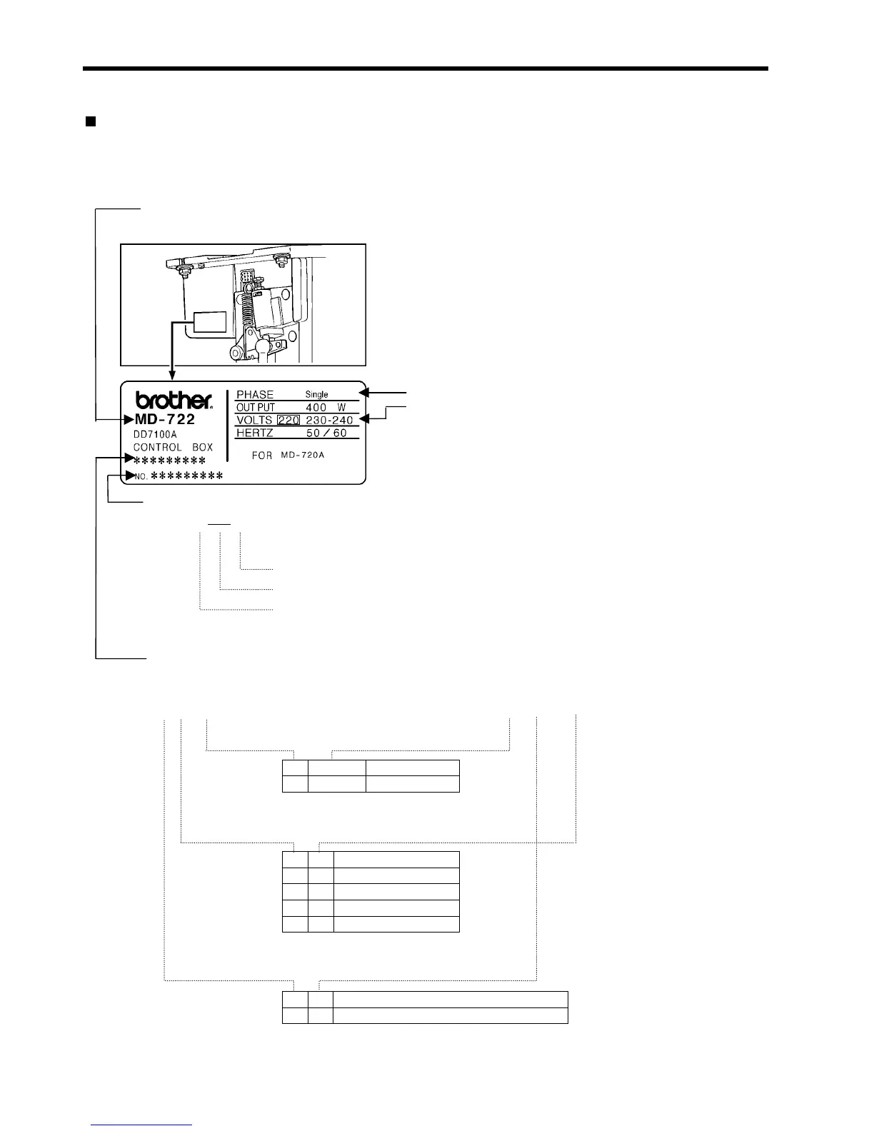
10. CONTROL BOX AND MOTOR RATING PLATE
SL-710A
77
10. CONTROL BOX AND MOTOR RATING PLATE
Control box
• Check the phase, voltage and type for the control box.
• Some specifications are identical for both single- and three-phase.
Model
MD-721:DD7100/Single-phase MD-722: DD7100A/Single-phase MD-7220:SL-710A/Single-phase
MD-731:DD7100/Three-phase MD-732: DD7100A/Three-phase MD-7320:SL-710A/Three-phase
Phase
Voltage (number in brackets indicates factory default setting)
Serial No.
NO. K01 A1110 1
Design revision symbol (A, B, C...)
Year of manufacture (last two digits of year)
Month of manufacture (A - M)
Type
DD7100A,DD7100 SL-710A
*[ ] [ ] * [ ] * [ ]*- [ ]***- [ ]*
Compliance
E 4 or 5 CE compliant
N Others None
Speed (limit speed setting)
3 7 3,000 rpm
4 8 3,500 rpm
5 9 4,000 rpm
6 A 4,500 rpm
7 B 5,000 (4,700) rpm
Treadle unit
G 4 No modulation forward & back first step
H 6 Modulation of forward & back first step
1830M

Table of Contents

Related product manuals