EasyManua.ls Logo

BUSKRO BK730-2 - Figure A-49: Cable, Rear Panel, Upstream to BCB (9104143 A; Table A-47: Cable, Rear Panel, Upstream to BCB (9104143 A

BUSKRO BK730-2
157 pages
Print Icon
To Next Page IconTo Next Page
To Next Page IconTo Next Page
To Previous Page IconTo Previous Page
To Previous Page IconTo Previous Page
Loading...
Appendix A Assembly Drawings Page A-58
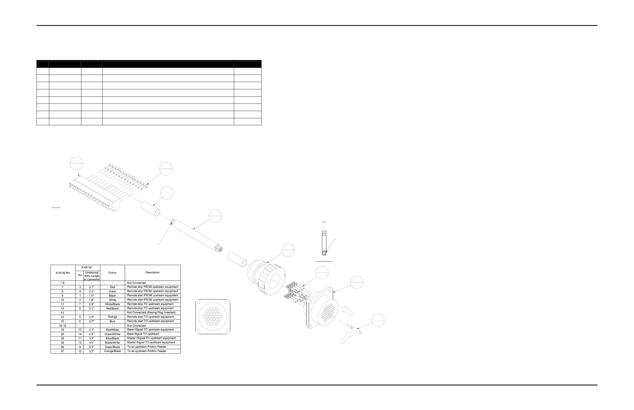
Table A-47: Cable, Rear Panel, Upstream to BCB (9104143A)
Item Part Number Quantity Description Reference
1 606016 1 Cable, #22-15, Shielded, 64" Sleeved Length, 71" Total
2 609003 2 Shrink Wrap, 3/8" I.D., 1" Long
3 614108 14 Contact, Female, 24-20 AWG, Yellow
4 614113 1 Cable Clamp
5 614135 1 Receptacle, Female, 23-37
6 9100197 1 Connector, Female, 14-Pin, BLA14
7 9101647 1 Keying Plug, Series 1
8 9103468 14 Ferrule, #22 AWG, Torquoise
Figure A-49: Cable, Rear Panel, Upstream to BCB (9104143A)
2
2
1
1
4
1
3
14
5
1
7
1
8
14
6
1
VIEW A
VIEW B
VIEW A
14
5
9
15 10
22 16
28 23
33
29
37
34
VIEW B
CUT 1/8" OFF END
OF KEYING PIN (9101647)
AND INSTALL IN PIN 13
OF 614135
1
14
Refer to table for unsleeved
length of each wire
NOTE:
Attach connector (p/n 9100197) after
routing cable in base cabinet.
Buskro Ltd. BK730-2 Tabber

Table of Contents