EasyManua.ls Logo

BUSKRO BK730-2 - Tabber;Labeler Base and Head Dimensions

BUSKRO BK730-2
157 pages
Print Icon
To Next Page IconTo Next Page
To Next Page IconTo Next Page
To Previous Page IconTo Previous Page
To Previous Page IconTo Previous Page
Loading...
Chapter 1 General Information Page 1-7
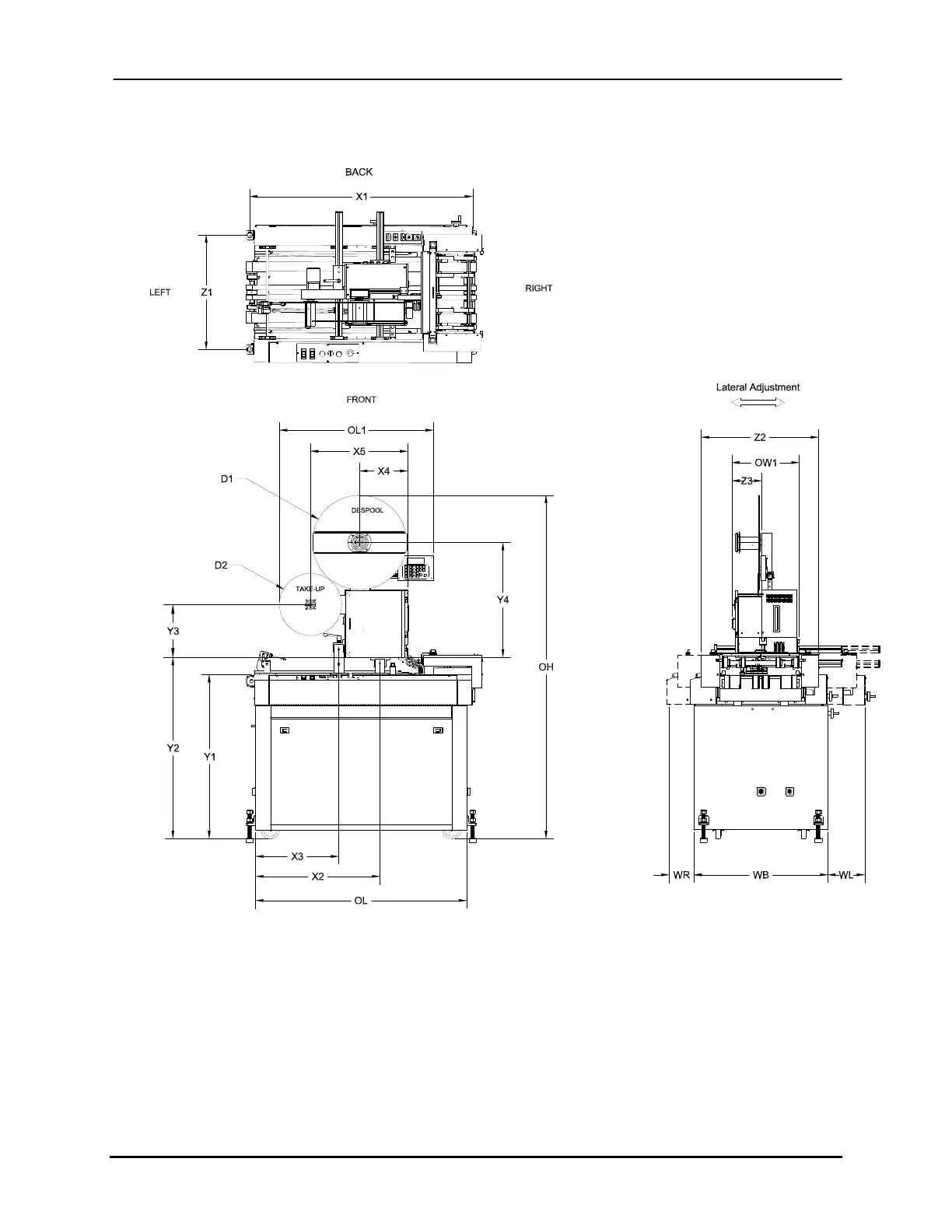
1.5 Tabber/Labeler Base and Head Dimensions
Figure 1-1: Tabber/Labeler Base and Head dimensions.
Buskro Ltd. BK730-2 Tabber

Table of Contents