EasyManua.ls Logo

BUSKRO BK730-2 - Page 149

BUSKRO BK730-2
157 pages
Print Icon
To Next Page IconTo Next Page
To Next Page IconTo Next Page
To Previous Page IconTo Previous Page
To Previous Page IconTo Previous Page
Loading...
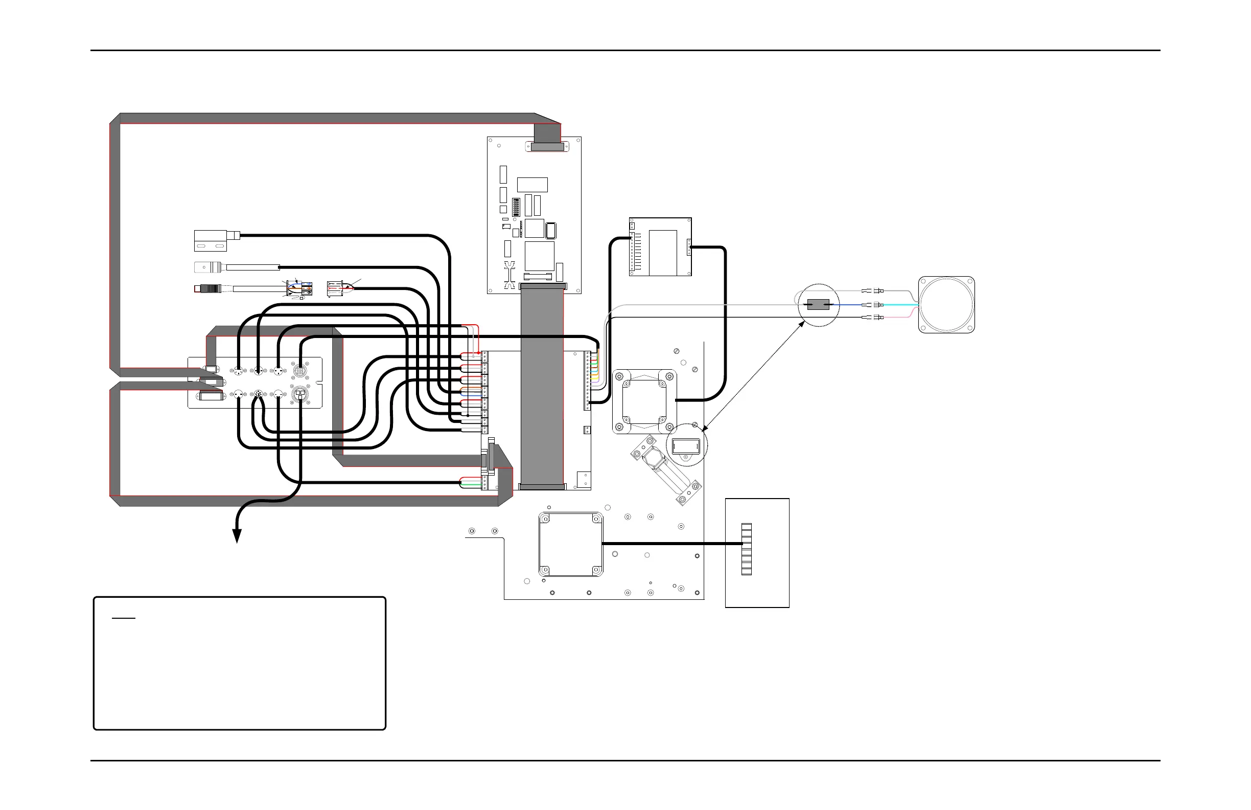
Appendix B Electrical Drawings Page B-8
Figure B-8: BK731-2 Tabber Head Wiring - Page 1 of 6
+12
PHO1
GND
+12
PHO2
GND
+12
TAB
GND
+12
LOOP
GND
+12
TAKEUP
GND
INHIBIT
COVER
GND
GND
GND
+12
ENC+
ENC-
GND
NONC C
+12V
UWSTEP
+5V
TABSTEP
+5V
TAKEUP
TAKEUP
+12V
GND
LINE
NEUTRAL
T31
T26
2-PHASE DRIVER
DIR.
A.W.OFF
FULL/HALF
TIMING
C.D.INH
PULSE
GND
+24V
DC
POWER
"OPEN
COVER"
Sensor
"BIN"
Sensor
"TAKE-UP"
Sensor
Tabber
Connector
Plate
9101134A
(Rear View)
TAKE-UP
Motor
UNWIND
Motor
TAB
Motor
JAM
INHIBIT
TAB
JAM
PHOTO F/B ENCODER
PRODUCT
POWER
I/O
21
3
CONTROLLER I/
O
KEYPAD
Cable #9
Cable #11
Cable #10
COMM
Tabber
CPU
Board
9101275
Tabber Interface Board
9101133 (Page 4)
5-Phase Driver Unit
9101123 (Page 5)
2-Phase Driver Unit
9103548 (Page 6)
P
h
a
s
e
S
h
i
f
t
C
a
p
a
c
i
t
o
r
To EMI Filter.
See Page 2 for details on
power wiring.
Note:
1. For details on power wiring, see Page 2.
2. For details on Tabber Connection Plate wiring, see Page 3.
3, For details on Tabber Interface Board wiring, see Page 4.
4. For details on 5-Phase Driver Unit wiring, see Page 5.
5. For details on 2-Phase Driver Unit wiring, see Page 6.
Cable #5
Cable #13
Cable #12
Cable #7
Cable #8
Cable
#3A
Cable #3B
Cable #4
Cable #2
Cable #1
Cable #6
Buskro # 9101085
BK
WH
BK
WH
RD
BU
BN
BK
PK
BU
GY
BU
WH
Buskro # 630004A
Buskro Ltd. BK730-2 Tabber

Table of Contents