EasyManua.ls Logo

Circutor CVM-E3-MINI - CVM-E3-MINI-FLEX-Wieth

Circutor CVM-E3-MINI
124 pages
Print Icon
To Next Page IconTo Next Page
To Next Page IconTo Next Page
To Previous Page IconTo Previous Page
To Previous Page IconTo Previous Page
Loading...
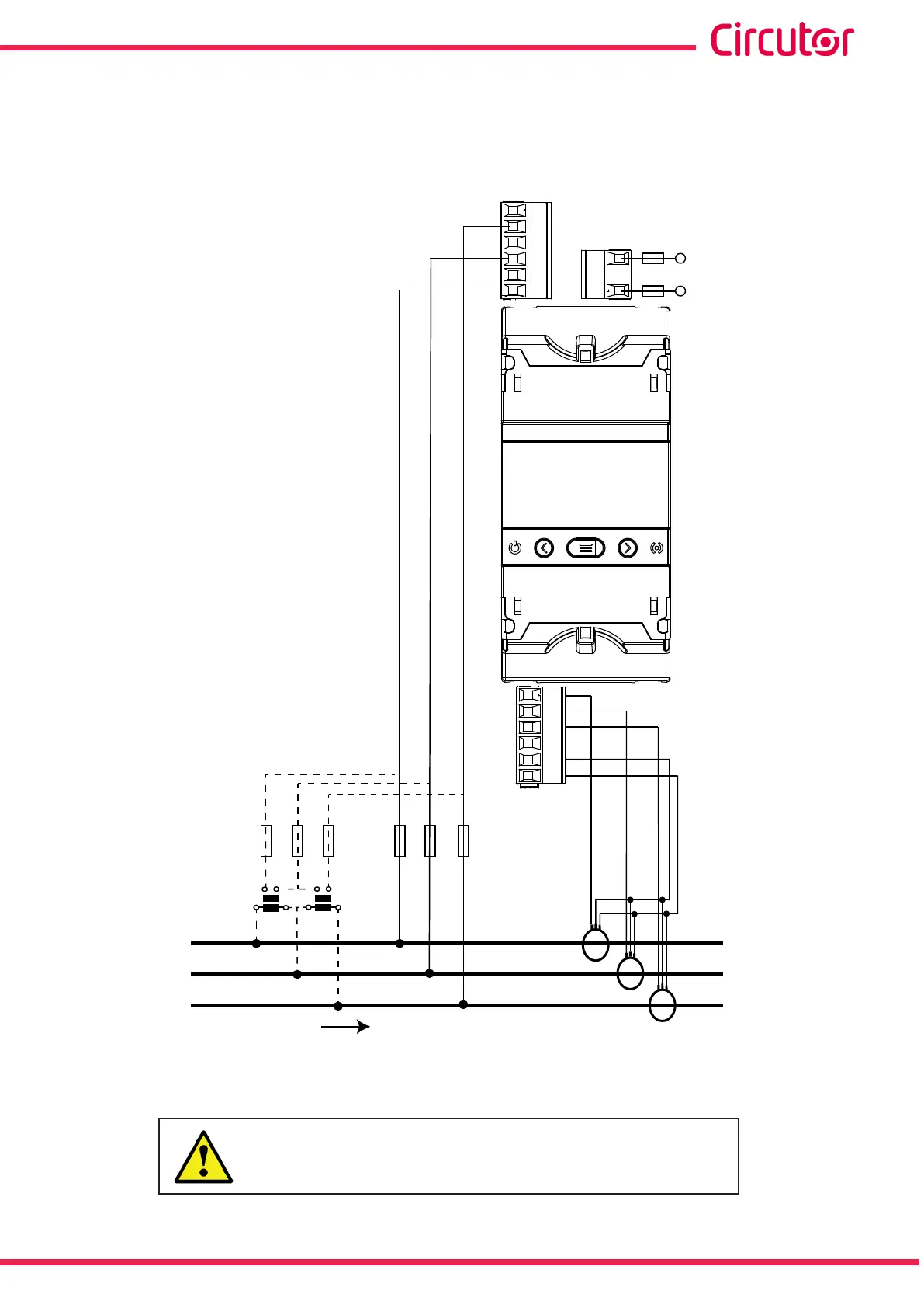
3.6.6.- MEASURING THREEPHASE NETWORKS WITH A 3WIRE CONNECTION: CVME3MINIFLEX
AND CVME3MINIFLEXWiEth
Measurement system: 3-3Ph
VL1 VL2
VL3
L1
L2
L3
V
L3
L2
V
L1
V
VL1 VL2 VL3
a
b
A
B
a
b
A B
CARGA / LOAD
12
11
10
Alimentación Auxiliar
Power Supply
L1
L2
L3
SHLD
C
1
2
3
4
5
6
L1
C
SHLD
L2 L3
Figure 11: Three-Phase measuring with a 3-wire connection: CVM-E3-MINI-FLEX and CVM-E3-MINI-FLEX-WiEth.
It is mandatory connect the SHLD terminal of the probe.
21
Instruction Manual
CVM-E3-MINI

Table of Contents

Related product manuals