EasyManua.ls Logo

Circutor CVM-E3-MINI - CVM-E3-MINI-FLEX and CVM-E3-MINI-FLEX-Wieth

Circutor CVM-E3-MINI
124 pages
Print Icon
To Next Page IconTo Next Page
To Next Page IconTo Next Page
To Previous Page IconTo Previous Page
To Previous Page IconTo Previous Page
Loading...
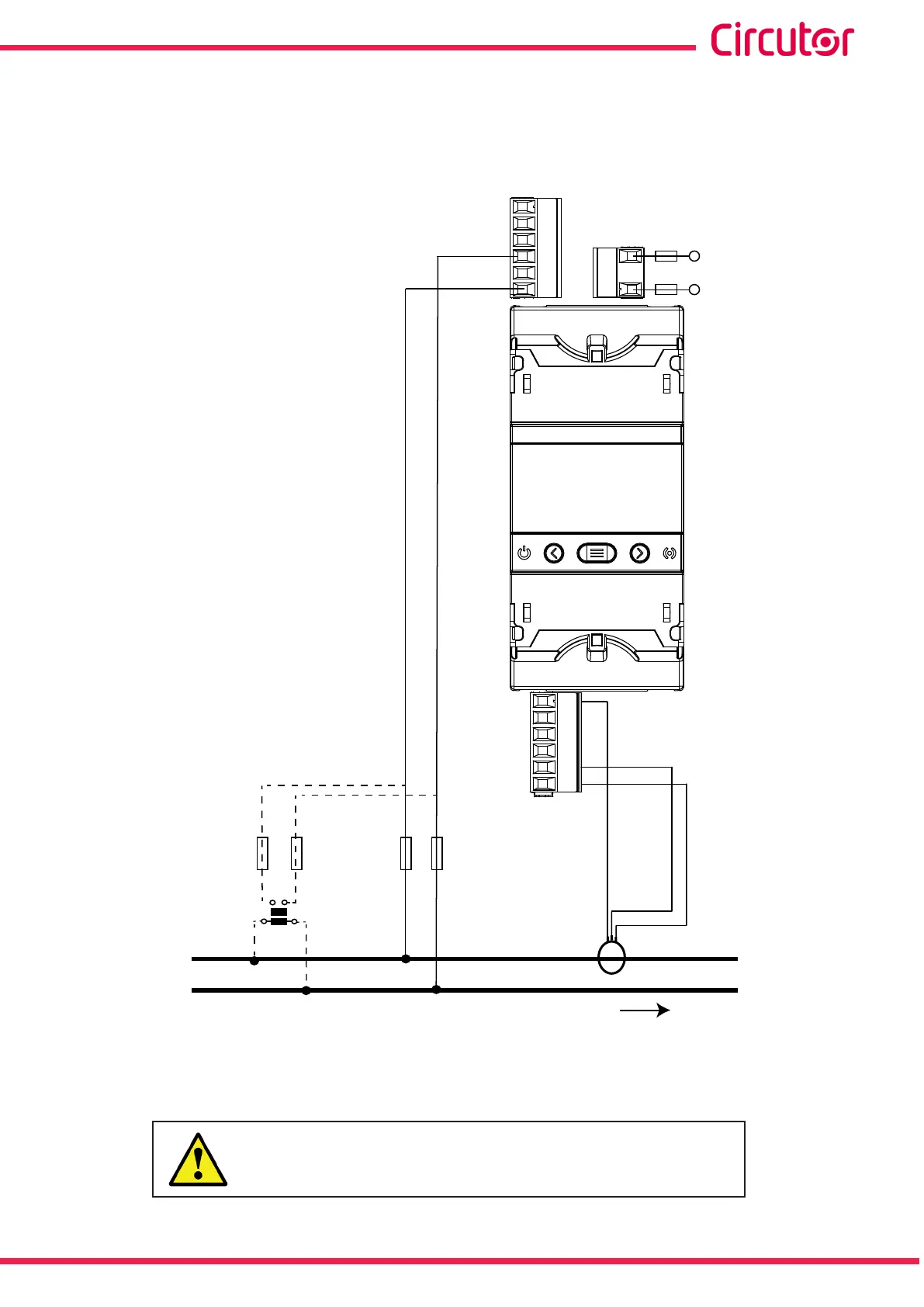
3.6.14.- MEASURING SINGLEPHASE NETWORKS, PHASE TO PHASE, WITH A 2WIRE CONNECTION:
CVME3MINIFLEX AND CVME3MINIFLEXWiEth
Measurement system: 2-2Ph
VL1 VL2
L1
L2
L2V
L1V
VL1 VL2
a
b
A B
CARGA / LOAD
11
10
Alimentación Auxiliar
Power Supply
L1
L2
L3
SHLD
C
1
2
3
4
5
6
L1
C
SHLD
Figure 19: Measuring Single-Phase Networks, phase to phase, with a 2-wire connection: CVM-E3-MINI-FLEX and CVM-E3-MINI-
FLEX-WiEth.
It is mandatory connect the SHLD terminal of the probe.
29
Instruction Manual
CVM-E3-MINI

Table of Contents

Related product manuals