EasyManua.ls Logo

Circutor CVM-E3-MINI - 3�6�17�- MEASURING SINGLE-PHASE NETWORKS, PHASE to NEUTRAL, with a 2-WIRE CONNECTION: CVM-E3-MINI-FLEX and CVM-E3-MINI-FLEX-Wieth

Circutor CVM-E3-MINI
124 pages
Print Icon
To Next Page IconTo Next Page
To Next Page IconTo Next Page
To Previous Page IconTo Previous Page
To Previous Page IconTo Previous Page
Loading...
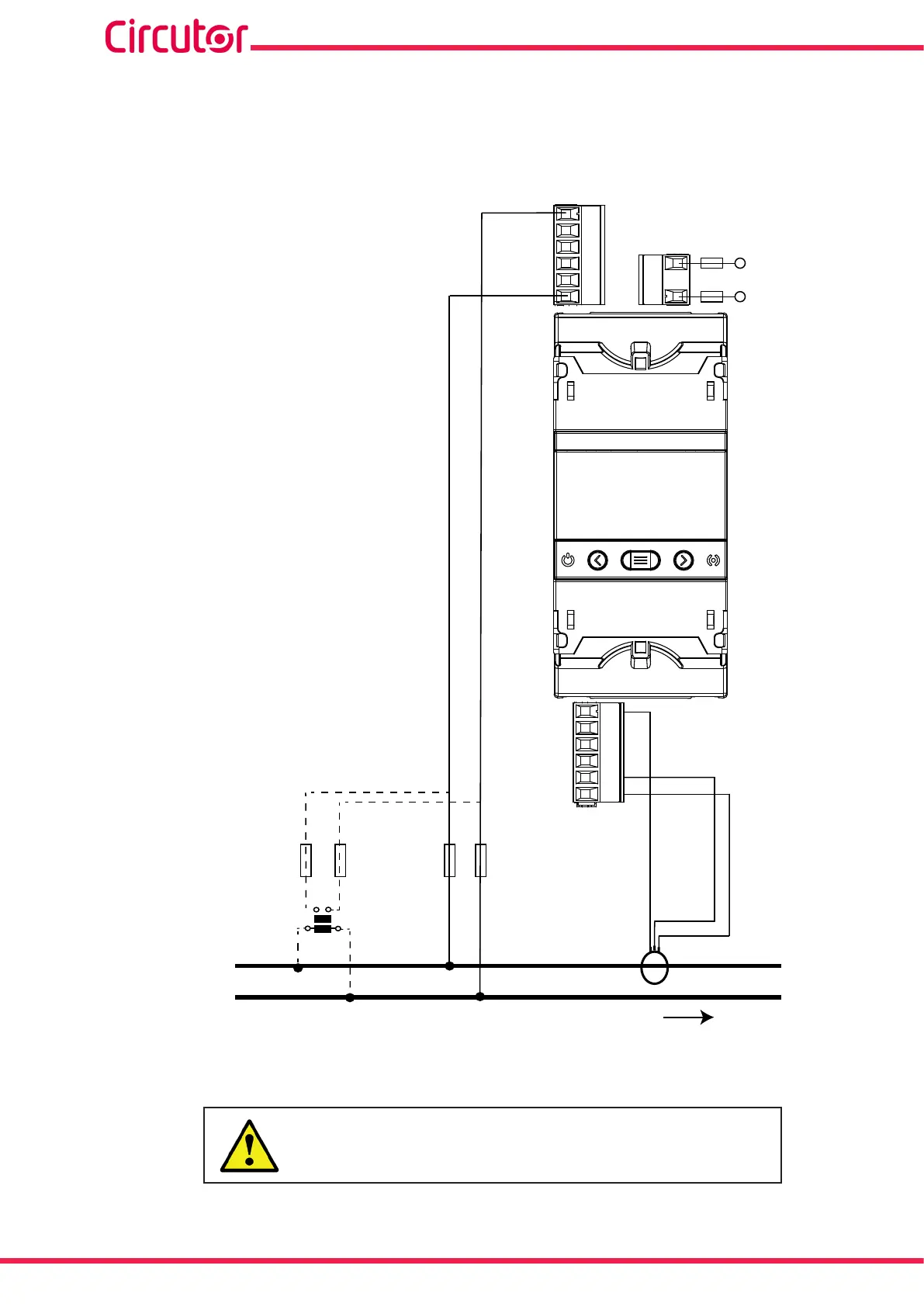
3.6.17.- MEASURING SINGLEPHASE NETWORKS, PHASE TO NEUTRAL, WITH A 2WIRE CONNEC
TION: CVME3MINIFLEX AND CVME3MINIFLEXWiEth
Measurement system: 2-1Ph
VL1 N
L1
N
N
L1
V
VL1 N
a b
A B
CARGA / LOAD
13
10
Alimentación Auxiliar
Power Supply
L1
L2
L3
SHLD
C
1
2
3
4
5
6
L1
C
SHLD
Figure 22: Measuring Single-Phase Networks, phase to neutral, with a 2-wire connection:CVM-E3-MINI-FLEX and CVM-E3-MINI-
FLEX-WiEth.
It is mandatory connect the SHLD terminal of the probe.
32
CVM-E3-MINI
Instruction Manual

Table of Contents

Related product manuals