EasyManua.ls Logo

Circutor CVM-E3-MINI - 3�6�15�- MEASURING SINGLE-PHASE NETWORKS, PHASE to NEUTRAL, with a 2-WIRE CONNECTION: CVM-E3-MINI-ITF and CVM-E3-MINI-ITF-Wieth

Circutor CVM-E3-MINI
124 pages
Print Icon
To Next Page IconTo Next Page
To Next Page IconTo Next Page
To Previous Page IconTo Previous Page
To Previous Page IconTo Previous Page
Loading...
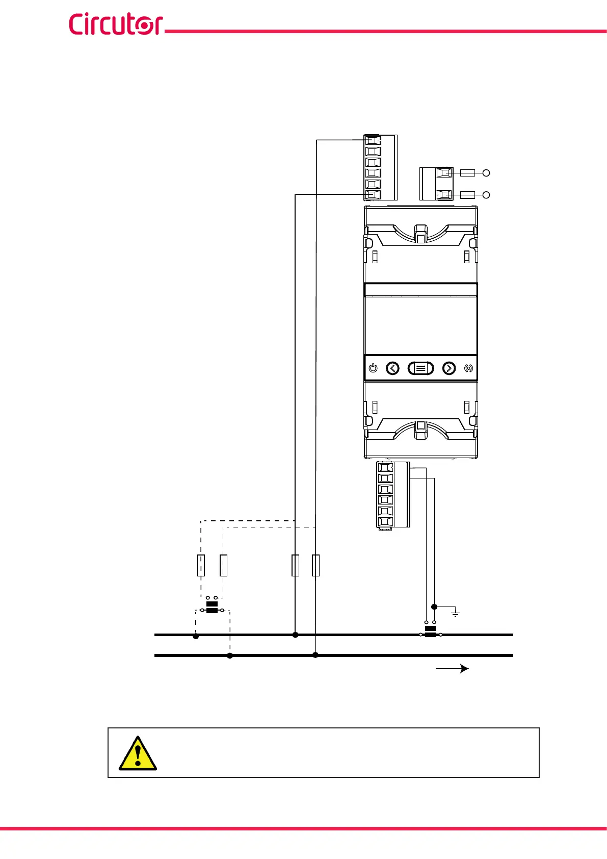
3.6.15.- MEASURING SINGLEPHASE NETWORKS, PHASE TO NEUTRAL, WITH A 2WIRE CONNEC
TION: CVME3MINIITF AND CVME3MINIITFWiEth
Measurement system: 2-1Ph
VL1 N
L1
N
N
L1
V
VL1 N
a b
A B
CARGA / LOAD
13
10
Alimentación Auxiliar
Power Supply
S1
S2
S1
S2
S1
S2
S1
S2
P1
P2
1
2
3
4
5
6
Figure 20: Measuring Single-Phase Networks, phase to neutral, with a 2-wire connection: CVM-E3-MINI-ITF and CVM-E3-MINI-
ITF-WiEth.
To guarantee the insulation of the device and its category, it is necessary
to earth the S2 terminals of the transformers.
30
CVM-E3-MINI
Instruction Manual

Table of Contents

Related product manuals