EasyManua.ls Logo

Danfoss VLT AutomationDrive FC 360 - Page 45

Danfoss VLT AutomationDrive FC 360
146 pages
Print Icon
To Next Page IconTo Next Page
To Next Page IconTo Next Page
To Previous Page IconTo Previous Page
To Previous Page IconTo Previous Page
Loading...
Design Guide | VLAutomationDrive FC 360
4
3
91 (3.6)
13 (0.5)
200 (7.9)
259 (10.2)
3X M10X20
0
0
M10
19 (0.8)
38 (1.5)
255 (10.0)
284 (11.2)
0.0
0.0
1
2
5
M10
22 (0.9)
35 (1.4)
15 (0.6)
18 (0.7)
e30bg574.10
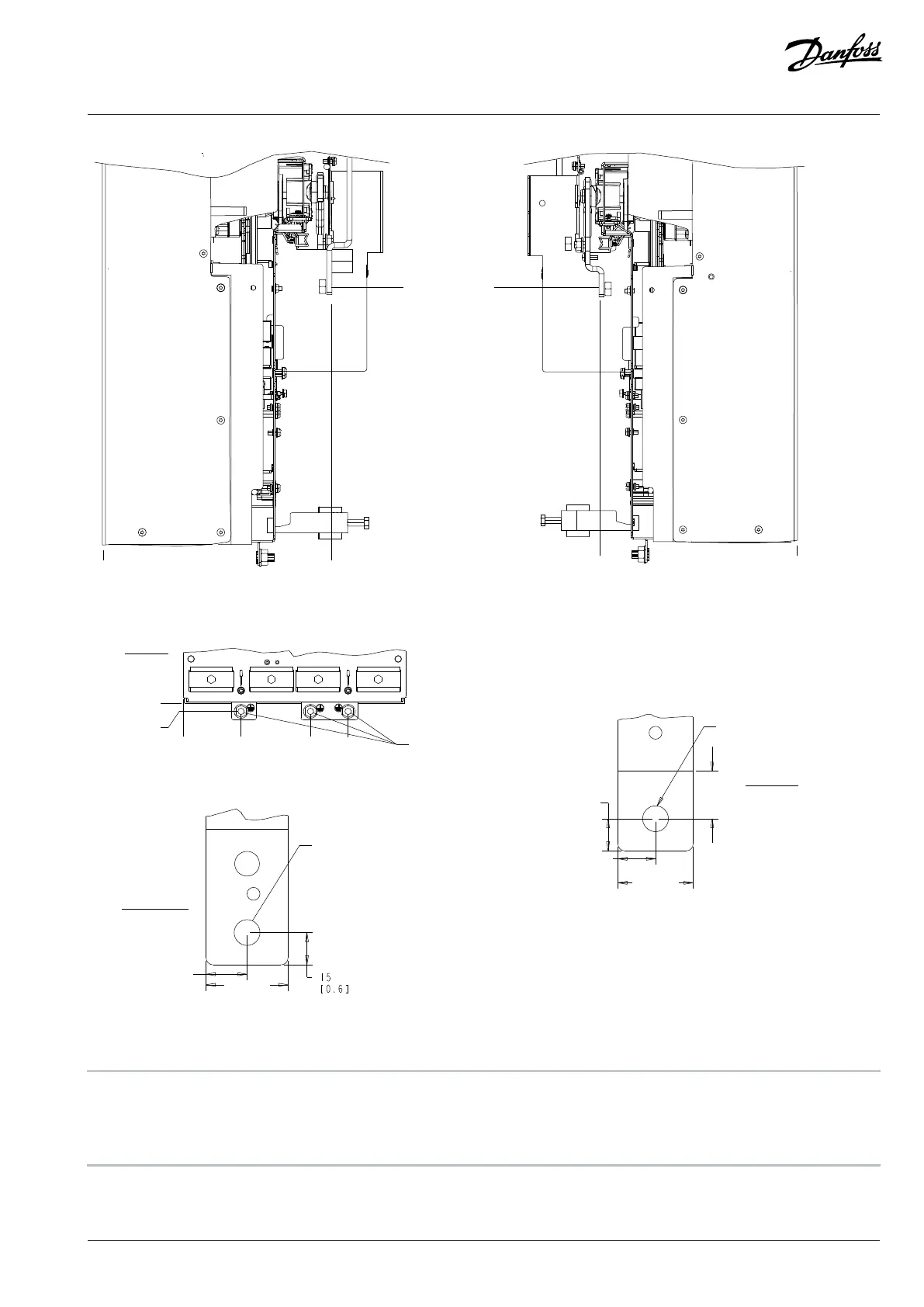
Figure 17: J9 Terminal Dimensions (Side Views)
1 Mains terminals 2 Motor terminals
3 Ground terminals 4 Mains terminals
5 Motor terminals
Danfoss A/S © 2024.01 AJ435824192086en-000101 / 130R1295 | 43

Table of Contents

Other manuals for Danfoss VLT AutomationDrive FC 360

Related product manuals